別墅Beyond是對當代生活和藝術的環境的完美典範,在這裡,現代住宅的舒適性與從其戲劇性的環境中汲取的建築元素有力地結合在一起,別墅由 SAOTA 設計,基地位於獅頭峰的山腰上,建築從陡峭的山坡上延展而出,俯瞰世界聞名的克利夫頓海灘,遠眺十二門徒峰。

從南非最受歡迎的街道 Nettleton路進入別墅,立刻給人一種精心構圖之感,別墅內部有四個較低的樓層,上部兩層給人一種高聳入雲的景象。
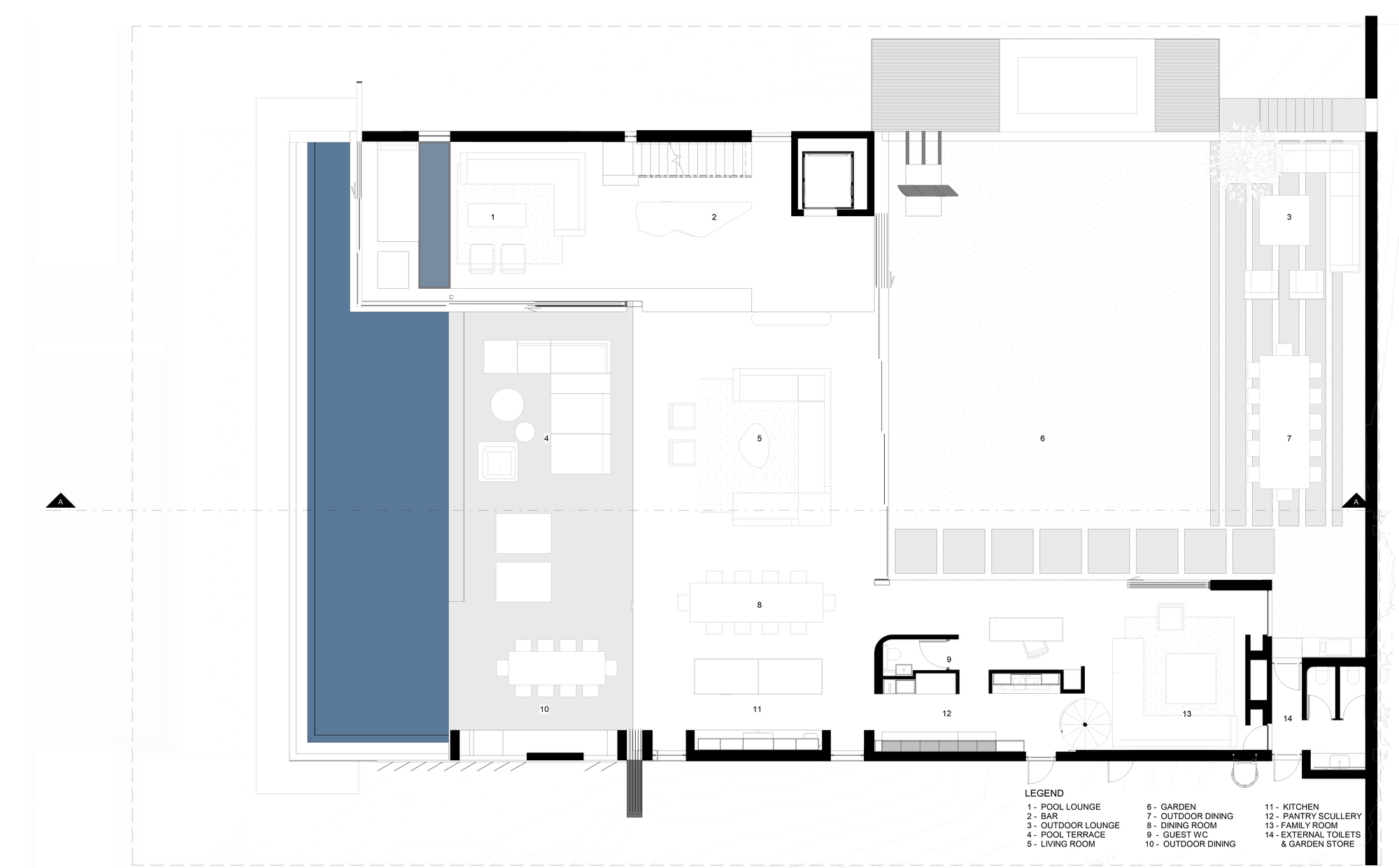
較低的樓層設有六間寬敞的臥室,其中三間可以連接為家庭套房,一個水療中心、以及娛樂空間,包括:遊戲空間和電影院。

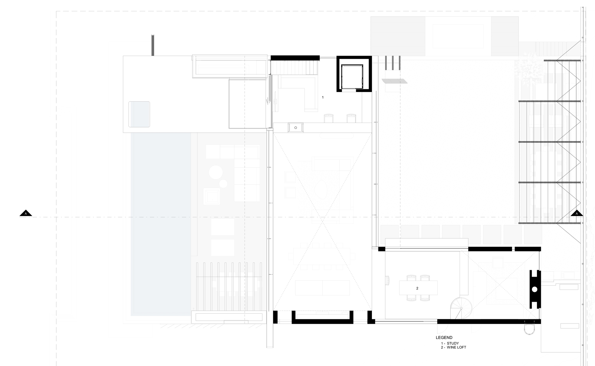
主要起居室位於大樓的最頂層,一個寬敞的開放式夾層空間,內部設有廚房、酒吧、餐廳、起居室和家庭房,以及位於夾層的冬季休息室、書房和藝術工作室。 內部和外部之間的玻璃向後剝離,模糊了連續透明空間中的界限,該空間將視線引向桌山國家公園的後花園,同時無邊際泳池向大海延伸並在視覺上連成一片。

入口立面回應了柯比意(Le Corbusier) 對建築的定義「精彩紛呈的將光齊聚一堂-Magnificent play of masses brought together in light」,隨後的空間和光之旅顯然受到現代主義運動的啟發。

從明暗對比的入口大廳,遊客被引向上部具有充足光線的生活層,空間體驗也同樣被考慮,房子感覺像是一個堅固、無縫的形式,其功能由交叉的平面、天花板和地板的處理所定義。
概念的使用從酒吧的宏觀尺度,玻璃的剝離形式戲劇性地的將空間表現的更加愜意,漂浮在帶有玻璃地板的游泳池上,到主休息室上方的粗糙混凝土和下方水準的木材天花板的材料的比例;在這個建築的真正精神中,是由相同有紋理感的木板製成,這些木板遮蓋了上面的混凝土。

家與畫廊的界限變得模糊
光線、空間和材料在房子中巧妙地相互作用,為它的另一個「家庭」,即一個考慮周詳的當代南非藝術收藏的家庭發揮了豐富的作用。 使得家和畫廊的界限變得模糊;從保羅·布洛姆坎普掛毯和保羅·埃德蒙茲(Paul Edmunds)為神秘的入口大廳注入活力的雕塑,到Porky Hefer在夾層娛樂區內漂浮的頑皮(可居住)「河豚」,再到廚房上方黑色牆壁上的非洲面具,這些藏品都是經過精心策劃,與建築相得益彰。 室內設計由ARRCC和OKHA共同完成。







建築圖






作品資訊
作品名稱:Beyond別墅
作品位置:南非 Clifton, Cape Town, South Africa
作品類型:別墅、私人住宅
事務所:SAOTA
室內設計:ARRCC
室內裝潢:OKHA
技師:Moroff & Kühne
營造廠:Cape Island Construction
燈光:Martin Doller Design
景觀:Nicholas Whitehorn Landscape Design
攝影:Adam Letch & Stefan Antoni