「看不見的修復」:保存工業遺跡的挑戰
英國建築師事務所Feilden Clegg Bradley Studios耗時 20 年,將英國 Shropshire 郡一座歷史悠久的亞麻廠改造成博物館和辦公空間,這座建築以鑄鐵框架結構聞名,是世界上第一座採用此結構的建築。Shrewsbury Flaxmill Maltings(亞麻廠麥芽坊)建於 1797 年,由建築師 Charles Bage 設計,由於創新的結構,被譽為「摩天大樓的祖父(grandfather of skyscrapers)」。
這座被英國政府列為一級保護建築(Grade I-listed)在 1987 年關閉後,長期閒置,直到 2005 年被英國歷史建築保護局(Historic England)收購。建築師的任務是修復建築結構,使其能夠容納教育博物館和辦公室,賦予這座歷史建築新的生命。




延續歷史建築的生命:結構修復與空間改造
設計團隊致力於在修復 Shrewsbury Flaxmill Maltings 的過程中,保留其歷史價值,同時滿足現代使用的需求。由於建築的鑄鐵框架存在裂縫,但因其歷史地位而無法進行大幅度的改造,因此 FCBS 採用「隱形修復」技術,透過引入新的磚石、隱藏的鋼格柵和額外的底層柱子,增強結構強度,同時不影響框架的獨特 character。為了避免干擾工廠寬敞的開放空間,設計團隊將電梯、黑色鋼製樓梯和走道等動線設施設置在以前的窯爐中,並保留了窯爐的木結構和鋼框架屋頂。






工業革命的見證:博物館與公共空間的規劃
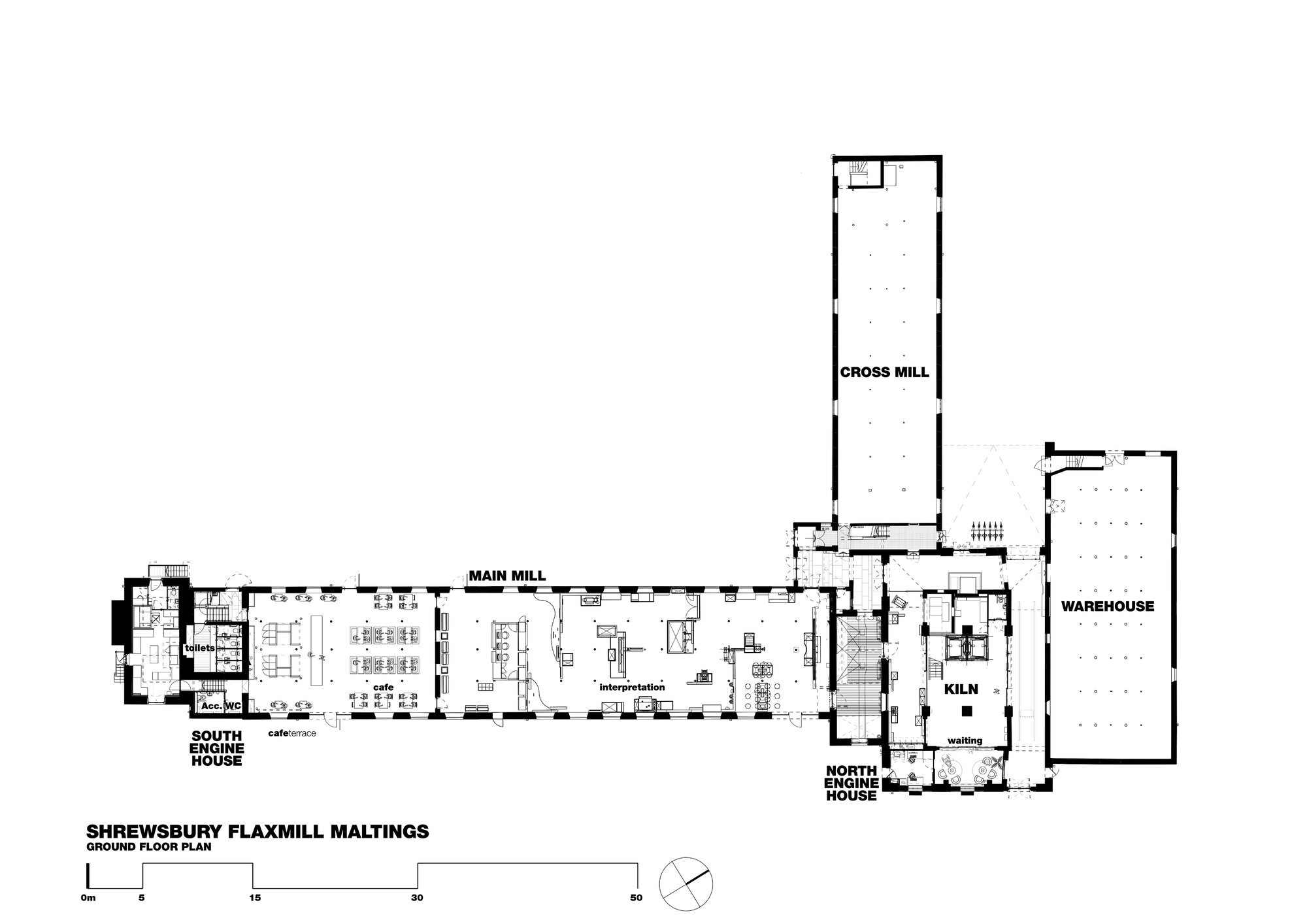
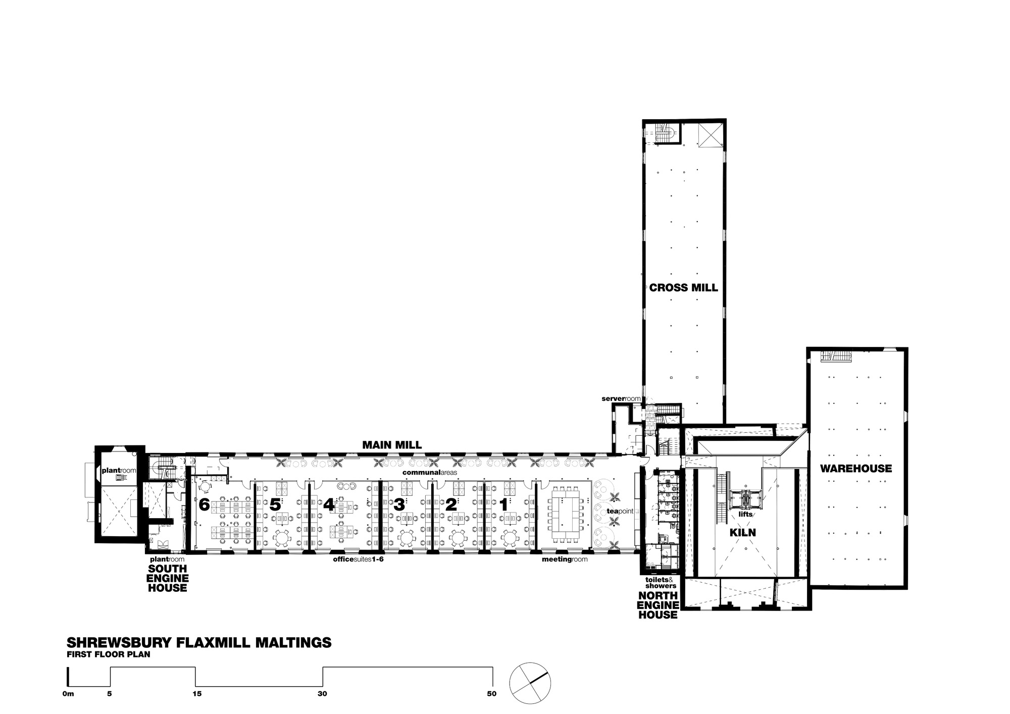
Shrewsbury Flaxmill Maltings修復工程在保存建築歷史風貌之外,更為社區創造了新的公共空間。在一樓,公共咖啡廳與學習空間相鄰,學習空間以白色磚牆為背景,展示了工廠在工業革命中的角色。樓上則規劃了四層辦公空間,由纖細的鑄鐵柱環繞,設計團隊重新開放了 110 扇先前被封閉的窗戶,將自然光線引入室內,創造明亮舒適的工作環境。



垂直動線的巧思:窯爐空間的再利用
設計團隊將 Shrewsbury Flaxmill Maltings 原有的窯爐空間,改造成垂直動線的核心區域,設置了電梯、樓梯和走道,有效連接不同樓層。窯爐空間寬敞的量體,讓垂直動線的規劃擁有充足的空間,同時也保留了建築的歷史元素。此外,遊客現在可以進入建築中心的 Jubilee Tower,欣賞周圍城市的景色,體驗這座歷史建築的獨特魅力。

展望下一個百年:古蹟再利用的永續策略
Shrewsbury Flaxmill Maltings 的修復計畫,是英國古蹟再利用的成功案例,保存珍貴的工業遺跡,也為社區創造了新的文化和經濟價值。透過修復和改造,這座歷史建築得以延續生命,並在下一個百年繼續發揮作用。











建築圖




作品資訊
作品名稱:Shrewsbury Flaxmill Maltings
作品位置:英國 Shrewsbury, United Kingdom
作品類型:辦公空間、歷史建築、舊建築再利用、舊建築改造、英國建築、英國建築師、博物館、公共建築、工業遺跡、古蹟、文化設施
設計單位:Feilden Clegg Bradley Studios
總樓地板面積:5596 平方米
竣工:2022年
攝影:Daniel Hopkinson
結構工程師:AKTII
土木工程師:AKTII
營造廠:Croft Building and Conservation
機電工程師:E3 Consulting Engineers
景觀設計:LT Studio
工料測量:Gleeds
聲學顧問:Ion Acoustics
考古:University of Salford
生態:Middlemarch
餐飲:Cooper 8
塗料:KEIM