銀角尺獎榮耀與氣候行動的建築宣言
Gaëtan Le Penhuel Architectes & Associés 建築師事務所近期在法國(France)巴黎東北郊的 Tremblay-en-France 完成了 Simone Veil 學校群的建設工程。這座設施除了是一處教育場所,更是建築師面對全球氣候緊急狀態(Climate Emergency)的具體回應,試圖透過空間設計轉化傳統教育場域的運作模式。
藉著拒絕標準化的創新思維,以及對「校舍」概念的重新詮釋,該案於2025年11月一舉奪得法國建築界至高榮譽——銀角尺獎(Équerre d’argent)。這棟座落於市鎮南側寧靜獨棟住宅區的公共設施,配置了八間教室、多功能室、學校餐廳、行政區以及管理員公寓。建築師並非僅是蓋一間學校,而是企圖在郊區的都市紋理(Texture)中,植入一個能與社區呼吸吐納的有機體,屋頂規劃了與鄰里協會共享的運動場,讓教育設施成為凝聚地方意識的紐帶,呈現出建築專業對社會責任的深刻反思。


空間資源重組與全時段共享的生活場域
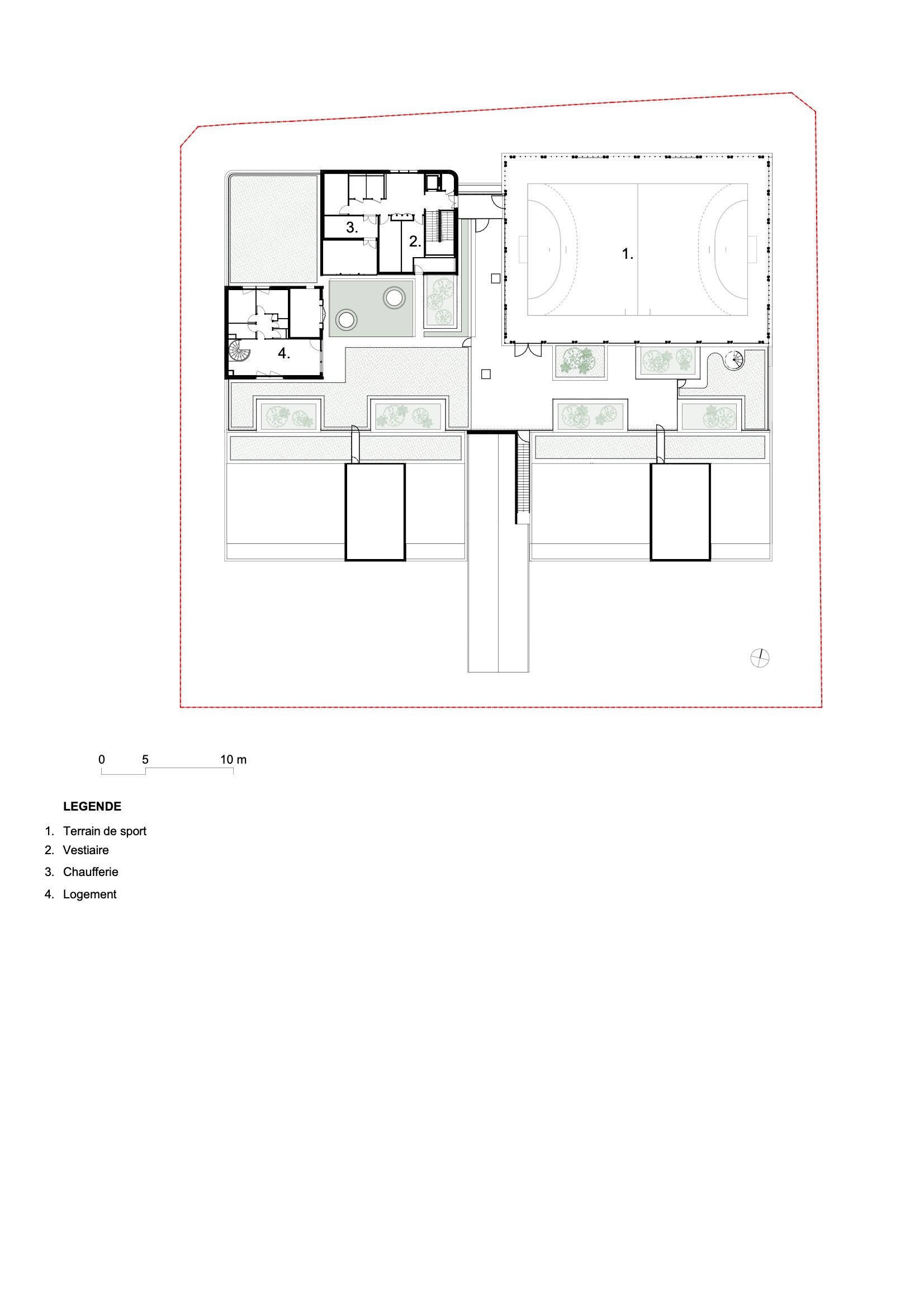
Tremblay-en-France 市政府的提案並非單純興建校舍,而是企圖取代傳統僅在課餘時間開放的「休閒中心」,將所有空間進行整合,供學童與學齡前兒童在不同時段共享。策略性的空間重組,目標在維持原有樓地板面積,創造出更為寬敞、舒適且具備模組化彈性的場域。
位於核心的學校大廳採南北向配置,作為連結整座設施至遊樂場的動線起點,更設計為充滿活力的生活空間,而非單純的過渡區。
大廳內設有三個組織各異的壁龕,這些內凹的角落增加了空間被使用者「佔據」與定義的可能性,鼓勵孩子自主探索各種學習方式與交流型態,讓公共空間化身為促進知識流動的載體。以木質材料包覆的壁龕,如同一個個溫暖的樹洞,為孩子們提供了安全感與歸屬感,這正是當代教育建築中極力強調的心理支持功能。




內部街道與遊戲看台譜寫的教育敘事
一條貫穿東西向的「教室街道」構成了校園的另一條結構軸線,這條軸線被中央的室內遊戲區一分為二,每側配置四間教室與天井。建築師精心處理了教室入口的過渡空間,設置了玄關與衣帽間,並規劃了遊戲看台。這些看台不僅可以用於休閒遊戲,更能轉化為教學活動的場所,呼應了環境即是「第三位老師」的教育理念。這種將交通動線賦予機能意義的手法,讓走廊不再只是單調乏味的通道,而是充滿機遇與互動的學習街道。從細部設計來看,每一處轉角、每一個停留點,都經過細膩的考量,讓孩童在穿越校園的日常移動中,也能感受到空間所傳遞的豐富訊息與趣味性,木質結構的溫潤觸感更進一步拉近了建築與使用者的距離,消弭了傳統機關建築的冷漠感。



氣候韌性下的核心樞紐與多元活動舞台
在南北與東西兩條主要軸線的交會處,一個巨大的室內遊戲區構成了整座學校的實質中心,大幅提升了空間的使用彈性與機能多樣性。這個多功能區域不僅在早晨與傍晚時段開放給學齡前兒童使用,更輔以多功能室與律動教室,形成如同古希臘廣場般的社交核心。每當天候不佳、遭遇豪雨之際,這裡便成為戶外操場的完美替代方案,甚至能轉身一變,舉辦各類展覽與表演活動。透過挑高的木構造屋頂與大面窗戶引入的自然光線,使得這個核心區域始終保持明亮通透,消除了室內活動的封閉感。這種靈活的空間策略,增強了建築面對極端氣候的韌性,確保校園在不同時段與氣候條件下,皆能維持高度的活絡,成為名符其實的社區活動樞紐,這也是該案能在眾多競爭者中脫穎而出、獲得評審青睞的關鍵因素之一。




雙面採光調節微氣候與空間氛圍層次
雙面採光設計讓教室享有充足自然光與優良通風,置於北側天井與南側操場之間的佈局,在同一空間內營造出截然不同的氛圍。北側光線透過天井灑落,兩間教室之間以木構打造的共享空間,營造出靜謐安詳的角落,適合閱讀與靜態活動;南側直接面向操場的量體則顯得更為開放且具集體感。
每間教室皆擁有一個可俯瞰公共操場的「私人」遊戲區,這處遮蔭空間改善了室內外的流動性,成為教室的實質延伸。南側操場由一排樹木提供遮蔭,宛如翠綠的寶石,是孩童探索自然與進行戶外遊戲的理想架構,透過被動式設計手法,自然調節室內微氣候,大幅降低對機械空調的依賴。室內搭配泥磚牆面與木質家具,在視覺上呈現和諧美感,更在物理環境上提供了良好的吸濕與蓄熱功能,為孩童創造出最健康的學習環境。






泥磚與木構織就的質感與光影體驗
從室內空間的設計,可以發現建築師對於材料質感的極致追求。教室內部並非單調的白牆,而是大膽採用了泥磚填充於木結構之間,運用生物源材料,可以達到環境友善的目的,更為了創造出獨特的空間感知。泥磚牆面帶有細微的顆粒感與自然的色澤變化,與上方溫潤的木樑相互輝映,讓光線在空間中漫射出柔和的層次。
滑動式的木門與靈活的收納櫃體設計,賦予了空間高度的可變性,教師可以根據課程需求調整教室佈局。這種回歸材質本真的設計語彙,避免了過度裝飾帶來的視覺干擾,讓孩童的注意力能回歸到學習與互動本身,同時也透過觸摸與感受,潛移默化地建立起對自然材料的認知與情感連結,這無疑是一場無聲卻深刻的環境教育課程。



地產地銷的材料策略與能源正效益實踐
作為一座肩負教育使命的建築,必須將對環境的承諾具象化。這項原則反映在材料選擇與建築運作上,承重石材立面取自距離工地不到60公里的 Bonneuil-en-Valois 採石場,落實「地產地銷」的低碳理念。石材的厚度確保了建物的熱慣性,同時突顯設施雕塑般的量體價值,外觀上垂直的玻璃窗櫺與厚實石牆形成虛實對比,豐富了立面表情。
屋頂的運用更是本案亮點,運動區屋頂裝設的光電板,其產能超過建物消耗,達到能源正效益;其餘屋頂則進行綠化,不僅提升熱性能並截留雨水,更設有種植蔬菜的盆槽與大型野餐桌,將生物多樣性與食農教育融入日常。宣示生活態度,向鄰里居民與學童證明,建築可以在滿足機能的同時,成為修復地球環境的積極力量。





























作品資訊
作品名稱:Simone Veil School Complex Tremblay-en-France
作品位置:法國 Tremblay-en-France, France
作品類型:木構、校園建築、教育設施、永續建築、法國、法國建築、法國建築師
業主:City of Tremblay-en-France
設計單位:Gaetan Le Penhuel Architectes
總樓地板面積:2400 平方米
竣工:2025年
攝影:Vladimir de Mollerat du Jeu
專案團隊:Warren Lepolard, Ersi Hoxha, Philippe Souaid
永續顧問:Emenda
景觀設計:Nebbia
結構工程顧問:Batiserf
造價顧問:BMF
人體工學顧問:Ergo Zen
聲學工程顧問:Impédance
廚房設計顧問:Atec
環境工程顧問:Emenda