瑞士學校Krämeracker擴建工程包含兩座新建築和額外的戶外空間。細長的教學大樓與現有教學大樓平行,而學生則經主樓進入校園,新體育館位於既有體育館對面,四個建築量體呈棋盤狀排列,塑造了不同的室外空間。建築師將新建築保持低矮狀,藉由精細的垂直和水平體積變化,與鄰域建立了空間關係。



公共空間位於教學大樓頂部,分別是寬敞的門廳、圖書館、特殊房間和教師辦公室。作品的細長部分在地面層設有幼兒園和課後託管中心,並在上層設有教室群,可在摺疊牆的幫助下實現不同的組合和排布。體育館前是位於入口層的多機能廳,其可採取入口大廳單獨進入。地下室則包含了更衣室和與大廳相連的裝置儲藏室。




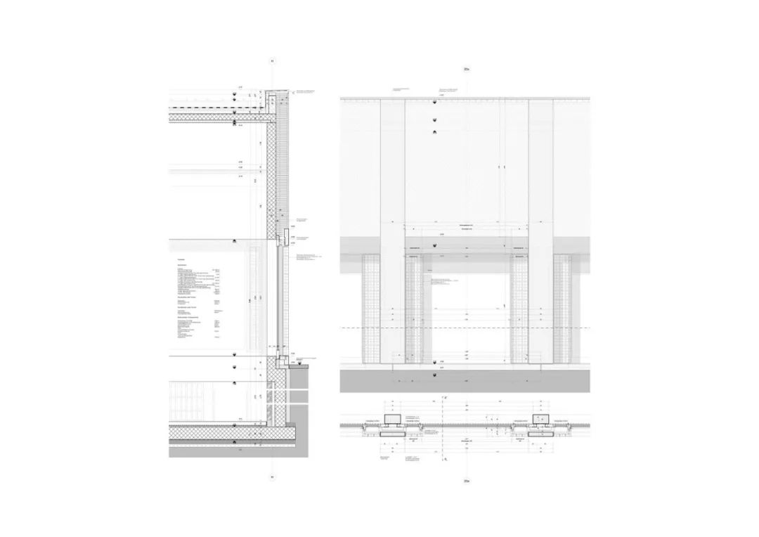
學校建築和體育館立面反映了作品建築合理的網格狀結構。混凝土元素、石灰灰泥表面、網格石塊和窗戶交相呼應,在立面上呈現了設計的差異性。一方面,面向凹陷區域的主立面以差異的浮雕為特色,在柱子上方配以頭部飾面;地面層的牆體向後退去,柱子也就構成了門廊。另一方面,體育館的立面採用了一種更加克制的浮雕裝飾。




以被動式施工方式呈現構築物的永續發展性。學校側樓和體育館均採用預鑄混凝土柱的骨架結構設計。各房間則採取摺疊牆的適應性以及隔牆的建造實現了長期客製化的可能,以滿足不斷變化的空間使用需求。土製石膏牆還可以調節房間濕度,繼而改善室內氣候。


此外,石膏立面的石灰材料是從當地獲取的,並採用了純天然的新增劑。而為作品專屬開發的陶土元素則被用作內外部的亮點。建築師還與 GFT Fassaden AG 合作設計了作品的空氣格柵原件,以確保通風所需的橫截面。如此一來,教室內部的環境就能實現不受天氣影響的空氣湧入和夜間冷卻,使得通風系統的棄用變為可能。


類似的石塊元素也在室內服務於聲學所需。作為藝術和建築作品的一部分,建築師在義大利天然石材馬賽克的啟發下,製作了鑲嵌在地板上的馬賽克元素;而因為如今這些石材都可以採取機器切割成型,確保了這件作品的價格實惠。門廳和樓梯間的手工玻璃棒是在穆拉諾附近新制的,得益於玻璃棒的內含物、缺陷和不規則表面,儘管採用量產的LED 燈泡,其依舊可以提供氛圍感的照明效果。



建築圖

全區配置圖

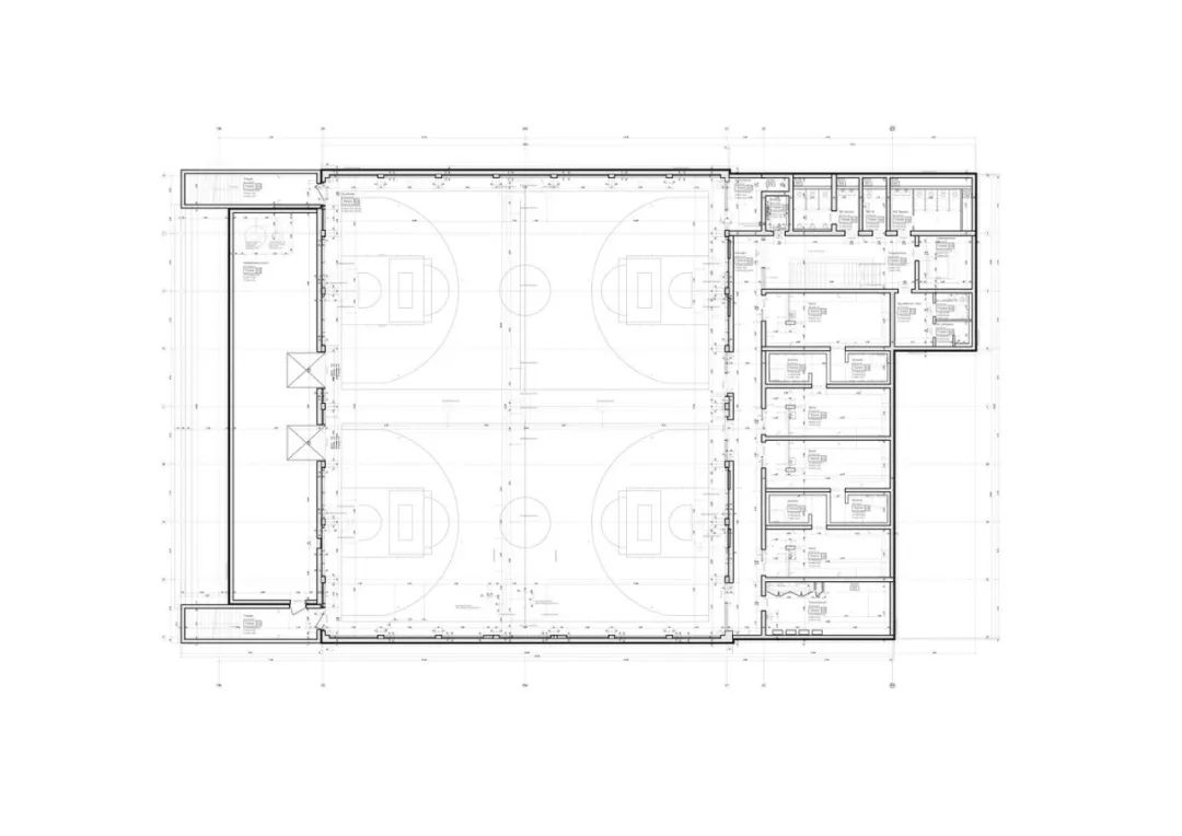
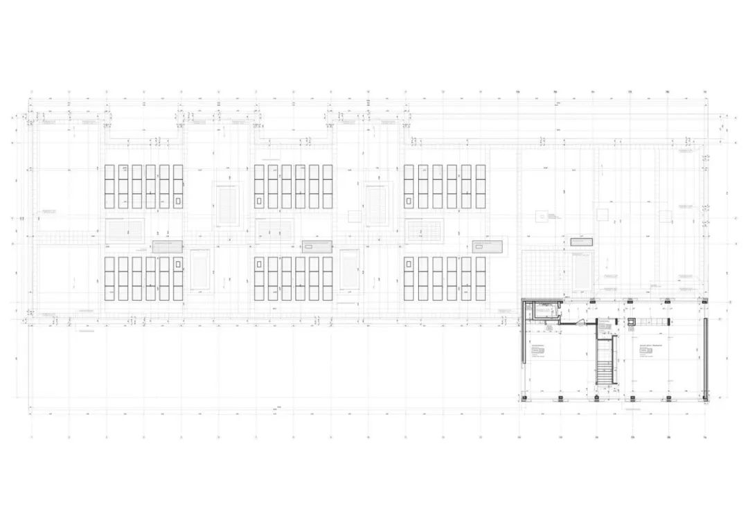
體育館平面圖 Plan

體育館平面圖 Plan

體育館平面圖 Plan

體育館剖面圖 Section

體育館剖面圖 Section

體育館剖面圖 Section

體育館剖面圖 Section

體育館立面圖 Elevation

體育館立面圖 Elevation

體育館立面圖 Elevation

體育館立面圖 Elevation

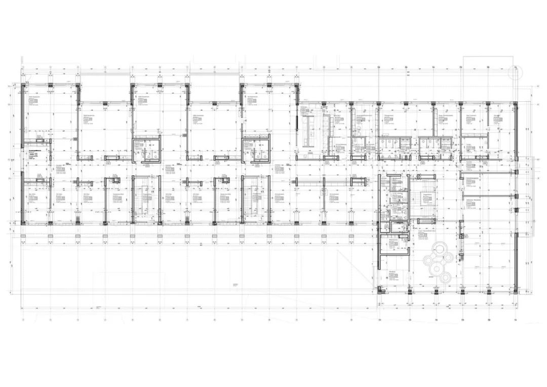
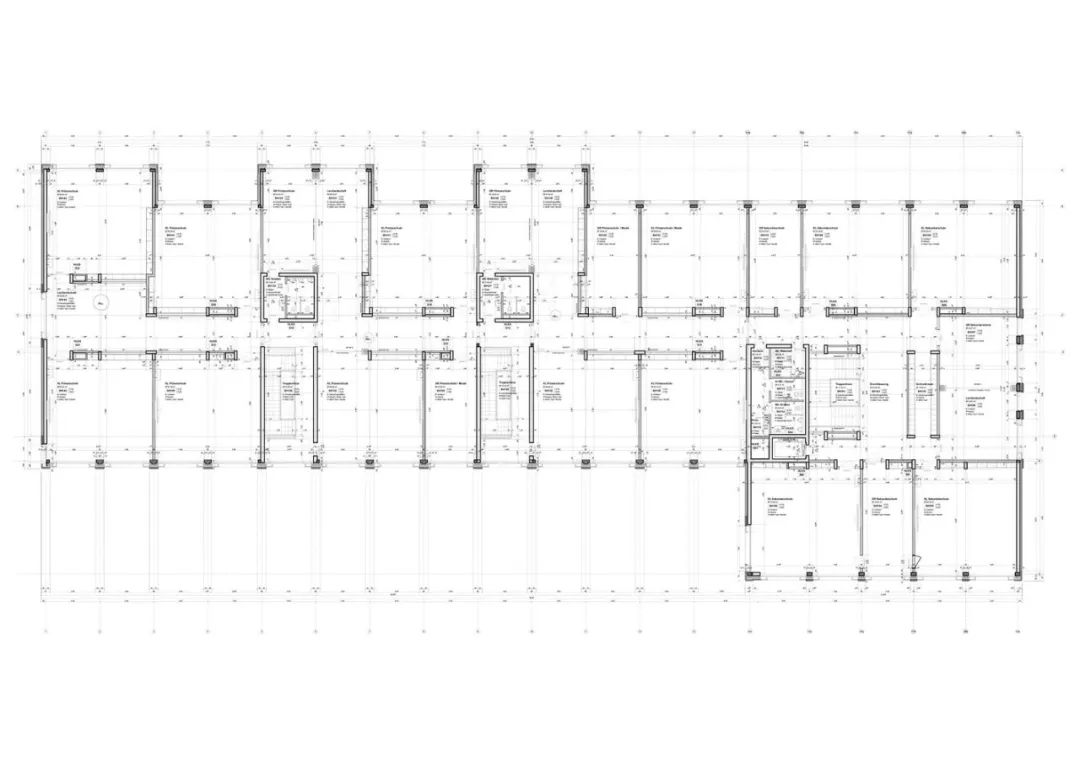
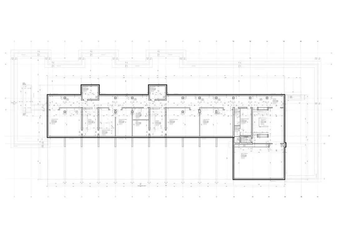
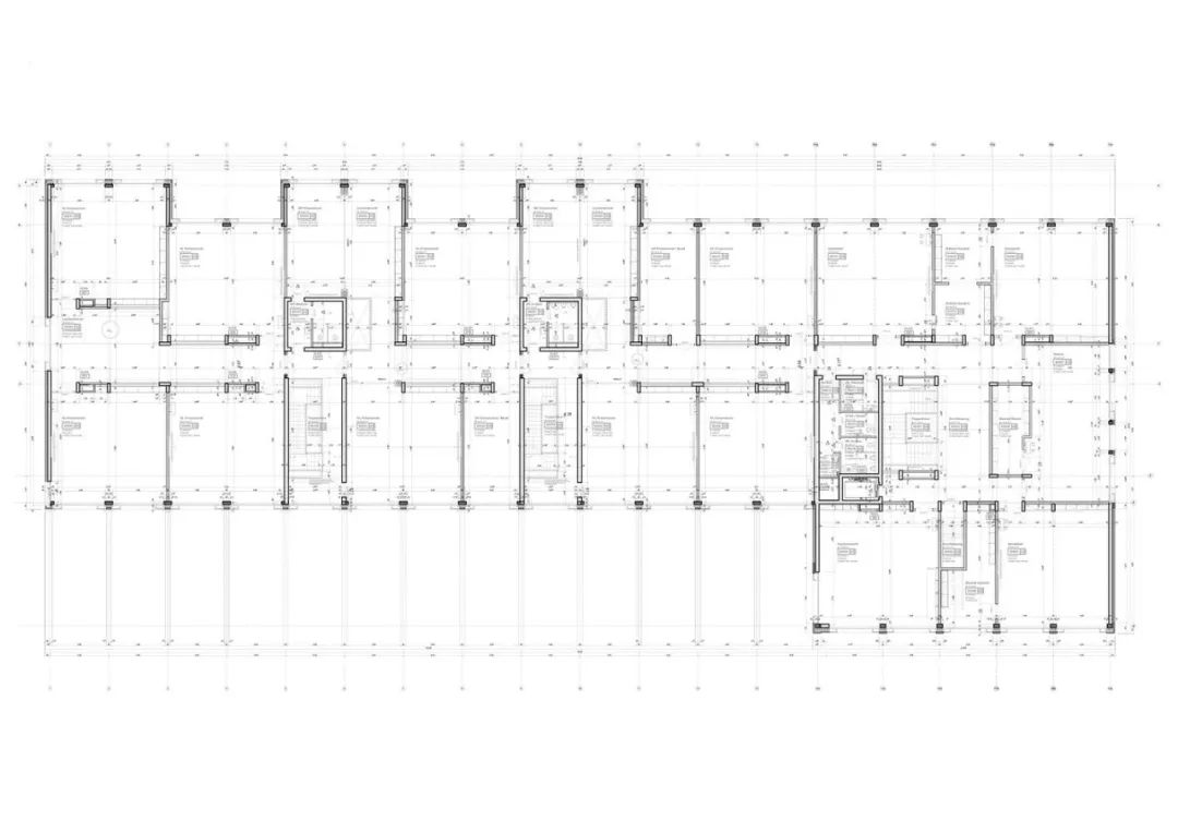
教學大樓平面圖 Plan

教學大樓平面圖 Plan

教學大樓平面圖 Plan

教學大樓平面圖 Plan

教學大樓平面圖 Plan

教學大樓剖面圖 Section

體育館、教學大樓立面圖 Elevation

教學大樓立面圖 Elevation

教學大樓立面圖 Elevation

教學大樓立面圖 Elevation

教學大樓立面圖 Elevation

等角透視分析圖

天花板細部圖

立面細部圖

立面細部圖

立面細部圖

立面細部圖
作品資訊
作品名稱:瑞士學校Krämeracker擴建工程
作品位置:Zürichstrasse 33/35, 8606 烏斯特, 瑞士
作品類型:學校建築、體育館
建築師:Boltshauser Architekten
竣工:2019
總樓地板面積:8600.0平方公尺
主建立築師:Beat Steuri
攝影師:Kuster Frey
