台州灣畔「漁家燈火」公共空間革命,設計師何將狹窄的堤頂拓寬至十二米以上,並以架空鋼格柵平台串聯堤內外,成功將水利基礎設施轉化為鬆弛輕快的濱江風景系統

0
440

城市背景與更新契機:水岸棕地的脫胎換骨

中國台州市位處椒江入海口西側的核心區段,當地近年面臨一江兩岸的產業結構調整。隨著原有的工業設施黯然退場,這片水岸棕地進入整體生態復育與生活化轉型時期。

同濟原作設計工作室將漁家燈火場域視為城市更新的首要之務,順應海塘提標的工程契機,對既有的空間進行適應性更新。設計的目標不僅是防汛,更在於實現公共休憩空間與水利基礎設施的共生,讓原本遊離於市民生活之外的堤防,得以脫胎換骨,重返城市日常生活體系之中。

原基地限制與設計挑戰:解除城市與江岸的視覺屏障

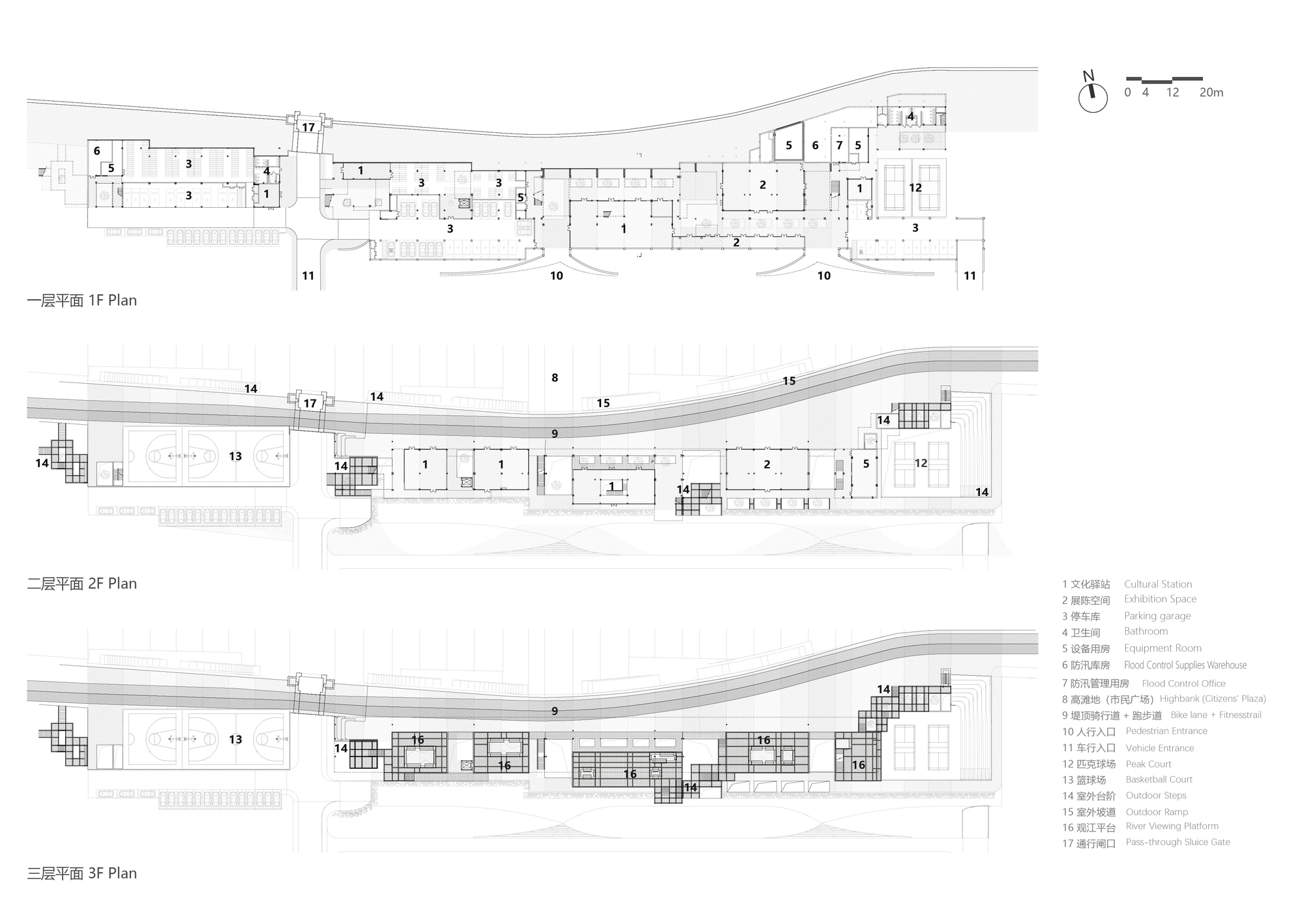
舊建築改造前的江畔地帶,面臨著嚴峻的空間限制。原有的海塘防浪堤高聳孤立且綿長,堤頂空間極為狹窄,導致城市與江岸之間的連續性蕩然無存。更糟的是,堤上遺留兩座棄用的四層樓建築,面寬長達二七○米,如同一堵高牆,嚴重阻礙了城市與椒江之間的視覺及步行聯繫。

建築師的當務之急是系統性地梳理基地場域,將堤頂空間拓寬至十二米以上,增設多種上下聯通的方式。這種策略旨在將原有的線性屏障,轉變為多路徑的漫遊場域,甚至連堤外停車場也以緩坡覆蓋,有序地銜接至和合大道的車流動線。

結構改造與歷史物質性:鋼材與混凝土的光陰層疊

為最大化延續現有建築的歷史與物質價值,設計團隊決定採取大膽的結構改造。在經過精確的結構評估和江城連結視線分析後,原有的四層建築被水平削切至僅剩兩層,並在垂直方向打通六條垂江通道,以重新建立城市與江景的聯繫。

剩餘結構被局部切割,形成七組內向的院落空間。在拆除部分混凝土結構時,設計刻意保留了部分老牆與梁頭,讓新增的結構得以續接。新舊結構之間的層疊並置,採用了鋼材的輕盈與原有混凝土的粗獷,提供了光陰層疊的氛圍感。這些被保留的歷史痕跡,承載著院落中綠植的光影,讓過去的物質性得以在當下被多重感知。





形態語彙與文化呼應:屋頂上的藝術化回應

新增的鋼結構長亭,其形態語彙處處呼應著椒江的漁家文化。連綿起伏、悠揚輕盈的亭屋面,是對江面上晾曬漁網這一日常場景的藝術化回應。屋面結構採用懸垂形帶肋鋼板作為主要形式,以僅一七○毫米的截面高度,實現了八至二四米的大跨度,展現了力學之美與鋼材的輕巧。主體框架則採用十字工形柱,結合雙槽鋼格構梁。此外,建築南側的綠坡造型取自漁梭,將車庫入口親近地融入其中;北側的階梯與球場圍欄,則呼應江面微波,與主體建築融為一體,共同創造了鬆弛輕快的場所氛圍。


社會激活與城市客廳:「燈火」象徵活力的聚集

漁家燈火的後半場,由「燈火」來象徵活力的聚集與社會激活。設計目標是營造一個溫暖、具有吸引力且充滿人氣的場域,如同指引歸航的燈塔,成為市民願意駐足、交流與活動的城市客廳。釋放後的堤外公共廣場,不僅是日常舉行廣場舞會的場所,也是中國國家級非物質文化遺產「送大暑船」儀式的重要舉辦地。

室內空間則合宜地容納了水利文化展覽、市民驛站、運動空間與水利管理用房。傍晚時分,燈光漸亮,立體漫步系統串聯堤內堤外,成為知名的江畔賞景打卡地,印證了建築已真正地融入日常,彷彿它本就生長在椒江灣畔。

 


建築圖


作品資訊

作品名稱:漁家燈火:由堤而生的江畔風景場
作品位置:中國台州市
作品類型:開放空間、公共空間舊建築改造、景觀設計、景觀建築、中國建築
業主:台州市椒江區社會事業發展集團有限公司
設計單位:同濟原作設計工作室
總樓地板面積:7485 平方米
竣工:2024年
攝影:章魚見築、Original Design Studio
主創建築師:章明、張姿、丁純、陳凱揚
設計團隊:丁闊、王緒男、蔡漢、吳正浩、林瑜洋
業主代表:葉素琴、曾靈國
結構設計團隊:王瑞、桑海鋼、陳文浩
機電設計團隊:焦學淵、郭長昭、俞超、梁為鵬、蔣慧、朱元彬、曹陽、楊佳澎、楊秀、蔡融、卞晨、魏燕萌

Leave a reply

Please enter your comment!
Please enter your name here

這個網站採用 Akismet 服務減少垃圾留言。進一步了解 Akismet 如何處理網站訪客的留言資料