蘇州北部的商業新心臟:相城天街如何重塑未來環商圈的消費版圖
位於中國蘇州相城區核心地帶的「相城天街」,緊鄰被譽為「未來環」的北蘇州核心商圈,周邊匯聚了區政府行政中心、高端金融機構及豐富的教育與生態資源。這座總樓地板面積達十五萬平方米的巨型量體,由龍湖集團委託乾正設計(ARIZON Design)操刀。
不同於過往的天街系列,本案被賦予了更高的戰略地位——「城市品質生活中心」。在競爭激烈的長三角商業戰場中,它試圖透過差異化的空間策略,滿足當代消費者對於社交互動與特色體驗的深層渴望,重新定義了購物中心在城市中的角色,成為驅動區域經濟轉型的關鍵引擎。





MEGA級的空間實驗:沐光島與跨層式自然生態的垂直演繹
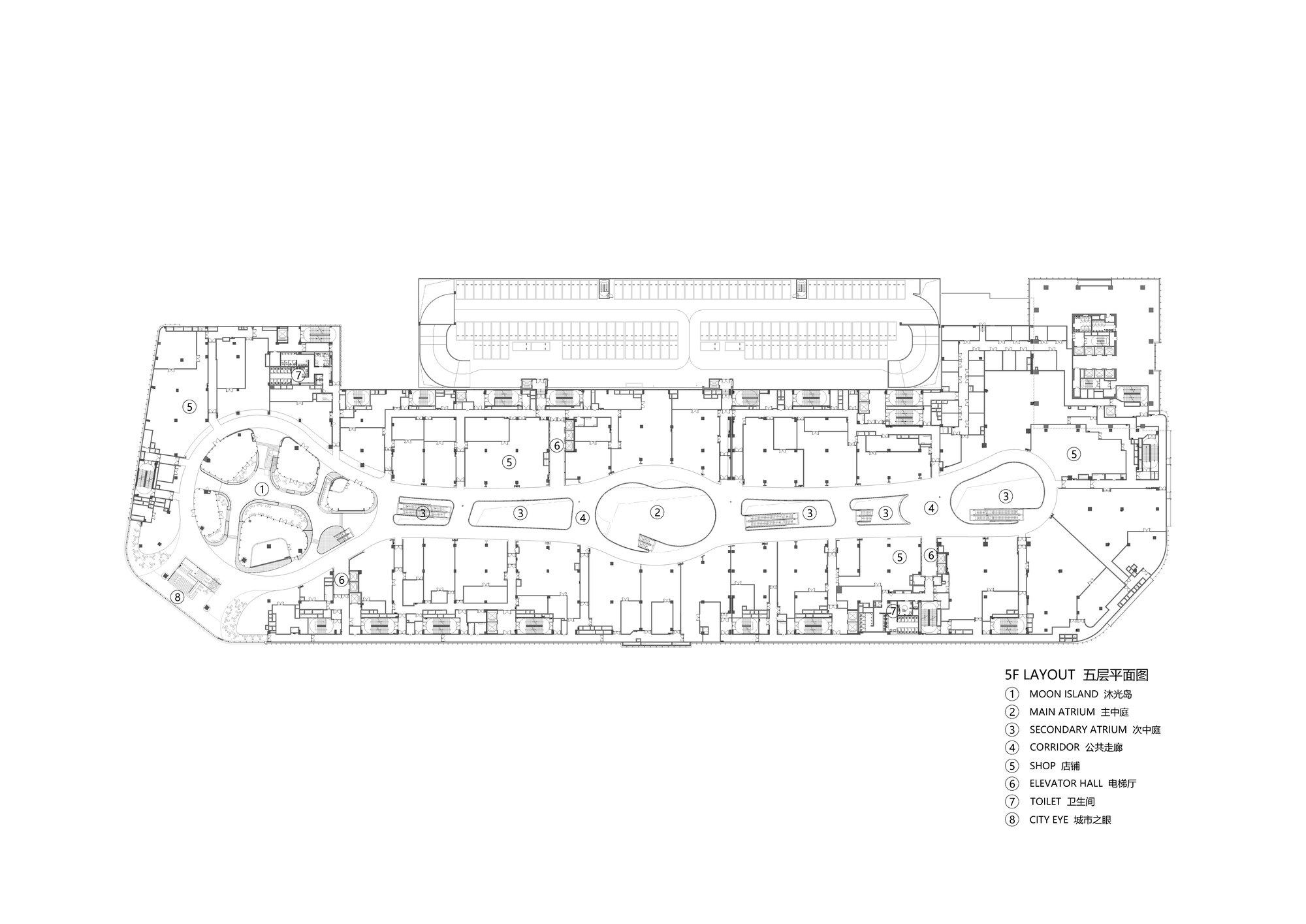
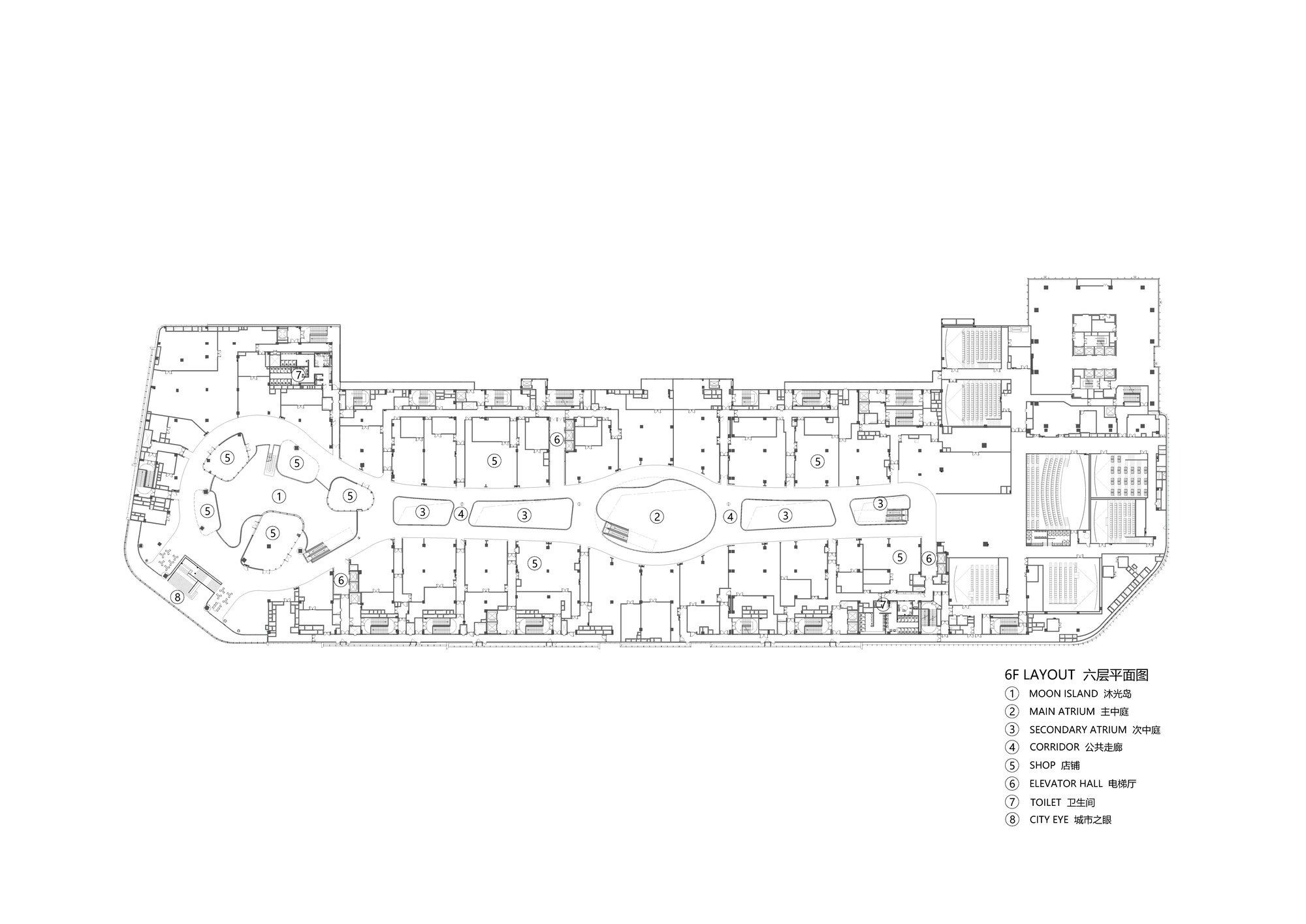
作為龍湖集團商業迭代的首個MEGA級體驗空間,相城天街在空間規劃上展現了大膽的企圖心。最引人注目的莫過於位於L5至L6高樓層的「沐光島」。這座佔地超過三千平方米的跨層式城市自然島嶼,打破了傳統商場高樓層人流難以到達的魔咒。
設計師巧妙植入綠色生態與休憩機能,創造出一處彷彿懸浮於空中的立體花園。不僅積極回應後疫情時代人們嚮往自然的心情,更試圖創新商業模式,將單純的購物行為昇華為生活風格的展演,讓高樓層成為吸引人流的磁石,而非商業死角。







水舞林澗:申俊偉用流動線條詮釋江南水鄉的現代靈魂
在蘇州這座擁有兩千五百年歷史的古典園林之城,打造一座現代化的時尚購物中心,無疑是一場古今對話的挑戰。主持建築師申俊偉提出了「水舞林澗」的設計概念,試圖捕捉江南水鄉的靈魂。
申俊偉將橫向延展近三百米的巨大內部空間,視為一條流動的河流。提取水流的蜿蜒、山林的起伏等元素,轉化為室內天花、地坪與立面的造型語彙。曲折、扭動的線條不僅消弭了長型空間的單調感,更構築出一道道流動的視覺風景,讓遊逛其中的消費者彷彿置身於流淌的水韻之中,體驗到一種「步移景異」的園林趣味。



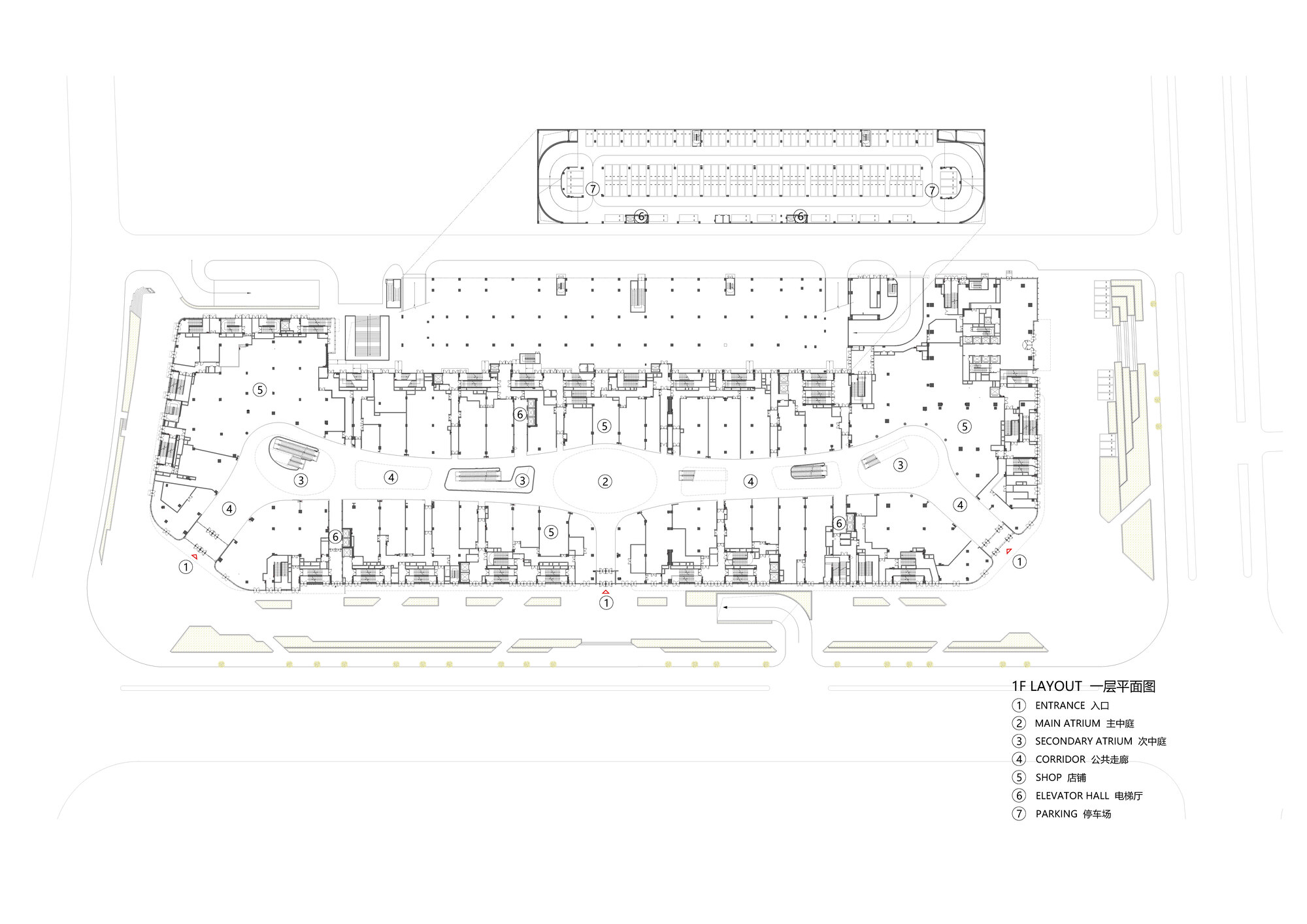
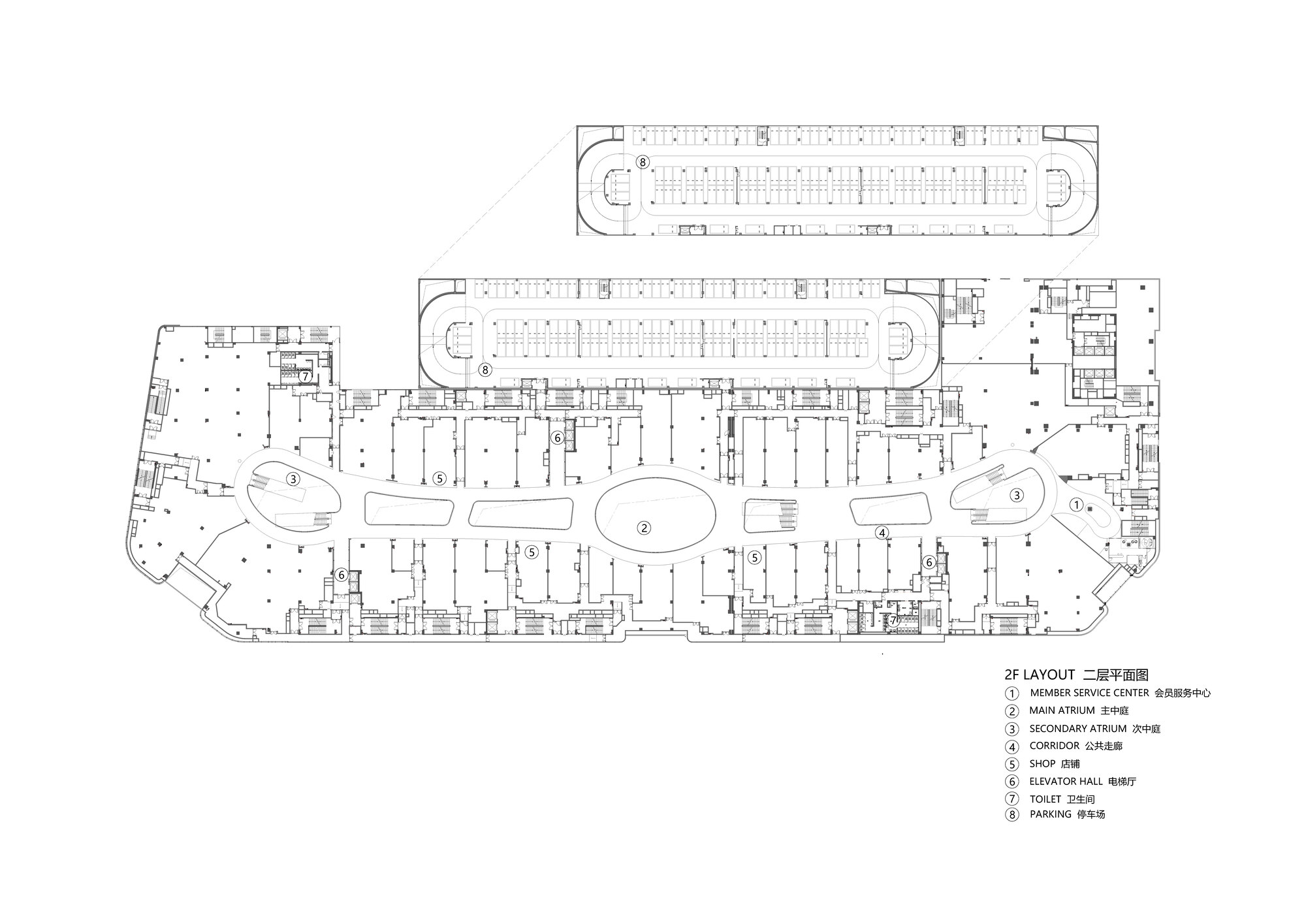
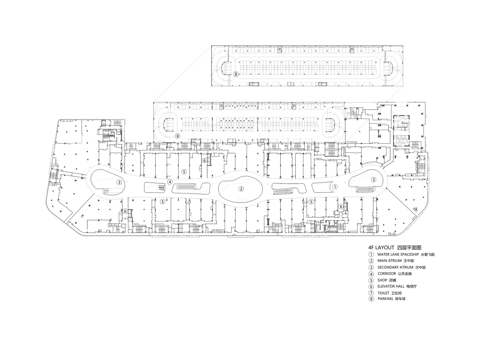
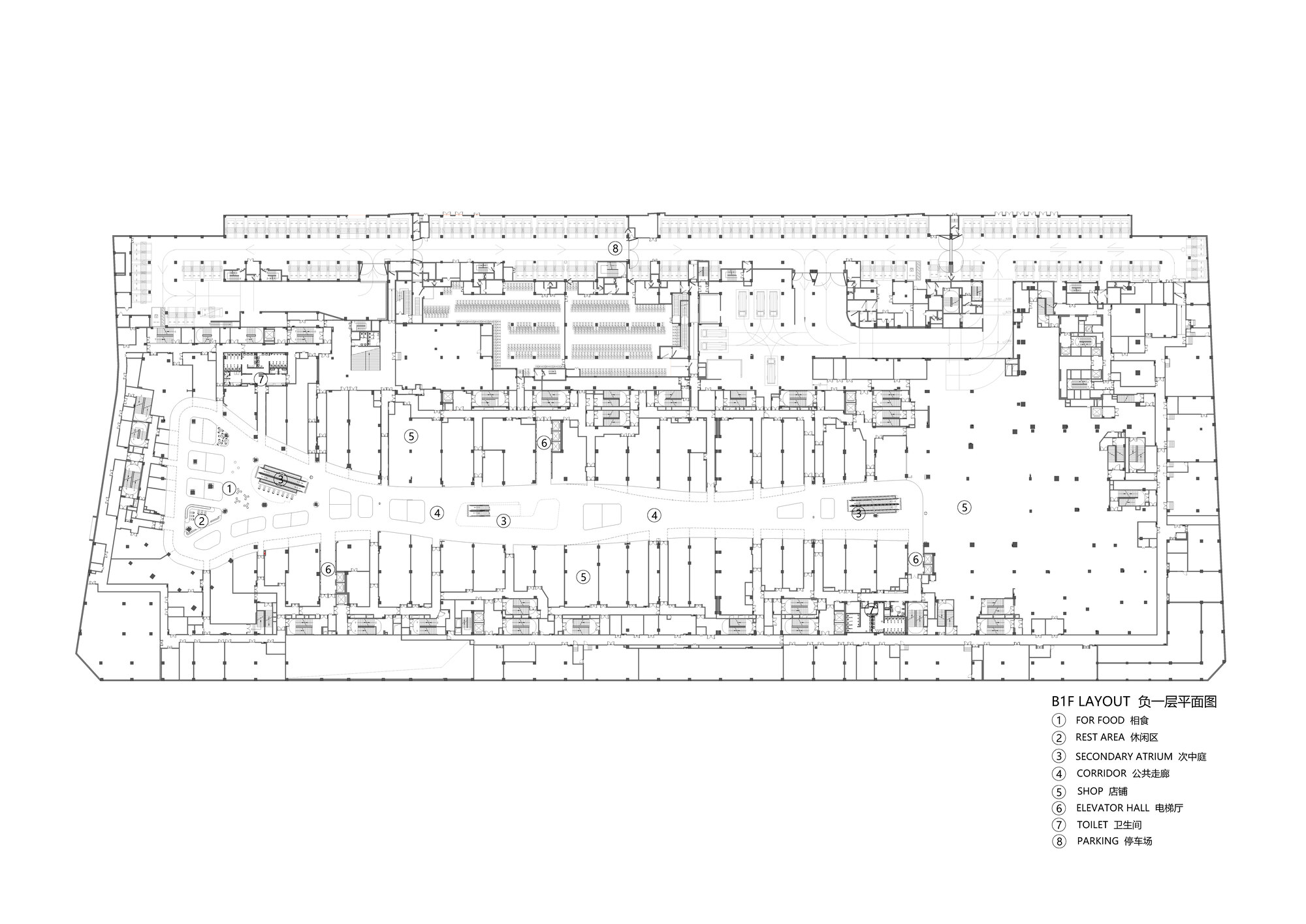
四大主題空間的敘事策略:從水韻T台到水巷飛船的沈浸式場景構建
為了強化空間的記憶點與遊逛的豐富度,設計團隊將七個商業樓層劃分為四大主題空間。除了前述的「沐光島」外,「水韻T台」利用挑空優勢創造出時尚展演的舞台感;「水巷飛船」則帶入科技與未來的想像,吸引年輕族群;「相食」則專注於餐飲體驗的營造。這些主題空間並非獨立存在,而是透過環形動線有機串聯。業態組合與共享場景被巧妙融入其中,形成鮮明的視覺衝擊力。這種分區策略不僅有助於人流的引導與分散,更讓不同客群都能找到屬於自己的舒適角落,展現了商業空間設計的細膩度。






激發消費潛能的城市催化劑:資產價值與區域發展的雙贏局
相城天街的落成,其意義遠超過單一商業項目的成功。它透過強化共享、社交與體驗等機能,成功打造出一處具備高度黏著力的城市生活中心。高品質的商業供給,有效激發了蘇州北部的消費潛能,提升了市場活力。更重要的是,它帶動了周邊區域商業的高品質發展,形成良性的群聚效應,進而提升了整體的城市資產價值。相城天街證明了,在電商衝擊下,實體商業若能提供無可取代的空間體驗與情感連結,依然能成為城市中不可或缺的活力泉源,展現出強大的生命力與社會影響力。











建築圖

















作品資訊
作品名稱:相城天街
作品位置:中國蘇州 Suzhou, China
作品類型:購物中心、商業空間、室內設計
業主:龍湖集團
設計單位:乾正設計 (ARIZON Design)
總樓地板面積:145000 平方米
竣工:2024年
攝影:Arch-Exist, Dirk Weiblen
主持建築師:申俊偉