斯海爾托亨博斯的城市終章:三十年的一錘定音
帕拉佐住宅大樓(Palazzo Residential Building Paleiskwartier)標誌著荷蘭斯海爾托亨博斯(’s-Hertogenbosch)王宮區(Paleiskwartier)城市發展超過三十年的最終章。由 Benthem Crouwel Architects 事務所設計,這棟住宅量體穩重、色彩溫暖且開放,實質上擁抱了城市生活。
王宮區環繞中央車站發展,是居住、工作和社交的交會之處。Palazzo 的落成一錘定音,賦予了整個區域新的生命力,建築特意朝向城市,為廣場創造了空間,並主動邀請市民前來連結與互動。這種向城市開放的姿態,被視為後工業時代城市更新的關鍵策略。




公共空間的市民論壇:階梯與王宮之門的設計承諾
建築師沙特捷・範德・馬德(Saartje van der Made)指出,設計企圖提升王宮區廣場(Residentieplein)的開放性,使 Palazzo 不成為屏障,而是歡迎市民的邀請函。為此,南側立面刻意向內退縮,為廣場爭取了空氣與空間。立面中央開闢了大型開口:王宮之門(Paleispoort),將建築內部的庭院與外部廣場緊密聯繫。從廣場延伸而上的一道寬闊階梯,在舉辦活動時可充當觀賞看台(tribune),日常則可作為 adjacent 餐廳的露臺,實質上將建築納入公共領域,實踐了「讓空間迴歸城市」的設計承諾。



庭院花園光影與綠化:透明森林的立體化景觀
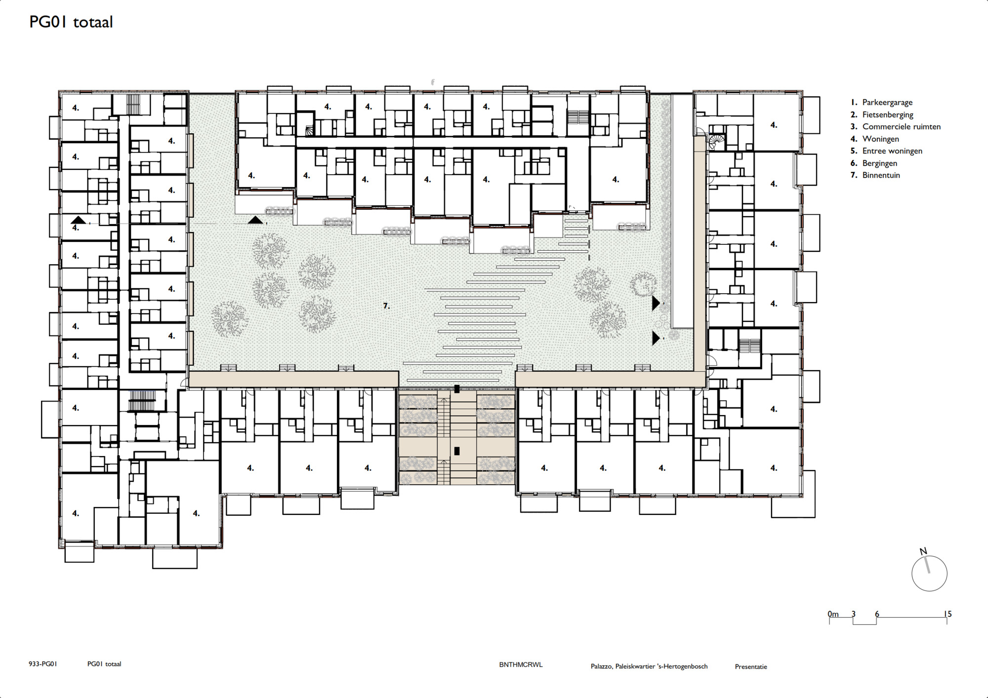
在城市街區的核心,Palazzo 規劃了一處靜謐的庭院花園,被譽為「透明森林」。這是一個充滿光線、擁有真實樹木與繁茂植栽的開放空間,專供居民社交會面。設計團隊通過將北側樓座與建築方塊分離,使得庭院得以擴大且更加明亮,能夠從三面引入日光,有效克服了城市街區內院常見的光線不足問題。綠意透過整合的花槽和階梯式露臺,向上攀爬至高層,形成了立體化的景觀。這片花園不僅是觀賞性的,更是供所有居民漫步、休憩的功能性戶外場所。



住宅與品質均等:去階層化的公平性追求
Palazzo 內含兩百三十三戶租賃與自住的住宅,戶型從緊湊的三十平方公尺單間公寓(studios)到寬敞的閣樓(lofts),選擇應有盡有。建築師的目標是創造民主化的住宅樣態,強調所有居民,無論房屋大小或價格,都能享有同等的光線、視野與居住環境品質。這種去階層化的設計策略,成功地將社會多樣性納入建築空間之中,讓不同社經背景的住戶在共享的優質環境中安居樂業,體現了當代荷蘭社會對居住公平性的追求。



立面材質與深度:難以取代的宮殿牆垣個性
Palazzo 的立面語彙,運用特殊的磚塊紋理與色彩組合,成功地融入王宮區的建築群。外牆磚採用了凸出的磚頭構成圖案,賦予立面豐富的層次感與表現深度,在陽光照射下,猶如宮殿牆垣有了生命。這種浮雕效果,與清晰的窗框和交錯的窗戶及陽臺形成了鮮明對比,讓每個單元在整體中保有自身特色。建築外觀使用了紅、橘、柔粉三種顏色,配合堅固的磚工藝,使其既屬於王宮區的建築家族,又擁有難以取代的鮮明個性。


陶瓷包覆與城市邊界:北側裙樓的最後一哩路
在建築與城市「接觸」的關鍵節點,例如王宮之門(Paleispoort)和北側裙樓,設計師選用了陶瓷包覆。略微起伏的瓷磚,賦予了建築表面一種柔軟、如同帷幕般的質感,與堅實的磚牆形成輕重對比。特別值得一提的是,這種處理使得通常被視為較為安靜的北側,轉變為醒目且具特色的前立面。 Palazzo 的設計在遵循總建築師的清晰框架下,尋求自由與表達,既尊重王宮區的整體建築語彙,同時又為城市注入了充滿力量、層次分明的建築區塊,完成了城市規劃的最後一哩路。

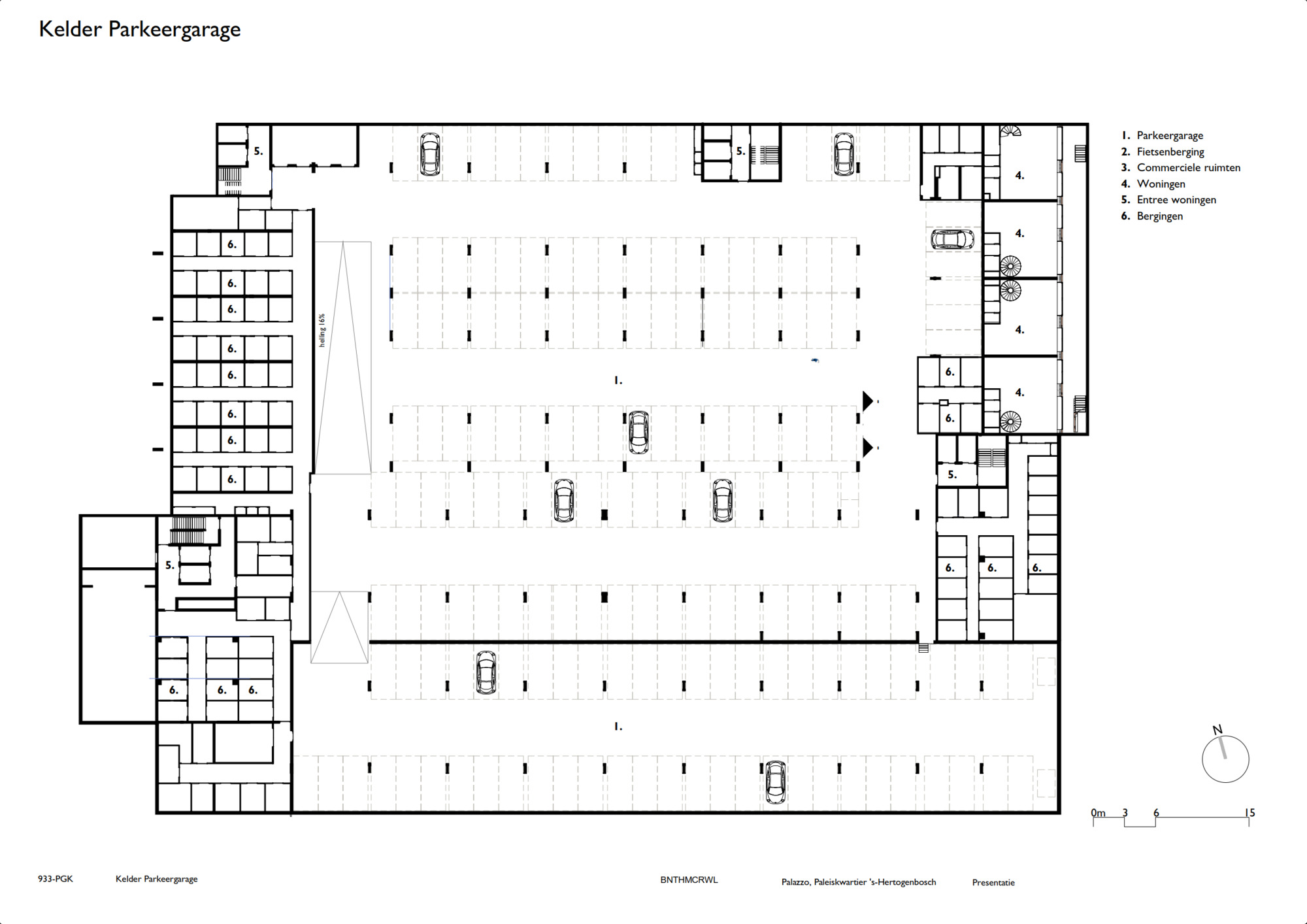
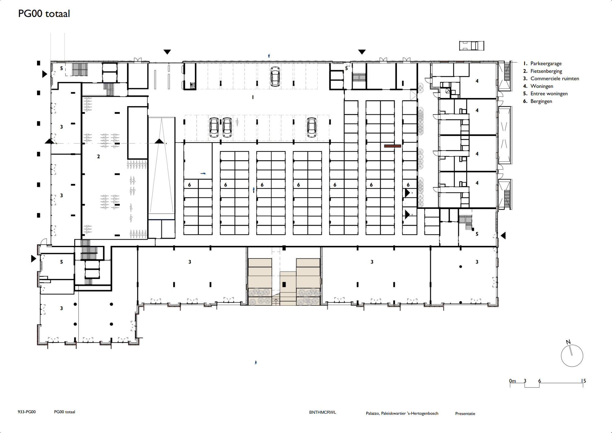
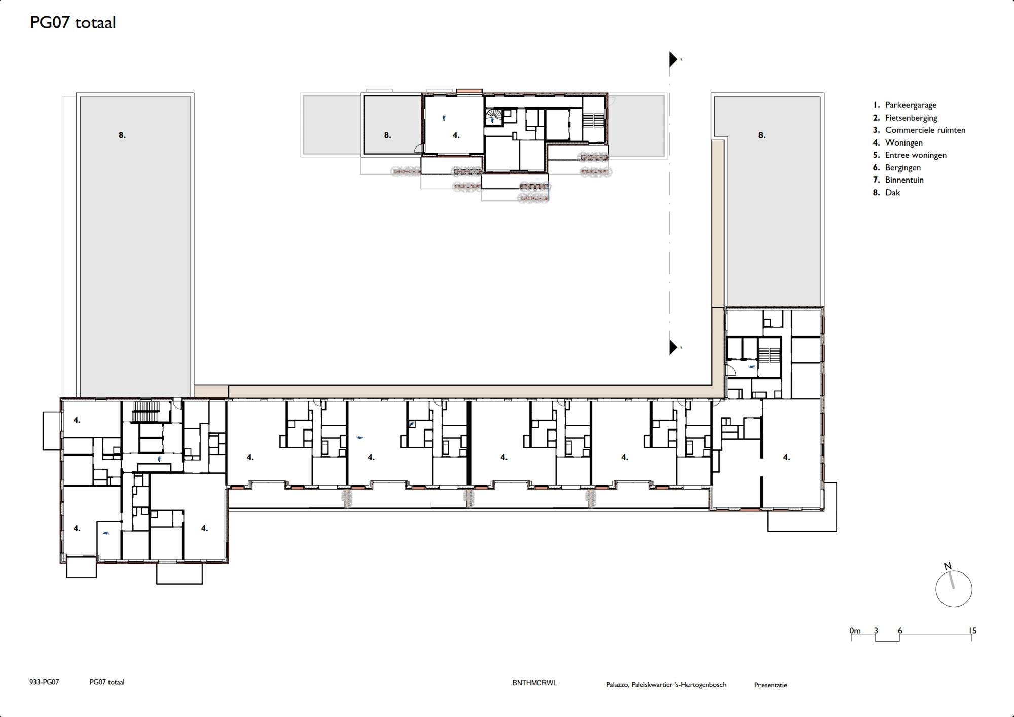
建築圖










作品資訊
作品名稱:Palazzo Residential Building Paleiskwartier
作品位置:荷蘭 斯海爾托亨博斯, ‘s-Hertogenbosch, The Netherlands
作品類型:集合住宅、住宅、公寓、荷蘭建築
業主:B.V. Ontwikkelingsmaatschappij Paleiskwartier, een onderneming van Gemeente ’s- Hertogenbosch, NIBC Bank N.V. en VolkerWessels
設計單位:Benthem Crouwel Architects
總樓地板面積:21841 平方米
竣工:2025年
攝影:Jannes Linders
主設計師/合夥建築師:Saartje van der Made
設計發展:Quadrant Architecten
工程顧問:Raadgevend Ingenieursbureau van Nunen
設備顧問:Endotec
建築物理顧問:Peutz
營造廠:Van de Ven Bouw & Ontwikkeling