鐵皮浪板與舊木材
「Ton Corner Coffee Shop」咖啡館位於越南順化市中心的一條小巷弄中,由TON Architects設計,總樓地板面積103平方公尺。建築師拆除了原本老舊的小房子,墊高地基以防止洪水侵襲。由於土地租期較短,因此採用鋼構建造,主要建材為鐵皮浪板、舊木材和強化玻璃,用鐵皮屋型態打造出開放和動態的咖啡空間。




兼具美觀與實用性的建築材料
和台灣一樣,在越南順化這樣潮濕多雨的氣候中,人們也常使用鐵皮浪板來覆蓋房屋外牆及屋頂,用低價且快速的方式界定或者增加空間,就像火鍋包容了所有食材那樣,鐵皮屋同時可以防水擋風擋太陽。然而,若沒有適當的美學和技術處理,使用鐵皮浪板會導致房屋失去原有的美觀價值,甚至造成市容的破敗感。TON Architects巧妙地運用鐵皮浪板,賦予其新的生命力,展現出鐵皮屋獨特美學。






與周遭環境的融合
Ton Corner咖啡店意圖創造通風的空間,營造開放和動態的氛圍,為這個充滿懷舊和傳統的城市注入新的氣息。儘管大量使用玻璃,但由於周圍環繞著房屋和樹木,因此不會受到陽光直射。挑高的空間設計讓使用者在有限的空間內不會感到侷促,同時也能清楚地欣賞到前後的綠意美景。


空間流動與互動
設計團隊拆除了舊有的圍欄,使內外空間的界線幾乎消失,取而代之的是一條橫跨整個立面的長椅,創造了一個柔軟的邊界,將人們吸引到咖啡店內。室內咖啡座與後花園相連,創造出更具彈性、連貫性和活力的空間體驗。



咖啡店的永續設計理念
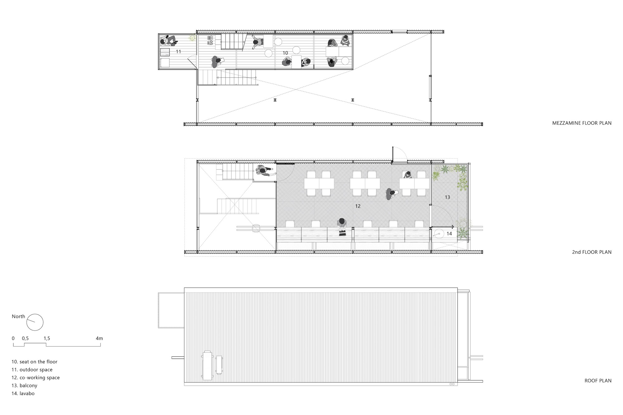
服務區採用鋼框架和舊木材覆蓋,以線性方式排列,營造簡潔有序的美感。兩層樓和一個夾層的結構設計,提供了更多的使用面積和座位,同時也為使用者創造了有趣的空間體驗。服務區上方是低矮的咖啡座位區,適合需要親密感和隱私的顧客。二樓則是適合需要安靜工作、學習或舉辦工作坊的空間,其挑高的設計和開闊的視野,讓人彷彿置身於舒適的閣樓之中。








建築圖






作品資訊
作品名稱:Ton Corner
作品位置:越南順化5 kiệt 15 Đống Đa tổ 10, Phú Nhuận, Huế, Thừa Thiên Huế, 越南
作品類型:咖啡館、餐飲設施、鋼構、鐵皮屋、鐵皮屋頂、越南建築、越南建築師
設計單位:TON Architects
總樓地板面積:103 平方米
竣工:2024年
攝影:Ton That Hoang Anh
主持建築師:Ton That Hoang Anh
設計團隊:Le Huu Van, Ho Sy Thong, Nguyen Van Trung