縫合學術與臨床醫學的超級轉譯樞紐
新南威爾斯大學健康轉譯中心 (UNSW Health Translation Hub) 由業界極具盛名的 Architectus 建築師事務所負責規劃設計,傲然挺立於澳洲雪梨 (Sydney, Australia) 的重要醫療樞紐。該醫療建築作為串聯新南威爾斯大學肯辛頓校區與蘭德威克健康創新園區的關鍵橋梁,期盼在教育、研究與臨床照護間建立起極為高效的生態循環系統。
轉譯醫學近年在全球蔚為風潮,核心目標便是縮短從實驗室研發到病床照護的漫長耗時,讓基礎科學不再只是象牙塔內的理論。雪梨長期以來便是亞太地區生技產業的重鎮,匯聚頂尖生醫人才與充沛資金。藉由空間的實體串聯,學者與臨床醫師得以加速知識交流,大幅提升醫學發現轉化為實際治療方案的效率。
相較於傳統醫院將研究部門邊緣化的做法,本案將2種截然不同的工作型態絕佳結合,替新南威爾斯州的公共衛生福祉注入強大動能,更為全球大型醫療院所的空間革新指引出明確方向。檢視歐美先進國家的發展軌跡,如美國波士頓生技聚落或是英國倫敦的生醫園區,皆強調跨領域群聚效應所帶來的巨大經濟效益。新南威爾斯大學健康轉譯中心正是承襲此般理念,將原本分散的資源進行高度集中,期望在未來10年內催生出更多具備國際競爭力的新型療法與專利技術,徹底翻轉澳洲在國際生醫版圖中的戰略地位。



串接都市交通與頂尖醫院的立體空橋
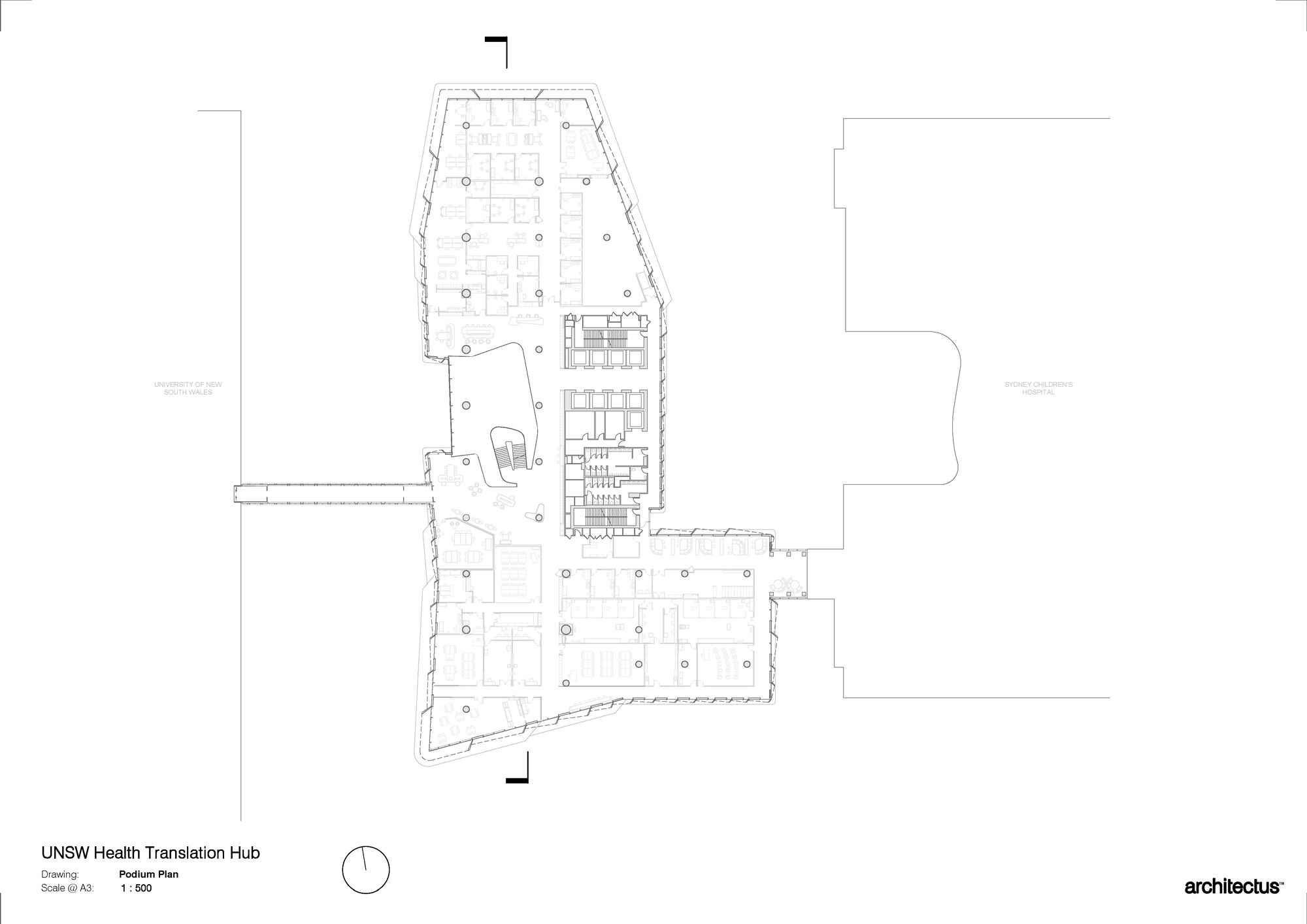
基地精準座落於 High Street 與 Botany Street 的黃金交叉口,建築量體在實體與象徵層面上,皆精準縫合大學校區與相鄰的醫院廣大腹地。設計團隊特別將1樓地面層規劃為具備極高滲透性的開放式市民廣場,將都市的公共人流自然引入基地內部,並提供直達周邊交通路網與重要醫療節點的便捷穿越通道。
為進一步強化區域連通性並考量病患移動的安全隱私,2座極具現代感的全玻璃人行空橋橫空出世。西側空橋負責連結以基礎醫學研究聞名的 Wallace Wurth 大樓,東側空橋則串接雪梨兒童醫院 (Sydney Children’s Hospital) 與 Minderoo 兒童綜合癌症中心。設計巧思構築出任由人群與醫學點子自由穿梭的立體動線,帶出強大的空間流動感。在過往的都市規劃中,大型醫院往往給人難以親近的封閉感,透過打破圍牆的開放邊界設計,實質提升周邊社區居民的步行便利性,讓醫療設施不再是都市紋理中的孤島。
回顧雪梨市政府近年推動的「大雪梨都會區計畫」,強調步行城市與公共運輸導向發展,該轉譯中心的空間佈局恰好與官方政策不謀而合。高聳的建築量體並未阻斷城市的呼吸節奏,反倒化身為串聯四面八方的交通樞紐,每日承載數千師生、醫護與病患家屬安全通行,將醫療園區的公共價值發揮至極致水準。



呼應雪梨海岸沙丘地形的雕塑感立面
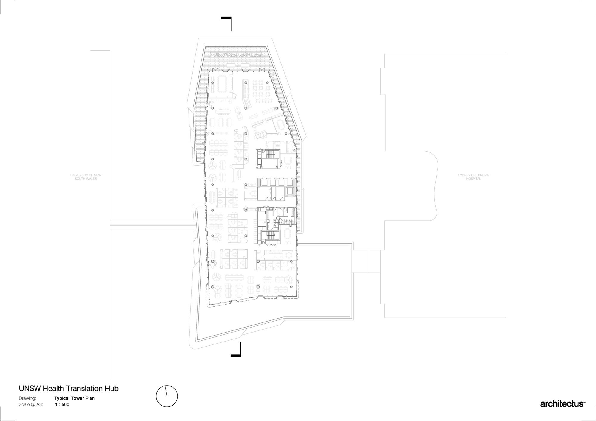
高達14層樓的立體量體,外觀呈現出充滿流線韻味的雕塑美學,呼應其匯聚人群與跨學科思想的樞紐定位。立面設計靈感源自雪梨東部海岸線受海風吹拂形塑而成的自然沙丘,呈現當地風土的當代藝術詮釋。澳洲夏季日照極為強烈,外牆系統為此整合凸出遮陽罩、雙層玻璃與隔熱板,在有效控制太陽熱能侵入室內的同時,也虛化龐大建築的笨重感。
玻璃纖維強化混凝土 (GRC) 面板、優雅曲面鋁製遮陽板以及高性能低輻射玻璃的絕佳比例搭配,帶來減少60%太陽輻射的驚人成效。層次豐富的立面系統創造出深邃的建築紋理,在日夜交替間捕捉千變萬化的光影遊戲。觀察國際綠建築發展趨勢,雙層立面系統已成為應對極端氣候的標準配備,該案更進一步將機能性元件轉化為裝飾藝術,讓整座塔樓猶如巨型現代雕塑品般矗立於市區。
雪梨東海岸以擁有絕美沙灘與特有砂岩地貌聞名於世,建築師透過參數化設計軟體,將風吹過沙丘所留下的波紋曲線,精確轉譯至金屬遮陽板的彎曲弧度上。仿生學的應用不但解決西曬帶來的龐大空調耗能問題,更賦予生硬鋼筋水泥一股柔和且具備生命力的動態美感。日落時分,夕陽餘暉灑落於立面上,反射出溫暖的金黃色澤,替冰冷的醫療園區注入令人安心的視覺溫度。



輕盈通透的市民燈塔與在地材質語彙
回歸街道層的行人視角,高度透明的帷幕玻璃外牆散發出強烈的歡迎氣息,徹底消弭傳統醫療機構常見的冷漠距離感。相較之下,塔樓上半部則採用較為輕盈的「天空」語彙,使其成為蘭德威克健康創新園區內極具指標性的市民燈塔。建材色調的挑選深度汲取在地自然景觀的沙地色彩與觸感,廣泛運用輕質磚石、大面積清透玻璃以及帶有溫潤質感的清水混凝土飾面。
材質組合讓該醫療設施穩穩地扎根於當地土壤,帶出對施工細節近乎苛求的職人精神。材料的本土化有助於降低長途運輸產生的龐大碳足跡,更確保建築外觀能與周遭的老舊紅磚校舍產生流暢的視覺對話。在澳洲當代建築論述中,如何將龐大公共建設融入既有歷史街區始終是熱門議題。本案並未刻意追求特立獨行的奇異造型,而是從周遭環境中提取色彩與基因,重新編排為符合現代美學的立面組成。
大面積清透玻璃帶來絕佳採光,更在夜間化作指引方向的光盒,替晚歸的醫護人員與焦急的病患家屬提供心理層面的溫柔撫慰。兼具實用機能與人文關懷的設計手法,清楚說明頂尖營建團隊在處理大型公共工程時所具備的深厚底蘊。



促進醫學跨界交流的多層次垂直中庭
踏入建築室內,明亮通透的多層次垂直中庭隨即映入眼簾,成為整座設施的社交與學術協作心臟。挑高空間透過宛如瀑布般錯落有致的造型樓梯與寬敞的走道區域,將4個裙樓樓層在視覺與物理動線上緊密相連。廣闊的公共交誼場域,大幅增加頂尖學者、基層研究人員、前線臨床醫師與醫學院學生在此不期而遇的機率,進而激盪出跨領域的創新火花。中庭設計毫不掩飾地展露內部運作實況,反映出當代轉譯醫學研究追求公開透明的核心價值。敞開的空間型態,有效打破傳統醫療實驗室各自為政的孤立狀態。根據多項管理學研究指出,辦公空間中的偶然相遇往往是激發顛覆性創新的關鍵契機,如矽谷科技巨頭的總部皆刻意拉長員工前往茶水間的動線。
中庭特意配置多元型態的休憩座位與咖啡吧台,吸引不同科別的專家在輕鬆氛圍下進行非正式討論。神經外科醫師在等待咖啡的空檔,便能與生物資訊學者交流最新的基因定序技術,進而促成極具潛力的合作研究案。空間的流動性帶動知識的流動性,讓生硬的鋼筋水泥化作培育尖端醫學知識的溫床,大幅提升新南威爾斯大學在全球學術界的競爭優勢。歐美頂尖生技園區如波士頓肯德爾廣場,皆極力推崇隨機交流所帶來的知識外溢效益。新南威爾斯大學將此概念引進雪梨,期望打破基礎科學與臨床應用之間的隔閡,加速實驗室研發成果步入商業化量產階段,替澳洲生技產業鏈注入源源不絕的創新活水,帶出更具韌性的醫療經濟體系。


延續海岸意象的室內動線與聲學設計
轉譯中心的室內設計語彙延續外觀與景觀規劃的海岸地形概念,營造出和緩且充滿療癒感的環境氛圍。設計團隊利用多樣化的材質變化來定義不同的空間機能,舉凡休息座椅區、共用工作檯面與室內植栽區皆經過縝密考量。地板表面色澤與光澤的細微漸變,明確劃分出行走動線,協助初次到訪的病患與家屬在廣大空間中進行直覺式的導航,降低迷路產生的焦慮感。
考量到醫療研究環境對於安寧的極高要求,許多互動節點與需要獨立作業的區域,皆大量採用質地豐富且吸音效果極佳的建材。高規格的聲學處理,確保醫護人員與研究者能在最專注的狀態下,執行複雜的醫學數據分析工作。現代醫院常因廣播聲、儀器運轉聲與人群交談聲混雜,導致嚴重的噪音污染,進而影響病患休養與醫護專注力。設計團隊針對天花板與牆面進行多重吸音構造處理,並利用柔軟的布面家具吸收多餘回音。
在色彩心理學的應用上,室內捨棄傳統醫院給人冰冷壓迫感的純白色調,改採溫暖的沙色、淺木色與象徵海洋的灰藍色系,將雪梨迷人的海岸風光自然轉譯至室內空間中,從視覺與聽覺雙管齊下,替所有使用者構築出寧靜安定的避風港。值得一提的是,室內照明系統同樣經過專家精心調校,採用符合人體晝夜節律的仿生光源。日間提供高色溫的明亮光線以提升工作效率,夜間則自動轉換為低色溫的柔和光暈,協助經常需要輪值大夜班的醫護人員維持穩定的生理時鐘,從細微處顯示設計團隊對於醫療從業人員身心健康的極致呵護。



土地即良藥的原住民文化與景觀規劃
該案並非單純的學術象牙塔,而是透過頌揚當地原住民文化的公共景觀,慷慨地向周邊社區敞開大門。在澳洲原住民文化顧問 Yerrabingin 與頂尖景觀團隊 Aspect Studios 的共同合作下,公共領域深度整合並詮釋這片土地的歷史。基地過去曾是介於植物學灣與雪梨港之間的古老沙丘,景觀方案透過層層堆疊的沙岩梯田與特有種植被,生動喚起不斷變遷的海岸記憶。植物選擇大量採用在原住民文化中具備重要藥用價值的澳洲原生植物,強烈呼應「土地即良藥」的古老治癒理念,向世世代代生活於此的 Bidjigal 與 Gadigal 部族智慧致上最高敬意。澳洲社會近年來極力推動轉型正義與原住民文化復興,大型公共建設紛紛將傳統部落元素納入設計規範。本案景觀腹地不僅提供視覺上的綠意盎然,更化身為充滿教育意義的戶外植物園。漫步其間的學者與病患,能透過解說牌認識古老部落傳承千年的草藥知識,體悟大自然賦予的療癒力量。錯落有致的戶外休憩區,替高壓的醫護人員提供喘息空間,也讓病患家屬得以在陽光與微風的撫慰下平靜心情,精準詮釋現代醫療結合自然療法的全人照護精神。



迎向公眾的透明介面與氣候行動計畫
建築低樓層與夾層空間容納多項面向公眾的設施,包含零售商店、展覽藝廊、臨床服務與教育推廣區。為因應日漸增加的設施使用量,未來甚至保留極大空間彈性,以利後續 增建 (Original) 擴充精密醫療設備。透明且充滿歡迎氣息的友善介面,順利拉近校園與社會大眾的距離,讓艱澀的醫學知識得以用更平易近人的方式走入常民生活。
在追求頂尖醫學成就之際,環境永續發展策略同樣與新南威爾斯大學的氣候行動計畫高度一致,緊緊圍繞協作、健康福祉、未來韌性以及碳效率等4大核心支柱。前瞻性的環保目標被深植於設計的基因中,呈現澳洲對抗全球極端暖化的堅定立場。在國際能源價格飆漲與減碳法規日益嚴格的雙重夾擊下,大型醫療設施的營運成本面臨嚴峻挑戰。
團隊透過被動式環境控制原則,極大化自然採光與通風效益,從源頭降低對耗能機電設備的依賴。高效率的建築外殼搭配智慧化能源管理系統,確保室內環境在酷暑寒冬皆能維持極佳舒適度。具有高度適應性的空間格局,可隨時配合未來新興傳染病或特殊醫療需求進行快速改裝,延長建築的整體生命週期,避免拆除重建所造成的龐大資源浪費,帶出極具長遠眼光的資產管理策略。



榮獲六星級綠建築認證的零碳排標竿
憑藉卓越的環保表現,本案順利取得業界極具權威的澳洲6星級綠星 (Green Star) 認證。外牆全面選用負責任採購的建材,相較於傳統基準,整體碳排放與能源消耗皆達成減少20%的顯著改善。其為一棟完全電氣化的現代醫療建築,營運所需電力100%仰賴無污染的再生能源,屋頂更加裝大容量的100 kW太陽能光電陣列,自給自足降低電網負載。
先進的資通訊基礎建設獲頒 WiredScore 白金級認證,確保具備充足數位韌性來迎接未來遠距醫療與人工智慧科技挑戰。為實質鼓勵醫護人員與師生採取低碳通勤模式,建築內部設置直達地下一樓的專屬自行車坡道,並配備超過120個單車停車位、高級淋浴間與置物櫃,最高可服務3000名使用者。
加上超過2500平方公尺的戶外開放公共空間,健康轉譯中心向世人證明,永續設計不僅能大幅提升建築本身的節能效能,更能實質改善都市微氣候品質與周邊社區的人際連結。兼具前衛美學與環保良知的醫療重鎮,必將成為引領南半球乃至全球公共衛生基礎建設的璀璨明珠。



友善指標系統與都市策略的宏觀視野
除了硬體建設的卓越成就,全區的都市策略與指標導視系統同樣扮演著舉足輕重的關鍵角色。都市策略顧問立足於宏觀視角,詳細盤點雪梨東區的醫療資源與交通脈絡,確保健康轉譯中心能與周邊發展計畫產生相輔相成的綜效。
指標與導視系統設計團隊則深入研究病患與醫護人員的移動行為心理學,利用清晰易懂的圖形語言與色彩編碼,在錯綜複雜的醫療園區內建構出極度友善的尋路機制。高明且直覺的導視設計,大幅降低訪客迷路所產生的無形壓力,提升整體服務體驗。綜觀全局,該設施從微觀的室內材質挑選,到宏觀的都市路網串接,皆顯示頂尖專業團隊的深厚實力。徹底擺脫傳統醫院擁擠陰暗的負面形象,替全球醫療建築樹立難以超越的高標準,引領醫學研究走向更具人文關懷的光明未來。
澳洲作為全球醫療體系名列前茅的先進國家,政府部門對於公共醫療基礎建設的投資始終不遺餘力。面對未來高齡化社會與未知傳染病挑戰,具備高度擴充彈性與智慧化管理的醫療園區已成各國競逐焦點。新南威爾斯大學憑藉其深厚的學術底蘊,攜手民間頂尖營建與設計團隊,共同推動此項深具時代意義的指標性工程。
當研究人員在明亮舒適的環境中開發出拯救無數生命的新世代疫苗,當病患在充滿綠意與藝術氣息的空間裡重拾健康,便是優質建築設計回饋社會的最有力證明。透過永續與人本理念的雙重加持,健康轉譯中心必將持續在亞太地區的醫學發展史上,扮演不可或缺的領導角色。






建築圖







作品資訊
作品名稱:UNSW Health Translation Hub
作品位置:澳洲 Sydney, Australia
作品類型:醫療建築、醫療設施、澳洲、澳洲建築、澳洲建築師
設計單位:Architectus
竣工:2026年
攝影:Hufton Crow, Nicole England, Ned Donohoe
首席建築師及室內設計:Architectus
景觀設計:Aspect Studios
原住民文化顧問:Yerrabingin
結構工程:Arup, Acor Consultants
立面工程:Surface Design
建築設備工程:Arup
水利、風力及聲學工程:Arup
土木工程:Warren Smith & Partners, Acor Consultants
消防工程:Warrington Fire
垂直運輸設計:Arup, LCI Consulting
專業照明:Electrolight
環境永續設計(ESD):Atelier Ten, Flux Consultants
指標與導視設計:Urbanite, Studio Gerber
建築法規顧問(BCA):McKenzie Group
無障礙設計顧問:Jensen Hughes (formerly MGAC)
航空顧問:AviPro
交通工程:JMT Consulting, Ason Group
都市策略:Michael Harrison
規劃:Ethos Urban
工料測量:WT Partnership