商業化浪潮下的居住本質叩問與歸屬感重建
印尼旅遊勝地峇里島,這個被譽為「眾神之島」的熱帶天堂,每年吸引數百萬遊客造訪,隨之而來的是大量標準化、強調奢華卻缺乏靈魂的租賃物業。
然而,Arkana Architects建築師事務所試圖在Villa Sipat & Sauh一案中,對抗這種商業化的同質性浪潮。設計團隊面臨之挑戰極具張力:如何在150平方米的緊湊基地上,構築一處既能滿足短期租賃需求,又能傳遞出如同私人住宅般溫潤紋理的建築作品。非獨空間的營造,更試圖創造歸屬感,在流動的旅宿市場,錨定那份令人安心的居家氛圍,使旅人在異鄉也能觸摸到生活的真實溫度,而非僅是樣板房式的短暫棲居。




玻璃磚天井與顛覆傳統的廚房迎賓儀式
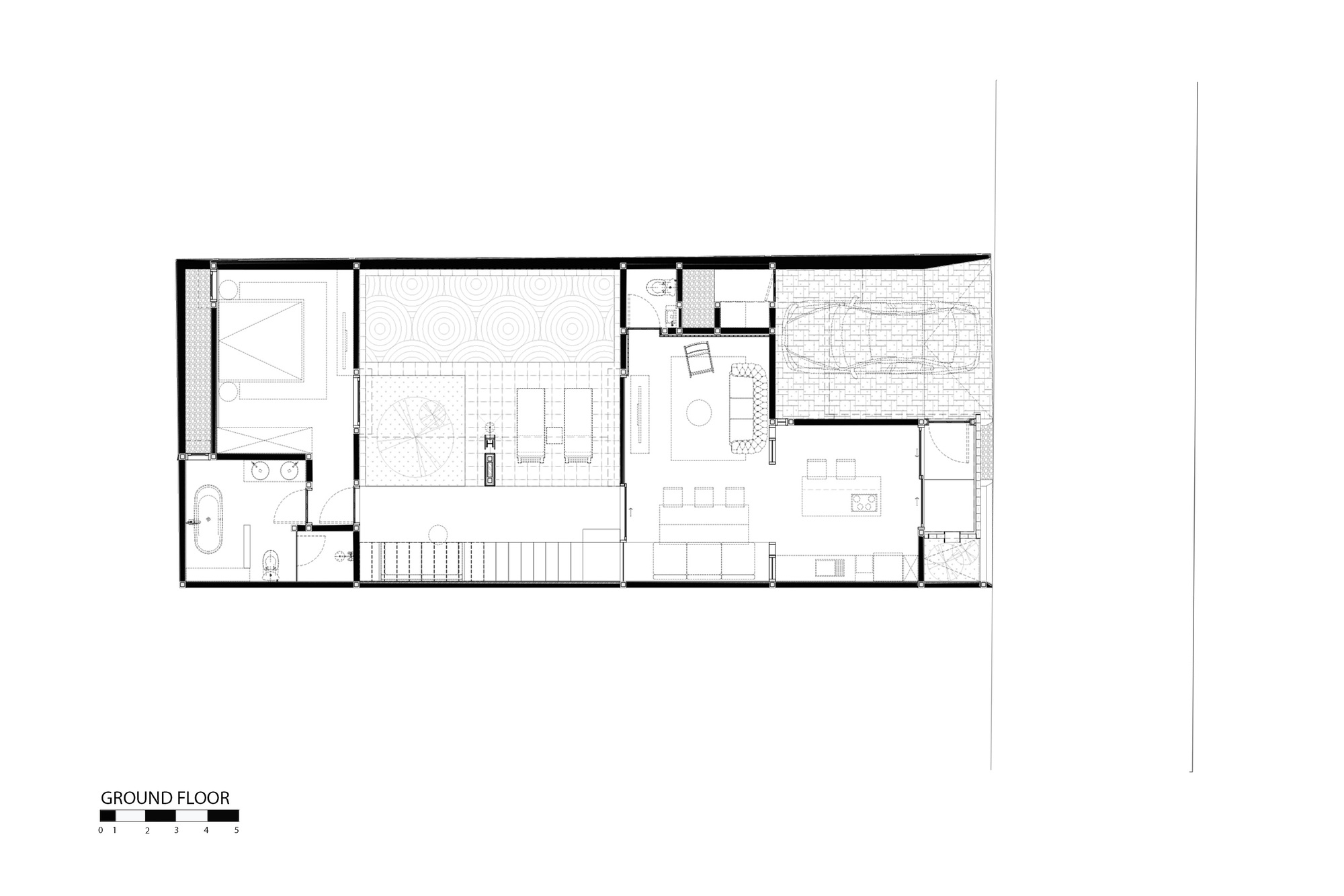
建築的敘事從踏入大門的那一刻悄然展開,訪客並非直接進入冷氣房,而是先穿過一方由玻璃磚框構而成的玄關。過渡空間刻意向天際敞開,任由陽光灑落或雨水滲入,形成充滿觸覺與詩意的物理感知,迫使人們在進入室內前,先與自然節氣進行對話。
打破印尼傳統住宅以客廳作為迎賓門面的常規,映入眼簾的首個場域是設有中島流理台的餐廚空間。此種非典型的動線安排,置換正式與私密的位階,將烹飪與飲食這類最具家庭凝聚力的行為推向核心,不難看出設計者企圖透過空間佈局,引導居住者卸下心防,在烹飪的香氣中重拾人際互動的親密感。




流動的半透明介質與消弭邊界的空間魔法
穿越充滿煙火氣的餐廚區,起居空間以一種連續且流動的姿態展開。設計團隊運用木構架與長虹玻璃組成的半透明隔屏,作為場域之間的柔性界定。此種介質模糊實質的邊界,卻未切斷視覺與空間的聯繫,光線得以在不同機能區域間自由穿梭,空氣也隨之流動。
若隱若現的視覺效果,宛如東方園林中「借景」與「障景」的現代轉譯,既保留各個空間的獨立性,又維持整體通透的呼吸感。在總樓地板面積250平方米的限制下,消弭小坪數常見的壓迫感,流露出一種寬得多的心理尺度,讓居住者在移動過程中,隨時能感受到光影在材質表面留下的時間刻痕。




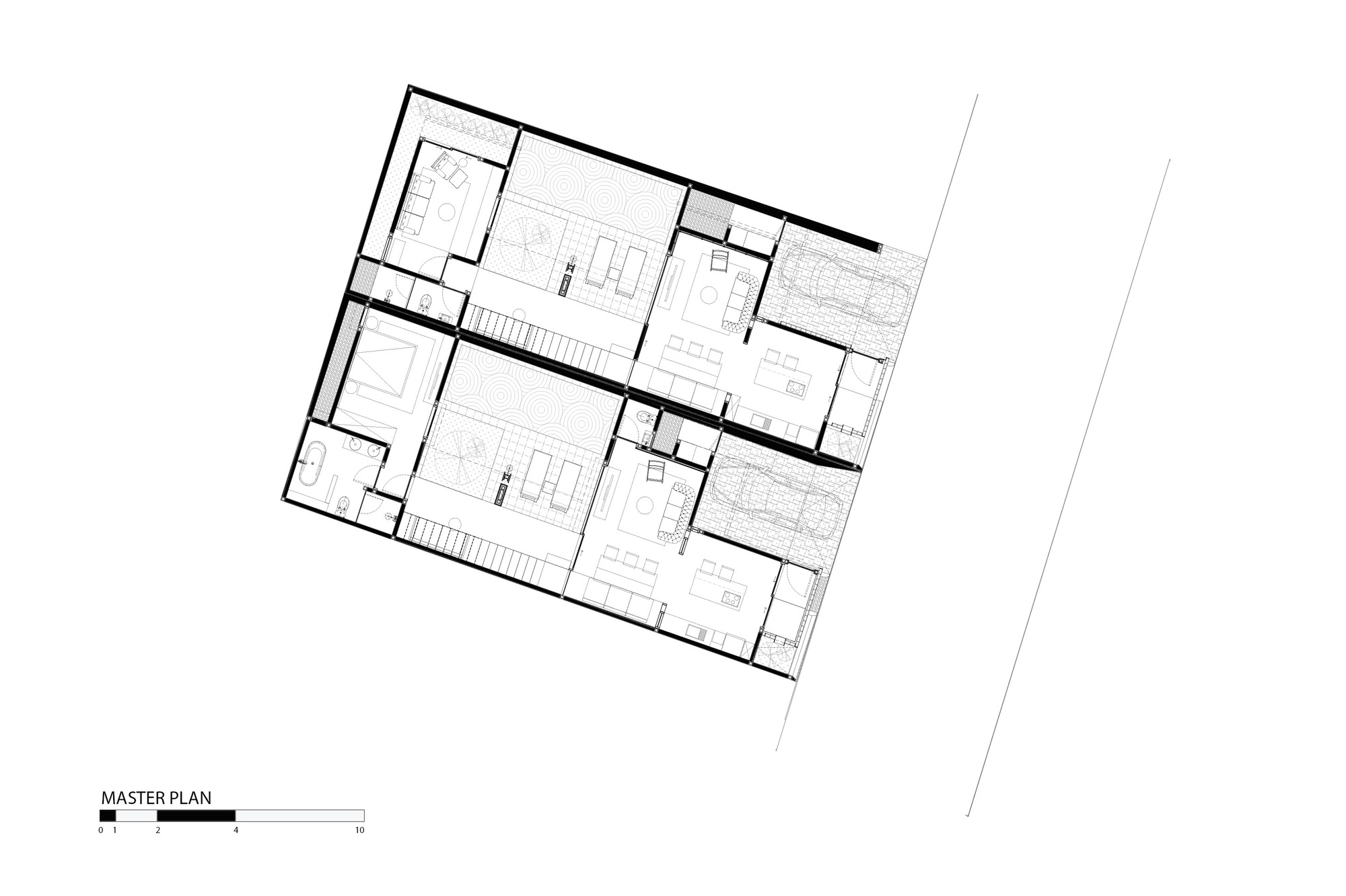
內庭院作為情感錨點與垂直向度的自然對話
整棟別墅的靈魂錨點,無疑是位於核心位置的內庭院與泳池。這個露天的垂直核不僅在機能上區隔前側的公共區域與後方及上層的私密臥室,更在情感上扮演聚合的角色。水體的波光瀲灩映照在牆面上,隨著日照角度推移而變幻,為靜謐的建築量體注入動態的生命力。
緊鄰泳池畔的樓梯設計,強化垂直向度的連結,讓人在上下樓層的移動過程中,始終保持與戶外自然的對話。此種類似傳統天井的佈局,有效地促進熱空氣的排放與冷空氣的引入,在炎熱的熱帶氣候中調節微氣候,回應建築師對於環境永續與居住舒適度的精準掌握,將被動式設計邏輯隱藏在優雅的空間形式之中。




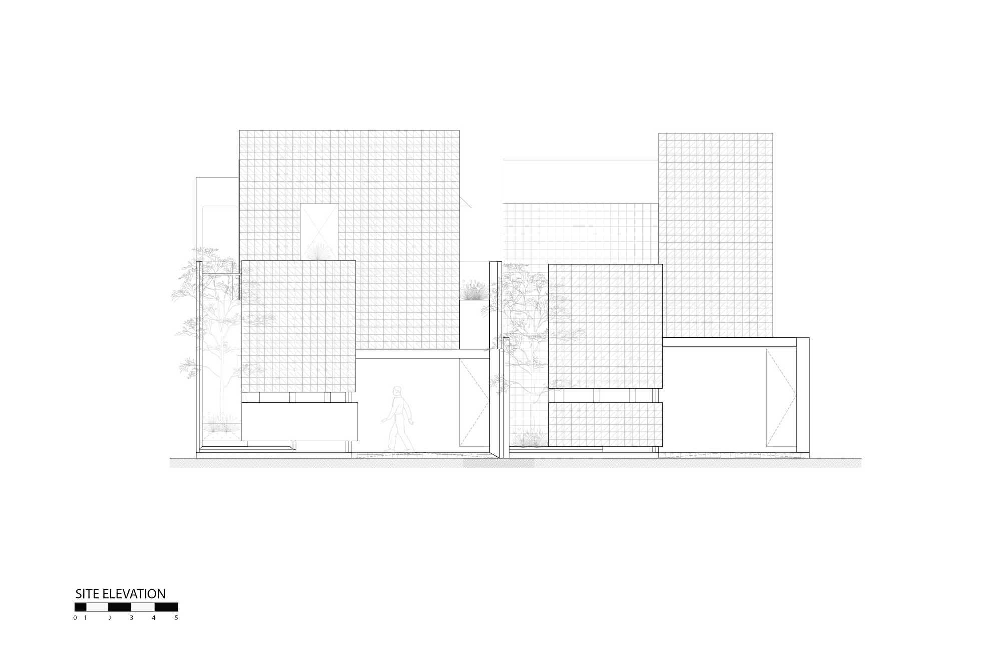
幾何理性的立面濾鏡與拒絕異國情調的真實
區別於峇里島常見的茅草屋頂或過度裝飾的民俗風格,Villa Sipat & Sauh的外觀透出一種極致的幾何理性。選用玻璃磚作為立面主材,不單因為其堅固耐用的物理特性,更在於其獨特的光學表現。這道晶瑩的牆體如同一層城市濾鏡,屏蔽街道直視室內的視線,確保居住者的隱私,同時又向外界透露出模糊的人影與燈光,引發路人對於內部生活的無限遐想。這種在「遮蔽」與「揭露」之間取得的微妙平衡,賦予建築立面豐富的表情。
Arkana Architects透過材料的誠實性與克制的設計語彙,拒絕廉價的異國情調消費,轉而構築一處能與光影、時間共存的靜謐庇護所,印證當代建築在喧囂都市中尋求內心寧靜的堅定姿態。





建築圖










作品資訊
作品名稱:Villa Sipat & Sauh
作品位置:印尼 Bali, Indonesia
作品類型:玻璃磚、Villa、旅宿、印尼、印尼建築、印尼建築師
設計單位:Arkana Architects
總樓地板面積:250 平方米
竣工:2025年
攝影:Thomas Irsyad
主持建築師:Gathi Subekti
專案領導:Andika Surya Pramana
設計團隊:Marceanno Julio
技術團隊:Putu Yoga Dananjaya
營造廠:Gusti Gunayusa
相關廠商:Mulia Glass Block, Tostem, Toto