縫隙中的建築詩篇
在羅馬尼亞(Romanian)首都布加勒斯特(Bucharest)第一區的巴濟萊斯庫街(Bazilescu Street),當地建築工作室 Vinklu 巧妙地利用兩棟住宅建物間一處長期被忽視的畸零地,為本土連鎖品牌 Boiler Coffee 打造了一座名為「教堂」(The Chapel)的微型咖啡館。
狹窄的餐飲設施不僅是都市空間的再利用,更是一種商業銷售策略的展現,將戶外座位區延伸至街道,主動與城市紋理對話,以「都市針灸」式的介入手法,在後疫情時代的歐洲城市更新中,已成為活化鄰里商業、提升土地利用經濟效益的重要趨勢。


重繹東方精神的商業空間
Vinklu的創辦人斯特凡・帕瓦盧塔(Stefan Pavaluta)將此咖啡館視為促進人際連結與內心沉思的「神聖場域」,設計靈感源自對日本鄉間常見的路邊神社及茶屋建築語彙的觀察。
概念反映於一個簡潔的陡峭斜屋頂結構,前後兩端採用全玻璃立面,夜幕降臨時,內部光線透出,使整座建築彷彿一盞溫暖的燈籠,為街區注入安寧氣息,將東方哲思轉化為現代商業空間體驗的營銷策略,跳脫了單純的功能性與視覺追求,為品牌建立深厚的文化形象。



預鑄工法的精準實踐
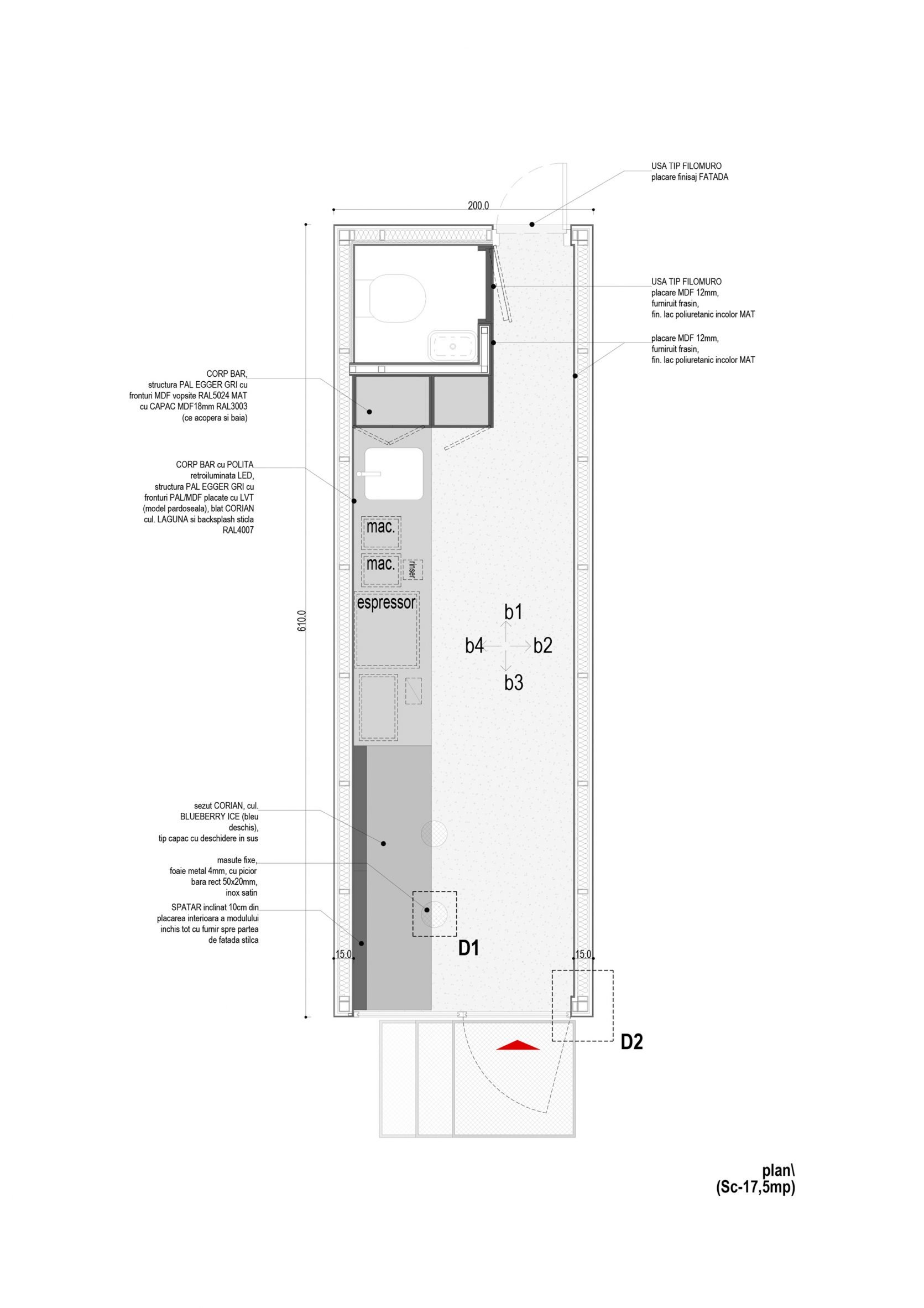
為降低對周遭住宅區的干擾並提升營造效率,此案主體採用鋼構,絕大部分構件在工廠完成預製後,再運至現場組裝。建築師讓結構本體被鋼製腳座略微抬高,與鄰近建築物保持纖細的間隙,展現對既有環境的尊重。外牆選用鋼浪板,賦予其現代工業質感與耐候性,乾式工法的應用,是當代建築在面對複雜都市環境與緊湊工期下的高效解決方案,也體現了結構工程與建築材料科技的進步。


模糊公私邊界的室內佈局
室內空間雖然侷促,卻透過材料與佈局創造出豐富層次。牆壁與陡斜的天花板鋪設溫潤的白蠟木飾面板(ash veneer panels),與外部金屬的冷冽形成強烈對比,營造出溫馨感受。空間後方設置一處浴室,沿著一側牆面配置了一體成型的多功能櫃檯,猶如大型家具的設計,整合了座位區、吧台服務區及儲藏機能,是室內設計與產品設計思維的巧妙結合。建築師刻意將室內完全對外開放,視為公共空間的延伸,吸引路人目光,成功地為商業銷售創造了絕佳的互動介面。



建築圖
