音樂之屋是座落在臺北市士林較老的住宅區巷弄之間的五樓透天厝,屋主是一對音樂家夫婦,XRANGE主持人張淑征將演奏廳「Music Box」置入透天厝三樓的位置,作為組織垂直建築空間的中心元素,與上下樓層相通,是小住宅塔中公共和私人的空間連接介面。




整體設計策略由樂器出發,建構通透的造樂空間,讓建築變成樂器。Music Box由400片胡桃木構成,貫穿建築中央。
藉由包圍著它的混凝土主體結構的回音,演奏廳的音樂可以流動到建築內不同的樓層,在住宅空間中迴盪;即使兩位主人在屋內不同的角落活動,仍可繼續激盪彼此的音樂能量。
連接臥室與衛浴部分的胡桃木板片是活動的,可配合使用完全打開或關閉,依屋主選擇,像調節音響一樣將音樂留在音箱裡面,不打擾其他居家空間。

立面設計

立面設計





建築外形採用五線譜的概念,將表面開窗轉化為樂譜上跳躍的音符,不受屋內主副空間的分配所限制,不規則的窗面在採光上也打造了室內空間的律動。一樓的會客空間則使用黃銅和軟木等常用於樂器的材質,是樂器作為建築策略的更進一步的呈現。



地下酒窖的設計由紅酒發想,打造了牆壁造形流動的曲線,可以容納1,500瓶藏酒。牆面使用紫色金屬漆,使獨一無二的空間曲線更有層次。客製的壓克力管專為酒瓶所設計,除了存放藏酒,透明管身也折射出特殊的照明效果。







張淑征以音樂作為設計概念
建築空間裡流洩的樂聲和光線,賦予這棟藏身於巷弄之間的小巧樓房獨特的節奏與質感。張淑征以屋主的生活精髓「音樂」作為核心的建築策略,用建築說出家屋所承載的記憶,創造個人化的空間,串連起屋主的專業、嗜好、生活與未來想像。
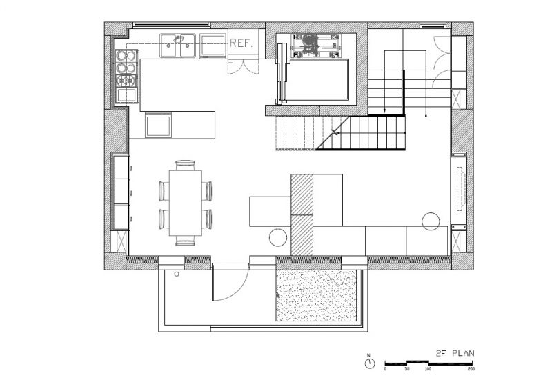
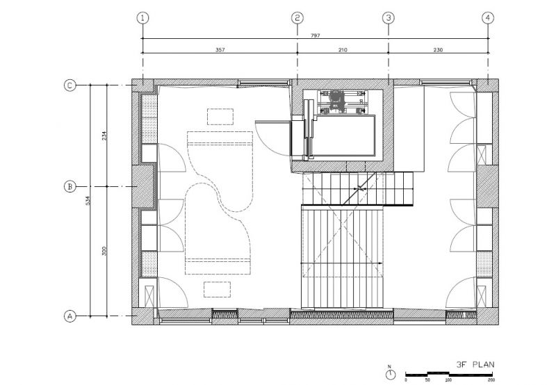
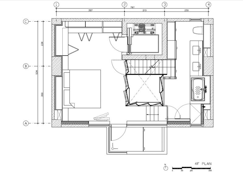
建築圖






張淑征簡介
張淑征生長於馬來西亞與加拿大,美國 Columbia 大學建築碩士及加州註冊建築師。曾任職於全球知名 Bernard Tschumi Architects 紐約事務所,加拿大溫哥華的 Patkau Architects,OMA (Office for Metropolitan Architecture) 的荷蘭及香港辦公處,至今旅居過9個城市,有豐富的國際建築經驗。活躍於台灣各大學專題演講及評論,曾任教於東海大學、台灣科技大學及淡江大學建築糸,並兼任由洪建全教育文化基金個城市會創立之非營利創作平台- MEME覓空間的藝術顧問。