里斯本羅西烏廣場的商業新局
葡萄牙首都里斯本(Lisboa)的心臟地帶,近期迎來嶄新的商業指標。由在地頂尖Contacto Atlântico建築師事務所(Contacto Atlântico)主導的Zara羅西烏門市(Zara Store at Rossio),總樓地板面積高達10110平方米,清楚顯示當代設計如何與歷史悠久的都市紋理展開良性對話。
面對具有數百年歷史的羅西烏廣場,建築團隊採取極度嚴謹且細膩的態度,將高品質的空間美學引入繁華商圈。此案大幅提升零售環境的標準,在技術精度與環境敏感度之間取得平衡,帶出令人激賞的都會景觀。



承載數百年歷史底蘊的黃金地段
羅西烏廣場(Praça de D. Pedro IV)自中世紀以來便一直是里斯本市民生活的核心樞紐,周遭環繞著壯麗的古典主義建築與波浪狀的葡式碎石路面。選址於此的跨國快時尚旗艦店,勢必面臨極高的法規審查與社會期待。營建團隊在規劃初期,花費大量時間考究建築的原始圖面與歷史文獻,試圖從往昔的光輝歲月中提煉出符合現代商業需求的設計元素。面對古老街廓的先天限制,設計師選擇以謙卑的姿態介入,確保新置入的商業機能不會破壞廣場原有的莊嚴氛圍,進而替歐洲古城區的都市更新歷程,提供極具參考價值的寶貴經驗。

歷史遺產與當代前衛的精采交鋒
執行設計初期,團隊深入解讀既有建築結構,並仔細評估周邊公共空間的互動關聯性。擁有優越地理位置的基地,指引整體規劃方向:在絕對尊重周遭古典建築遺產的前提下,大膽疊加充滿現代感的全新圖層。保存歷史與推動創新之間的拉扯,構成整件作品的核心命題,充分反映設計單位面對嚴格的都市設計審議與歷史街廓法規時的深厚底蘊。若未來面臨營業面積擴充需求而進行增建,此種兼顧新舊並蓄的策略,依然能確保整體外觀的連貫性與視覺協調。這般嚴謹態度,不難看出向歷屆普利茲克建築獎大師致敬的深遠意涵,讓百年古蹟得以在21世紀繼續閃耀光芒。



流暢動線引導的高效零售體驗
空間內部的介入手法充滿高度克制力與幾何精確性。各項形態決策皆受控於清晰邏輯、嚴謹比例與實用機能,最終孕育出具備高度可讀性的連貫場域。為滿足當代快時尚零售環境的龐大營運需求,內部組織特別著重於促進人流的連貫性,構築出極具直覺性的購物動線。顧客穿梭於各個服飾陳列區時,能感受到毫無阻礙的流動感。前述策略確保營業面積發揮最高效率,同時賦予服飾品牌鮮明的建築性格,讓人一目了然設計者的用心,徹底顛覆普羅大眾對於平價服飾賣場擁擠吵雜的負面印象,將商業空間的藝術價值推升至全新層次。

講究材質細節形塑的高雅氛圍
構築空間身份的過程中,物質材料扮演著舉足輕重的關鍵角色。設計師嚴格挑選各式建材與表面飾板,促成極具品味的氛圍,將粗糙紋理、平滑鏡面與空間比例妥善交織在一起。選用頂級石材與金屬構件絕非單純考量美觀,而是歸屬於更宏觀的空間策略,藉此強化環境的耐久度、人體舒適性以及視覺上的連貫感受。近乎苛求的細節處理,強烈突顯建築團隊在各種尺度下,皆致力提供最高品質設計成果的堅定承諾。指尖觸及的每一處櫃檯與牆面,都在無聲地傳遞著品牌追求卓越的最高標準。

講究材質細節形塑的高雅氛圍
構築空間身份的過程中,物質材料扮演著舉足輕重的關鍵角色。設計師嚴格挑選各式建材與表面飾板,促成極具品味的氛圍,將粗糙紋理、平滑鏡面與空間比例妥善交織在一起,彼此相得益彰。選用頂級石材與金屬構件絕非單純考量美觀,而是歸屬於更宏觀的空間策略,藉此強化環境的耐久度、人體舒適性和視覺上的連貫感受。近乎苛求的細節處理,宛如剪裁俐落且兼具高品質機能的質感服飾,強烈突顯建築團隊在各種尺度下,皆致力提供最高品質設計成果的堅定承諾。指尖觸及的每一處櫃檯與牆面,都在無聲地傳遞著品牌追求卓越的最高標準,替現代商業空間立下無法被輕易超越的標竿。

悉心編排的光環境與感官饗宴
照明系統被視為不可或缺的核心建築元件。設計團隊耗費大量心力編排自然陽光與人工光源,進而放大使用者的空間感知能力,並彰顯各種特殊材質的表面特徵,創造出舒適環境。白天時,陽光穿透寬闊的玻璃櫥窗,在溫潤的地坪上灑落斑駁光影;夜幕低垂後,精心調校的色溫與投射角度,則讓各式服飾單品閃閃發光。光線與實體量體之間的互動關係,大幅強化整體設計的清晰度,為所有踏入店內的顧客帶來優雅且精緻的使用者體驗。羅西烏廣場旁的該大型旗艦店,具體說明建築專業如何翻轉傳統零售環境,將原本單調的賣場轉化為經過精心雕琢的空間饗宴。

奠定葡萄牙建築界的卓越標竿
納入Contacto Atlântico的作品集後,此旗艦店進一步鞏固事務所作為葡萄牙設計界指標性標竿的領導地位,外界廣泛認可該團隊提供創新且歷久彌新解決方案的卓越能力。團隊在極度敏感的歷史脈絡中執行高水準空間規劃,持續反映出平衡技術專業與深入理解在地文化的堅強實力。
座落於繁華市中心的商業空間,憑藉著極度細膩的介入手段與嚴密的細節刻劃,孕育出機能高效且風格出眾的場域,為當代營建史留下精彩的一頁。往後造訪里斯本的旅人,勢必都會被該散發著迷人光彩的實體建築深深吸引。








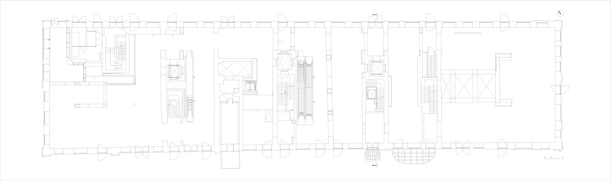
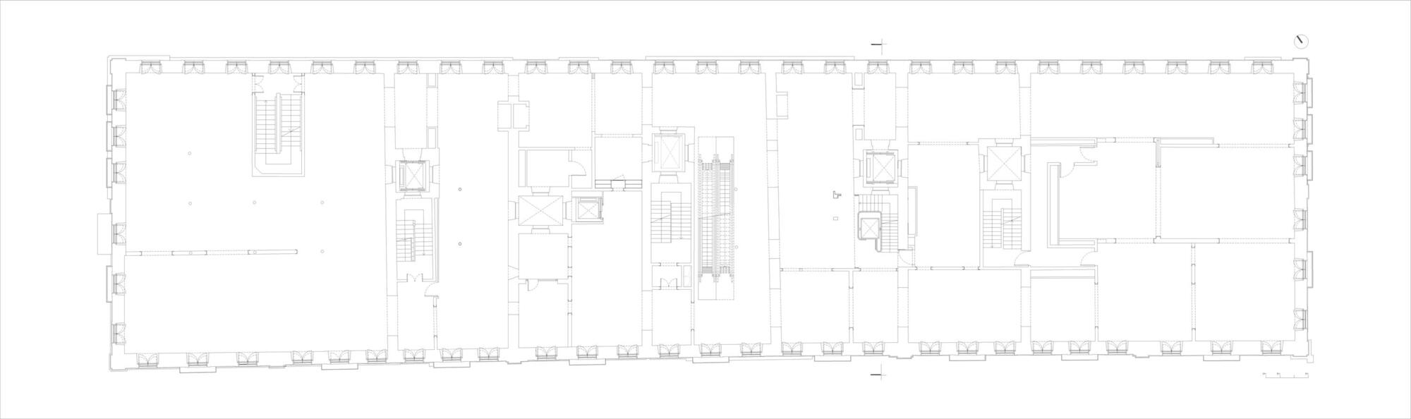
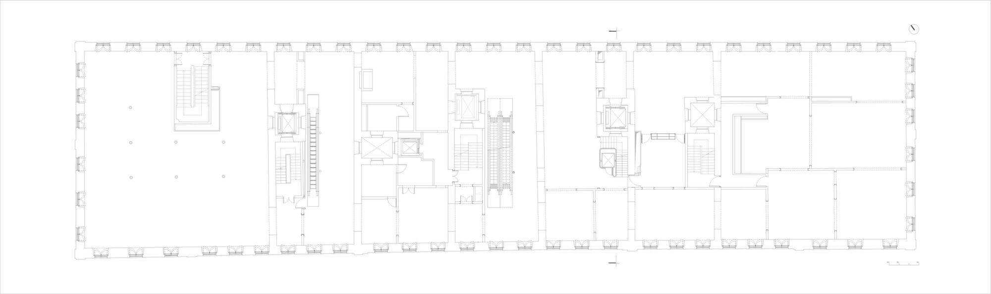
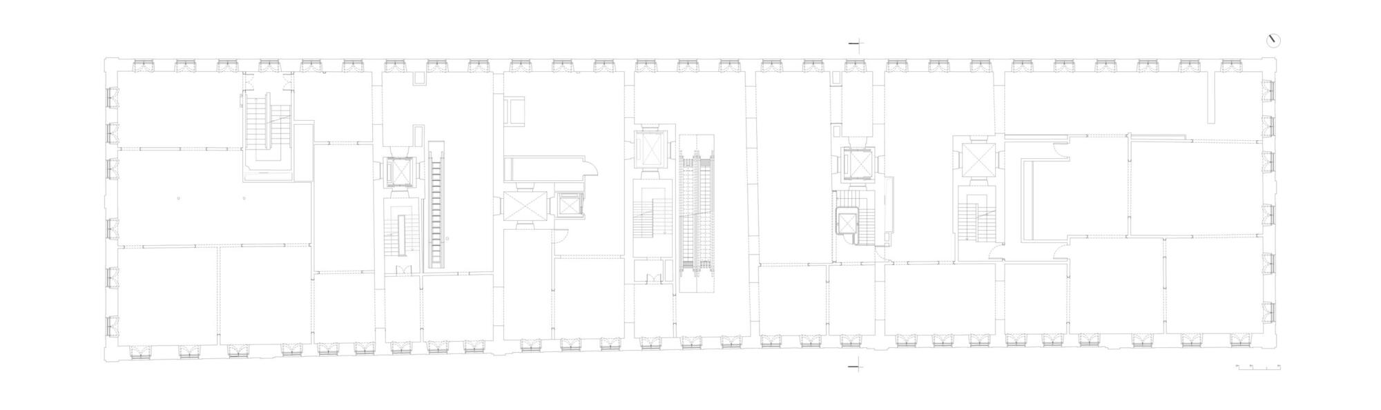
建築圖







作品資訊
作品名稱:Zara Store at Rossio
作品位置:葡萄牙 Lisboa, Portugal
作品類型:商業建築、室內設計、葡萄牙、葡萄牙建築、葡萄牙建築師
設計單位:Contacto Atlântico
總樓地板面積:10110 平方米
竣工:2023年
攝影:Fernando Guerra | FG+SG
主持建築師:André Caiado
專案管理:By Vision