背景
同濟大學建築系畢設展首次走出校園,選在藝倉美術館作為同期Zaha Hadid建築展「實踐與探索——扎哈·哈迪德建築事務所特展」的外圍展。展覽以「浮想城市」為主題,選取9個課題直接面向公眾,嘗試與真實的城市環境建立更緊密的聯繫。
黃浦江船隻穿梭不息,江岸市民漫步休閒,騎行步道綠樹成蔭,成為城市最獨特的風景之一。藝倉美術館位於黃浦江畔,基於原有工業遺產的吊掛結構、錯動量體構成其獨特的氣質。
B廳外觀©山間影像(吳清山工作室)
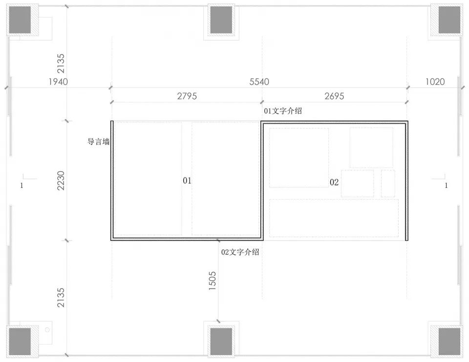
兩個展廳為美術館配套用房,透過落地玻璃均可感受到周邊優越的景觀資源。A廳為6.5*8.4*4.4m的混凝土結構,地面層上半段為實牆,下半段為大玻璃;B廳是個5*12*2.5m全鋼結構吊掛的玻璃盒子。
A廳主入口©山間影像(吳清山工作室)
A廳次入口©山間影像(吳清山工作室)
議題
- 展陳如何與水岸環境互動、與工業遺產相融?
- 如何在專業與大眾之間取得平衡,提升觀眾的體驗和互動?
- 參展課題模型大小不一、材質各異,如何將其整合起來又保持各自的差異性?
- 館方要求展後恢復原有狀態,如何對建築較小地干擾?
展廳原狀©道辰建築|同濟大學建築系 反轉
相對於常規的展陳方式,設計進行了兩次「反轉」處理——展品居中,公眾圍繞展品觀看,形成平面內外反轉;將展品吊掛,底部懸空釋放空間,形成上下反轉。由此產生了「浮盒」的概念,既是大膽懸浮的展覽方式,與展覽主題一致,也是對真實與虛幻的反思。
設計概念©道辰建築|同濟大學建築系
結構
現代建築經典如薩伏伊別墅採用地面層架空的方式形成輕盈感,「浮盒」是對它們的反轉處理,也是對美術館結構的回應。
吊掛的展陳方式並不少見,如何營造更為獨特的體驗?兩個浮盒與地面脫開,「量體」加強了重量感,並與外觀的透明相對比。這種對待「輕與重」的結構方式,也以新的語言與工業遺產形成戲劇性反差。
輕盈的玻璃與厚重的工業結構形成對比©山間影像(吳清山工作室)
密度
9個課題被濃縮在兩個浮盒中,每個課題均為1個「包廂」——模型居中成為視覺主體,3面被展牆圍合,頂部的發光膜更聚焦於展品,營造出獨特的沉浸式觀展空間。包廂尺寸根據模型量身客製化,空間更為集約。兩個展廳的展牆長度分別為23.6m、34m,幾乎達到了建築外牆的周長。在保持空間品質的前提下,密集空間獲得了更多的展示面。




B廳室內,懸浮的盒子中配置展品©山間影像(吳清山工作室)
B廳盒子細部©山間影像(吳清山工作室)
透明
騎行步道一側標高略高,視線穿過浮盒底部可達江面;濱江一側標高較低,視線低於浮盒的底部,能清晰地感受到浮盒的通透性,底部懸空讓空間變得空靈。逐步靠近展廳,浮盒端部實牆如照壁一般對人的壓迫感越來越強,將觀眾引向兩側的包廂。公眾觀展時能同時感知城市風景。非開放時段,市民仍能透過大玻璃看到內部展覽。


B廳夜間景觀外觀,視線通透©山間影像(吳清山工作室)
夾於濱江休閒設施中的快閃展廳吸引著好奇的市民,參展學生組成的志工向市民講解釋疑,與城市融合的景象讓其更具煙火氣息,讓展覽獲得了更廣泛的意義。

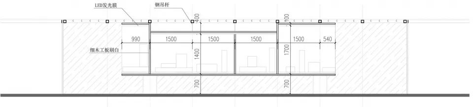
建築圖




B廳剖面圖©道辰建築|同濟大學建築系
作品資訊
展場設計:道辰建築|同濟大學建築系
作品類型:展覽空間、畢業設計展
展覽主辦:同濟大學建築與城市規劃學院、藝倉美術館
策展人:李翔寧
主導設計:陳強
設計團隊:余中奇、覃緣、林逸愷
結構顧問:張准
施工:上海承流展覽服務有限公司
攝影:山間影像(吳清山工作室)
