時光刻痕中的建築重生
漫步在首爾龍山區(Yongsan-gu)美軍基地前方的幽靜巷弄,轉進華岩洞(Hwam-dong)時,一棟引人注目的紅磚建築靜靜佇立。這座由韓國建築師事務所Studio ELTM操刀改建的百年建築,見證了韓國從日據時期到現代的歷史變遷。紅磚外牆訴說著殖民統治的滄桑,日式宅邸(Jalsan-gaok)的建築風格,反映了當時日本人在朝鮮半島留下的建築遺產。歲月流轉,老屋承載著無數記憶,設計團隊看見了賦予這座建築嶄新生命的可能性。在保存歷史建築價值的前提下,他們將這座見證時代更迭的老宅,轉化為充滿魅力的現代餐飲空間。


空間重塑的建築美學
當推開大門,迎面而來的是令人驚豔的洞穴般石材質感,營造出與外部寧靜巷弄截然不同的過渡空間氛圍。設計團隊保留了原有的堆疊式山牆屋頂,讓自然光線灑落室內,創造出獨特的光影效果。少數保存完好的木結構,則成為空間中最珍貴的歷史見證。



這座在2024年1月底開始營運的언뎁트咖啡館(undebt cafe),成功展現了歷史建築活化再利用的典範。建築師們在重新規劃空間時,細心保留了建築的歷史底蘊,同時注入現代設計語彙,讓百年老屋展現嶄新的生命力,成為龍山區最受矚目的文創景點之一。這項改建計畫不僅為老屋找到新的定位,更為城市注入新的活力,展現了建築改造對都市重生的重要貢獻。


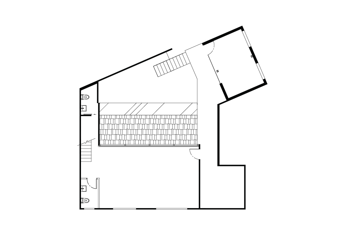
空間結構的完美轉化
建築面積251平方公尺的改建工程,設計團隊謹慎保留既有屋頂形式,新建屋頂也延續原有坡度,展現對歷史的尊重。多重山形屋頂層疊出獨特光影,木構窗框維持原有功能,搭配H型鋼樑,創造出嶄新的結構美感。設計團隊更保留了中庭原址,賦予全新樣貌,形塑出建築探索與欣賞的核心空間。



石材營造的洞穴意象
踏入空間的第一步,映入眼簾的是令人震撼的洞穴質感石材,形成與寧靜巷弄截然不同的過渡空間。石材結構不僅是視覺焦點,更象徵著空間特質,展現材質本身的異質性與尺度感,充分發揮石材所能產生的張力,創造獨特的空間體驗。

自然光影的時空對話
玻璃天窗讓自然光線恣意灑落,木造結構保留了窗框功能,新舊材質相互輝映。設計團隊運用自然元素,打造出最貼近自然的空間氛圍。無論是陽光普照的白晝,抑或寂靜降臨的夜晚,都能捕捉並直面流逝的時光,譜寫新的空間故事。

空間層次的細膩安排
為維持既有山形牆的歷史風貌,新建屋頂完全依循原有坡度。設計團隊採用間接照明,營造柔和溫暖的氛圍。空間中的不同高度被視為結構的一部分,消除視覺落差,創造出流暢的空間層次感,讓使用者能感受到細膩的空間變化。

建材工藝的精湛展現
設計團隊精心挑選石材與木材等自然建材,展現精湛的工藝技術。H型鋼樑與木結構的結合,不僅確保結構安全,更創造出新穎的建築語彙。這些建材的運用,在保留歷史風貌的同時,也賦予空間當代的生命力,展現設計團隊對建築工藝的深厚造詣。

建築圖


作品資訊
作品名稱:언뎁트 Undept Coffee and Bar
作品位置:南韓龍山區(Yongsan-gu, South Korea)華岩洞 182-5 號
作品類型:韓國、韓國建築、舊建築改造、舊建築再利用咖啡館、餐飲設施、室內設計、木構
業主:undept
設計單位:Studio ELTM
總樓地板面積:251平方米
竣工:2024年
攝影:Kim Seong Mun、Lee Sang Heon
設計團隊:Kim Seong Mun、Shin Dong Hun、Koo Hyeon Mo