基地位於斯海爾德河(Schelde)河畔,前身為比利時Boelwerf造船廠,現在建有四棟公寓,為Cordeel公司所有,Cordeel總部大樓是他們從Eurolaan向De Zaat工業區遷址計畫的一部分,新總部大樓可俯瞰整片區域,另一側則可遠眺特姆塞(Temse)市中心,為Cordeel的商業價值增添了新的一筆。

建築外觀©Limeparts

龐大的鋼構桁架 ©Binst Architects


施工過程©Binst Architects
一個兩層高的鋼桁架結構橫跨在原本的乾船塢上,下方鋪設枕木,桁架結構安裝到兩座相隔72公尺的混凝土建築核之上,每個建築核中包含兩座電梯和兩道樓梯,以及通往辦公室的入口。

Cordeel總部大樓,桁架放在兩個建築核上方 ©Tim Fisher

Cordeel總部大樓跨在船塢上 ©Bart Gosselin

Cordeel總部大樓底面反射河面景觀 ©up: Limeparts, below:Bart Gosselin


地面層的公共空間 ©Bart Gosselin
辦公空間共有兩層,每層面積2300平公尺,設有從地面到天花挑高的玻璃帷幕牆,被陽台環繞。

辦公室外是挑高帷幕牆和陽台©up: Limeparts, below:Bart Gosselin


結構採用3.6公尺的網格配置,使辦公空間的配置更為靈活,最終形成了面臨大片景觀的辦公室、會議室、專案經理辦公室和管理室的混合使用空間。多機能房間位於建築南端,南側與寬敞的陽台相連,為人們提供了不受遮擋的美好景觀。

連接兩層辦公空間的樓梯 ©Bart Gosselin

接待區©Bart Gosselin

休閒洽談區,空間開放©Bart Gosselin

共同辦公室©Bart Gosselin

單人和雙人辦公室©Bart Gosselin


辦公室中可以享受全景景觀 ©Bart Gosselin

會議室 ©Bart Gosselin


空間通透,可以欣賞周邊景色 ©Bart Gosselin

辦公室細部 ©Bart Gosselin


夜間景觀©Tim Fisher

一樓平面圖©Binst Architects

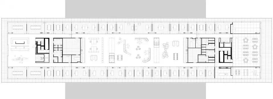
辦公空間一樓平面圖©Binst Architects

立面圖©Binst Architects

剖面圖©Binst Architects

細部圖©Binst Architects
作品資訊
作品名稱: Headquarter Cordeel (1421 COKA)
作品位置:比利時 Frank van Dyckelaan 15, 9140 Temse, 比利時
業主: Cordeel zetel Temse nv
建築師:BINST Architects nv
專案建築師: Nick Verbeeck
顧問:Evi van Schooneveld, Andreas Porreye
室內設計:Wim Heyninck, Kenn van Overveld
綠建築顧問:Ney & Partners – BXL nv
結構顧問: T.E.E. bv nv – Arch & Teco Engineering bv nv (Study), Cordeel zetel Temse nv (Execution)
Acoustic advice: Daidalos Peutz bouwfysisch ingenieursbureau bvba
主營造廠: Cordeel zetel Temse nv
分包營造廠:
Imtech Belgium Holding nv (Technical installations)
Kone Belgium nv (Elevators)
Drooghmans nv (Limeparts-Drooghmans, Facade cladding)
Start date design: 01.09.2014
Start of execution: 01.03.2017
Provisional acceptance: 01.04.2019
完成:2020年
基地面積:245,000 平方公尺
總樓地板面積:5,964 平方公尺
辦公室面積:6,190 平方公尺
景觀面積:15,000 平方公尺
