觀光巨獸背後的精緻文明佈局
2023 年世界旅遊評論網(TripAdvisor)將峇里島評為全球最佳旅遊目的地,長谷(Canggu)更迎來每年百萬觀光熱潮。這片面積 908 平方公尺土地,由 Atelier Generations Vasudeva Design 擔任操盤手,屏棄浮誇試圖在數位遊民聚集之處建立精神標竿。這份空間策略並非隨波逐流,而是深耕在地認同。
建築體內部配置餐飲、時尚與傳統工藝,反映島嶼在急速都市化進程中的自我覺醒。當代設計線條不僅回應全球旅客之需求,更在嘈雜的商圈中站穩腳跟。這場空間革命引發市場高度關注,成為觀察印尼觀光產業轉型的重要指標。




貝拉瓦海灘旁的海濱生活詩學
該案座標位於距離貝拉瓦(Berawa)衝浪海灘僅 3 分鐘步程。當地以健康生活與海洋文化聞名。設計師選用潔淨線條配合在地石材、木料與大量綠化,建立與自然共生之環境。
建築師試圖在室外循環區營造寬鬆氛圍。讓人聯想到當代海濱生活的慵懶,並且回應了周邊精品店與海灘俱樂部林立之現狀,實踐人際互動之通透性。
透過室內外邊界消融,讓海風與光影在結構間自由穿梭,達成動靜皆宜之平衡。這般因地制宜的手段,在充滿水泥叢林的開發熱點中,猶如注入一股沁涼的山泉,讓停留的人們重新感知土地的呼吸與節奏。



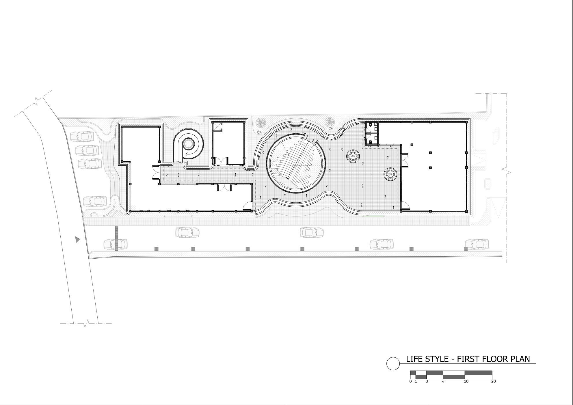
幾何結構編織之直覺路徑美學
建築形式與機能密不可分,這處空間著重直覺路徑(Intuitive pathways)引導。瓦蘇德瓦團隊運用精煉的結構幾何(Structural geometry),將不同的商業業態串聯。室內外空間轉換無縫,具備高度靈活性。
正如法國設計大師菲利浦.史塔克(Philippe Starck)曾言,空間應服務於情感而非僅是視覺。這裡的每個角落都因應市場變遷而預留彈性。無論是展示傳統工藝抑或現代時裝,建築語彙始終保持中立且具備穿透力,讓商業活動與島嶼歷史在流動空間碰撞出火花。這種層次分明的空間序列,讓旅人在穿梭之際,能感受到設計者對感官體驗之細膩照拂。






伍拉賴機場半小時圈之未來地標
距離伍拉賴國際機場(Ngurah Rai International Airport)僅 30 分鐘車程。這座綜合體將精緻牙科美容、香氛與精緻餐飲結合。對於長谷這片充滿動態能量之土地而言,該案已超越傳統商業範疇。它提供一種具備情感介入之建築體驗。
當國際元素遇見在地匠人精神,這座地標已成為觀察峇里島生活新趨勢之窗口。透過專業設計與市場洞察之交集,這份空間實驗在未來長谷區的生活圖景中,扮演了不可或缺之核心角色,為追求質感生活之民眾開拓更多可能。正如一個生氣勃勃的細胞,持續在區域網路中分裂與擴張。







建築圖





