首爾校園的味蕾新生:陰暗食堂變身山景殿堂
座落韓國首爾市蘆原區的「未來產業科學高等學校」(미래산업과학고등학교),食堂增建工程於2024年告竣,為校園注入一股新氣象。此一總樓地板面積達664平方公尺的建築,由韓國建築師事務所 B GROUND ARCHITECTS 操刀,不只是是單純擴張空間,更象徵著學生關鍵設施的品質躍升。
過往學校設施常重教學輕後勤,食堂往往屈居一隅。然而,此增建案跳脫窠臼,將學生食堂從原先條件欠佳的地下區域解放出來,重新思考建築與環境的對話,著重景觀引入、自然採光以及與戶外場域的流暢串聯。此舉理所當然地提升了學生的用餐體驗,同時標誌著韓國教育機構對於整體校園生活品質重視程度的轉變。



校園食堂進化論:從果腹之處到社群中心
傳統觀念中,學校食堂僅被視為滿足師生餐飲需求的機能場所,空間設計常流於形式,缺乏對使用者身心感受的細膩考量。然而,隨著教育理念的演進,現代K-12教育階段的食堂角色已悄然轉變,逐漸成為凝聚校園生活、促進師生互動、強化社群連結的「中心樞紐」。
未來產業科學高等學校的食堂增建,正是此潮流的具體實踐。建築師認為,優質的餐飲設施及用餐環境對於學生的學習成效與社交發展具有潛移默化的影響。因此,設計初始便跳脫單純的機能滿足,轉而追求空間品質的全面提升,企圖營造一個能讓學生在課業壓力之外,獲得身心鬆弛、自在交流的場所,進而豐富校園記憶。


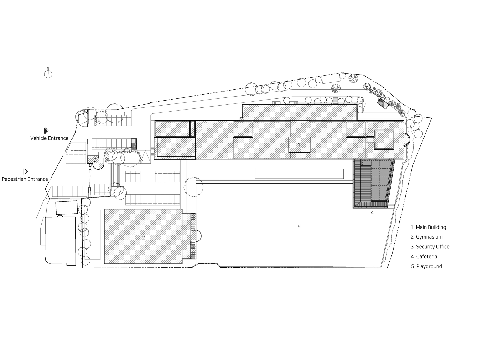
基地密碼的轉譯:佛巖山下的活力空間
該校區緊鄰以裸露花崗岩峭壁聞名的佛巖山,此山雖不高聳卻富含景觀價值。可惜的是,原有校舍配置選擇「背對山巒」,未能善用此得天獨厚的自然資源,徒留遺憾。舊食堂更位於採光不良的地下層,與擁有約兩米高差的操場之間也缺乏良好連接。
設計團隊敏銳洞察到此缺憾,將新食堂的設計方向毅然轉向山景與操場,力求彌補過去的割裂感。這種對基地環境特質的尊重與積極回應,成為新建建築最鮮明的設計語彙,讓佛巖山的壯麗與操場的活力,得以滲透入學生的日常餐飲時光,構築出「坐擁山林」的用餐氛圍,令人耳目一新。



設計角力的價值思辨:體驗先決的空間革命
校方最初規劃將餐廳置於既有低矮天花板(僅3.3公尺)的建物內,廚房則規劃於新增建的翼樓,此舉看似合乎設施效率的邏輯。然而,B GROUND ARCHITECTS 提出了截然不同的反建議:將核心的用餐區(食堂)佈置於能直面操場與佛巖山景的新建區域,廚房等後勤設施則安排於原有空間或對景觀要求較低的增建區塊。
建築師堅信,營造一處能讓學生及教職員自然接觸戶外、欣賞山巒景致的開放空間,其價值遠高於單純的設施配置效率。此種將使用者體驗置於機械邏輯之上的堅持,最終成功說服校方,贏得競圖,展現了建築師在提升專案願景上的積極能動性,堪稱設計價值戰勝純粹功利主義的經典案例。


B GROUND ARCHITECTS:空間敘事的社會關懷者
擔綱此重任的 B GROUND ARCHITECTS (비그라운드아키텍츠 건축사사무소、Bare Ground Architects),由建築師尹敬淑 (Yoon Kyungsook) 與車宙俠 (Cha Juhyup) 主持,自2015年起活躍於建築、室內及展覽策劃等多重領域。該事務所的核心理念,是在特定條件下尋求創造永續價值的最佳途徑,此價值觀不僅侷限於經濟層面,更擴及符合整體社會福祉的宏觀方向。
他們深信建築工作能積極改變周遭環境,並珍視人與空間互動中可能萌發的種種美好。此理念與未來產業科學高等學校食堂一案高度契合,體現在他們優先考量景觀與學生體驗,而非遷就廚房後勤的便利性。其過往如Yerim設計高等學校圖書館等校園改造經驗,亦展現出打破僵化界線、引入自然光、促進交流互動的設計手法,為此次食堂設計奠定深厚基礎。


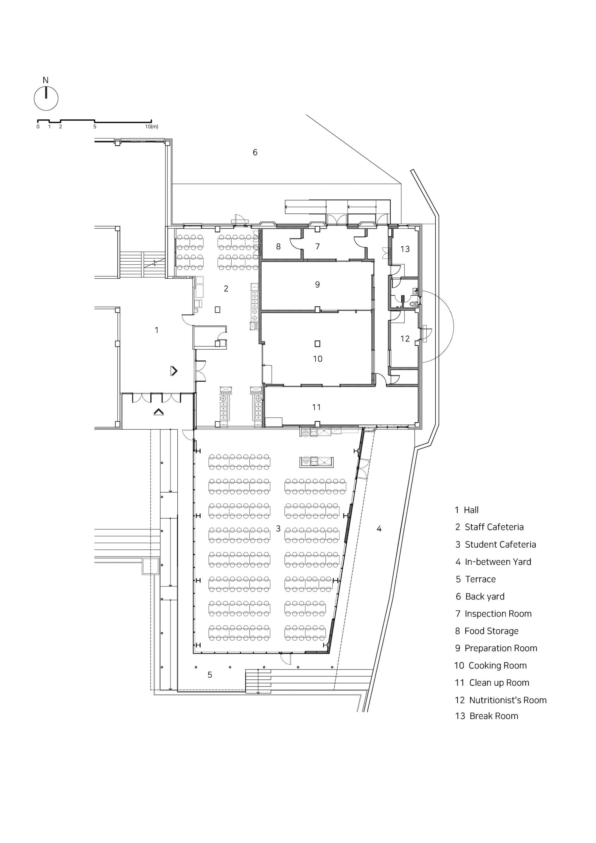
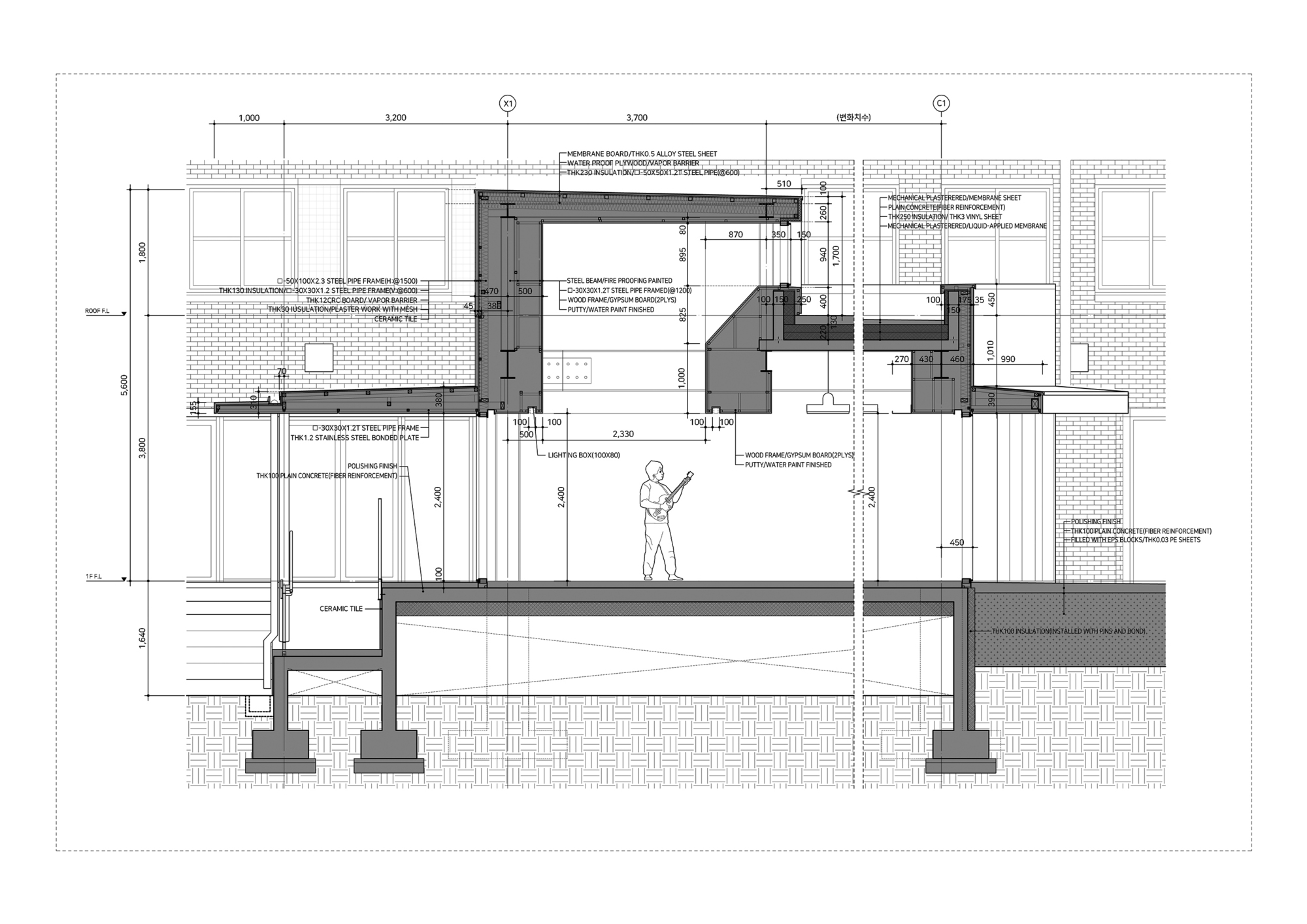
光明方程式:高窗引領的空間三重奏
面對現有建物3.3公尺的低矮天花板,若直接與增建部分相連,極易造成空間的壓迫與沉悶感。B GROUND ARCHITECTS巧妙地引入了高側窗作為解決方案。這道順應操場軸線設置的高窗,不僅圓滿改變了天花板的高度變化,更為室內引入了豐沛的自然光線,營造出富有層次與動態的「三維空間感」。
當師生從走廊步入餐廳,首先映入眼簾的便是那道傾瀉而下的柔和光帶,視覺上將室內與戶外操場緊密相連。高側窗的設計,同時也補足了建築立面的比例,提升了整體的形態完整性,使空間在機能與美學層面均獲得顯著升級。


屋簷下的詩意:串聯內外的生活劇場
韓語裡「넉넉한 처마」(寬敞的屋簷)是本案另一引人注目的設計元素。這些深遠的屋簷不僅是造型上的點綴,更是調節微氣候、界定空間層次的關鍵。在社交層面,它們為戶外休憩區及活動路徑提供了宜人的遮蔽,鼓勵學生走出室內,享受半戶外的交流時光。
在氣候層面,尤其對於朝南的區域,寬屋簷有效阻擋了夏季酷熱的陽光直射,同時在雨季提供庇護,大幅提升了戶外過渡空間的實用性與舒適度。此外,建築師精心佈置了樓梯、露台與庭院,巧妙化解了食堂與操場之間約兩公尺的高差,形成一條饒富趣味的「循環路徑」,並在增建部分與原有擋土牆之間,圍塑出一處名為「사잇마당」(其間庭院)的靜謐角落,成為師生沉思小憩的絕佳去處。



材質與理念共融:科技校園的人文關懷
在材料的選擇上,設計團隊著重通透性與耐久性的平衡,大量採用透明玻璃窗,確保室內外景致的自然流動,用餐區幾乎三面環繞於玻璃牆之內。提及的材料供應商DSP公司,專精於彩色不銹鋼及PVD塗層等高端建築金屬飾面,暗示了在壁板、百葉或天花等處可能運用了兼具美觀與耐候性的金屬元件,為高頻率使用的校園食堂增添一份精緻質感。
結構系統採用了普遍常見的鋼構,利於創造開闊無柱的內部空間。更深層次的是,這樣的元素與未來產業科學高等學校強調科學、技術與「創客創作科 (메이커창작과)」的創新教育理念產生共鳴。
一個明亮、開放、與自然交融的食堂,無疑為這所科技見長、鼓勵動手實踐的學府,提供了一個能夠激發靈感、促進交流、彰顯人文關懷的物理環境,可說是「建築針灸」的成功範例,對整體校園氛圍產生了積極的催化作用。













建築圖






作品資訊
作品名稱:미래산업과학고등학교|Mirae High School of Science & Technology Cafeteria Extension
作品位置:南韓 54 Deongneung-ro 82-gil, Nowon-gu, Seoul, South Korea
作品類型:校園建築、餐廳、餐飲設施、室內設計、韓國建築師、韓國建築
設計單位:Bare Ground Architects
總樓地板面積:664 平方米
竣工:2024年
攝影:Kim Yongsu
專案團隊:Yoon Kyungsook, Cha Juhyup, Kim Daeun
營造廠:Hyeam Co., Ltd
材料供應商:DSP