隨著城市的發展,嚮往美好生活的人們有著更多選擇,居住空間的舒適、優雅別緻的景觀……然而,一直受到公眾矚目的兒童遊戲基地,規劃設計的水平還處於起步階段,這或將是未來市場競爭中決定性的因素。
遊戲是促進兒童認知世界的主要手段,它可以增強心理發展、運動技能等,還是他們認識社會最初的途徑,亦是永遠留在內心忠實的快樂。
當下值得思考的是,如何走出兒童遊戲基地設計模式單一、存在安全隱患的困局?設計以人為本,應重視各年齡層的需求,滿足兒童活動時個性的需要,以及對於絢爛童年的嚮往。
幼兒園 Kindergarten 設計與期待
作品名稱:吉野托兒所及幼兒園
作品位置:日本青森
設計單位:Takaharu Tezuka 手塚貴晴





全區配置圖 Master Plan

平面圖 Plan Plan

屋頂傾角剖面圖 Section Section of roof slopes

整個建築是雙層橢圓結構,優美的曲線與海岸相呼應,地面層的教室採用了開放式設計,屋頂最南端接觸地面齊平、斜度較小,即使乘坐輪椅的孩子也可以籍此登上屋頂。孩子們在學習平衡身體、奔跑的過程中經常摔倒,為了防止受到傷害,設計中嚴謹的將整個屋頂由軟橡膠覆蓋。
屋頂向南傾斜能夠讓孩子們來回奔跑,小孩子很喜歡在同一個地方繞著圈跑這件事,是手塚貴晴在養育孩子時注意到的,只要是有養育小孩經驗的人都一定知道這件事。雖然手塚貴晴以此為概念,不過光是有這樣的操場小孩子是不會在上面奔跑的。
因此,手塚貴晴在中心有植栽樹木、同時有自然風吹拂過來、鄰接地平傾斜的屋頂正好是向陽傾斜朝南的溫暖斜面等等,可以同時一邊奔跑一邊享受這麼多事物。這些元素付與這間幼兒園有著像山坡斜面一樣的屋頂。孩子們像是擁有坐落在山上般的視野來回奔跑著。斜坡的傾斜度控制在1/12。無論對應在生活上街道尺度來說都是非常緩和的坡道,同時兼顧了安全性,就算孩子們跌倒也沒有關係。
木構造是以陸奧的鐵道林為形象,用木構造將孩子們包圍。木造建築的溫暖及柔和感是什麼都無法取代的資產。孩子們的成長應會和樹木一起。樹木隨著年齡增長會變得更加美麗,即使經過三十年後的未來,也能帶著微笑迎接畢業生們。
戶外 Outdoors 自然與生命
作品名稱:豆莢遊樂場 Pod PLAYGROUND
作品位置:澳洲坎培拉
設計單位:Taylor Cullity Lethlean











固定在空中的橡果木屋,座落森林間的山龍眼果。該作品受到「世界100種珍稀瀕危植栽」的啟發,在設計中採取澳洲本土的植栽形態,孩子們可以在沙土裡挖掘、種植種子模型。質樸的大地色系基地設有舷窗、昆蟲、風鈴,萬花筒,滑梯,繩索隧道,採取氣味、視覺、形式等體驗滿足全年齡段的孩子接觸自然之美麗,感受生命之奧秘。
住宅區 Uptown 趨勢與意境
作品名稱:洛嘉兒童‧中南藍雲朵樂園
作品位置:中國西安
設計單位:奧雅設計







第一件像樂高一樣可以隨意組合的兒童遊樂場,是設計團隊在房地產建設的快速發展,對社區兒童基地品質需求下的一種探索,滿足其適應不同風格建築的同時,亦能夠快速複製落實。設計師選擇藍色的雲朵、夢幻的童年作為主題,採用高低不同的踏板,宛若漫步雲端,整體設施極致精簡,最大程度給孩子們隨意跑、跳和追逐的空間。
商場Emporium 探索與追求
作品名稱:inKids with Line friends
作品位置:中國北京
設計單位:裕盛銀泰






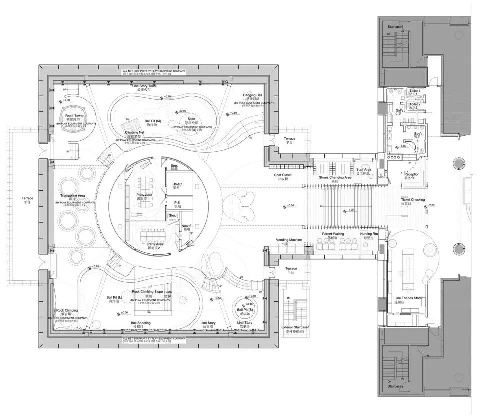
空間構成 the space formation

下層平面規劃 lower level plan

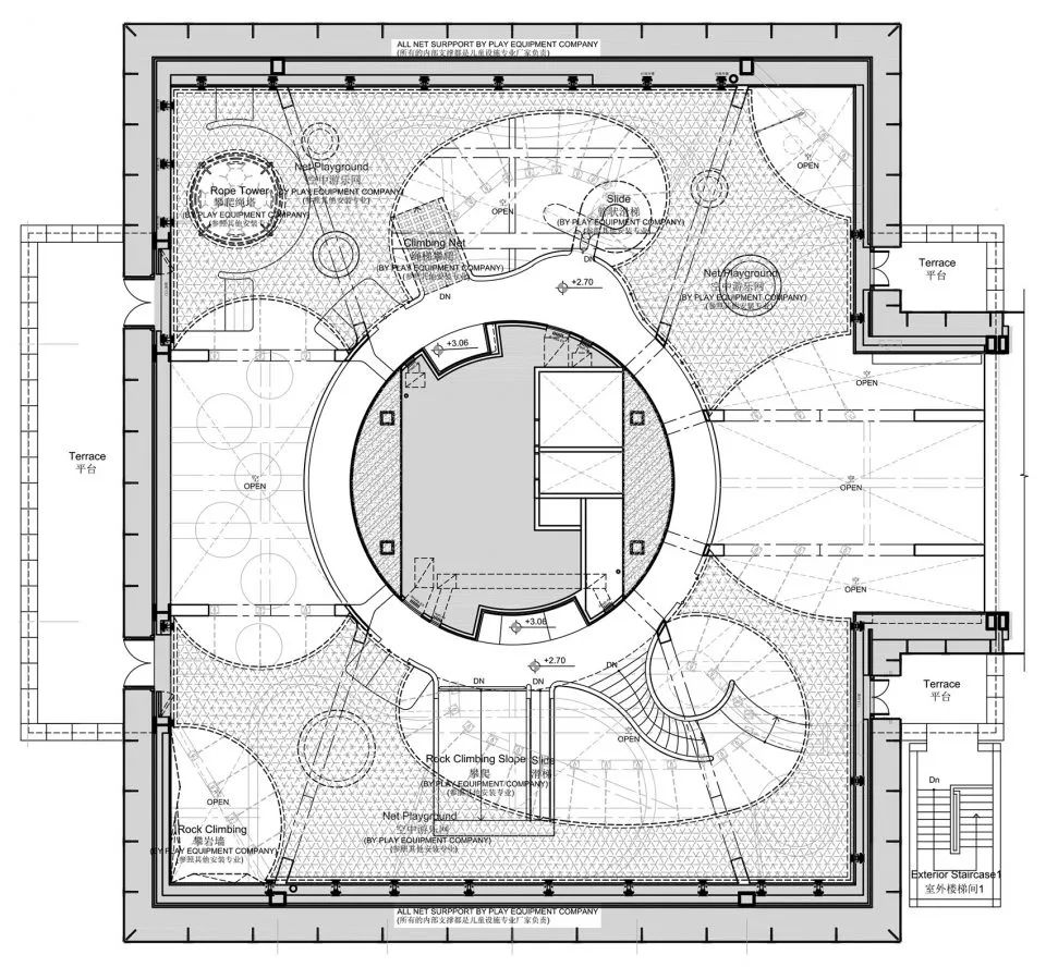
上層平面規劃 upper level plan

剖面 section


LINE 和銀泰旗下的in 品牌一起打造的卡通主題兒童樂園「in KIDS WITH LINE FRIENDS」位於北京CBD銀泰中心,選取中央樓梯連接上下層的結構。設計靈感來源於球體彈跳的弧線,整個空間裡將拱形和曲線發揮到極致的同時,還對色彩和材質有著極高的追求,出於對空間的乾淨、整潔的考慮大面積用白色調,並在溫暖的原木地板上擺置更親近自然的木造或純棉的玩偶。
兒童醫院 Hospital 科研與療癒
作品名稱:皇冠天空花園
設計單位:Mikyoung Kim









巴比倫為其王后而建的空中花園隔著上千年僅留故事流傳,這座建立在科學研究基礎上的花園位於芝加哥的市中心兒童醫院的二十三層。以自然為主題呈現給孩子一個宛若真實的自然空間:光、流水與聲音,安全樹脂的牆壁與再生木造的雕塑玩具。經分析研究,在這裡,獲取光線與思考空間的孩子縮短了其治療恢復的時間。
遺蹟 Relic 過去與未來
作品名稱:be-MINE遊樂場
作品位置:比利時法蘭德斯
設計單位:OMGEVING









這座碎石山是比利時第二次工業革命的遺址,如今,被賦予新的意義「連接過去與未來」作為概念主線貫穿了整件作品設計,以木材與混凝土為主調,誕生出極富可玩性的遊樂場:平衡木、攀爬網、吊床、迷宮,帶給孩子們空前的驚喜。山頂上的圓形廣場為煤礦遺址,一眼望去似乎蘊藏著宇宙洪荒,在此休息之餘還可俯瞰眼前風景。