來自倫敦的英國建築師事務所 Studio Dera 將華咸森林學院(Waltham Forest College)一處荒廢泳池,成功改造成名為「The Pool」的多功能教學中心。面對學生人數的快速增長與設施使用率低落的雙重挑戰,此改造案不僅為校園注入新生命,更為都市閒置空間的再利用提出卓越見解。
設計團隊保留了泳池原有的宏大量體與輪廓,透過精妙的空間規劃,將此處升級為兼具教學與課外活動需求的現代化場域,展現了建築在回應社會變遷中的積極角色。

遺產的繼承與空間的再詮釋
在設計的初始階段,建築團隊便確立了尊重原始結構的指導原則。Studio Dera 共同創辦人麥克斯・德沃尼(Max Dewdney)強調,新佈局深受泳池既有的幾何形狀與節奏感所啟發,特別是天花板的結構被刻意保留並予以暴露,成為串連過去與現在的視覺線索。這種作法不僅是對歷史的致敬,更是一種高明的設計策略,讓空間的使用者能夠在新的活動中,依然能感受到此地獨有的歷史紋理,彷彿一場跨越時空的無聲對話。




垂直向度的探索與利用
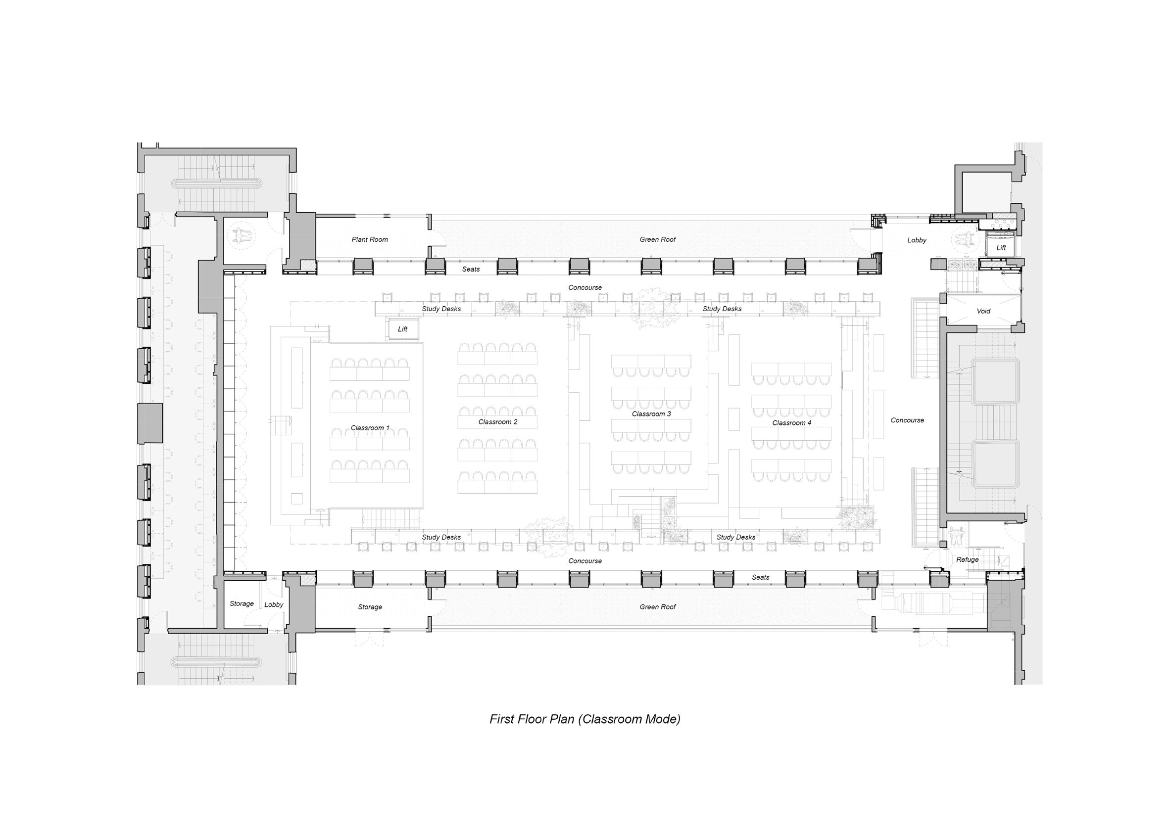
廣達994平方公尺的開放式場域,被巧妙地規劃於數個不同的高程平面上。設計師充分利用泳池由淺至深的天然地勢,創造出豐富的空間層次感。在層層遞進的台階上,散置著由膠合板製成的長凳,提供非正式的座位選擇,鼓勵學生們自由交流或短暫休憩。如此的規劃打破了傳統教室的僵化隔閡,營造出一個充滿活力與互動性的學習環境,鼓勵自發性的知識分享與群體協作。



泳池深處的舞台光芒
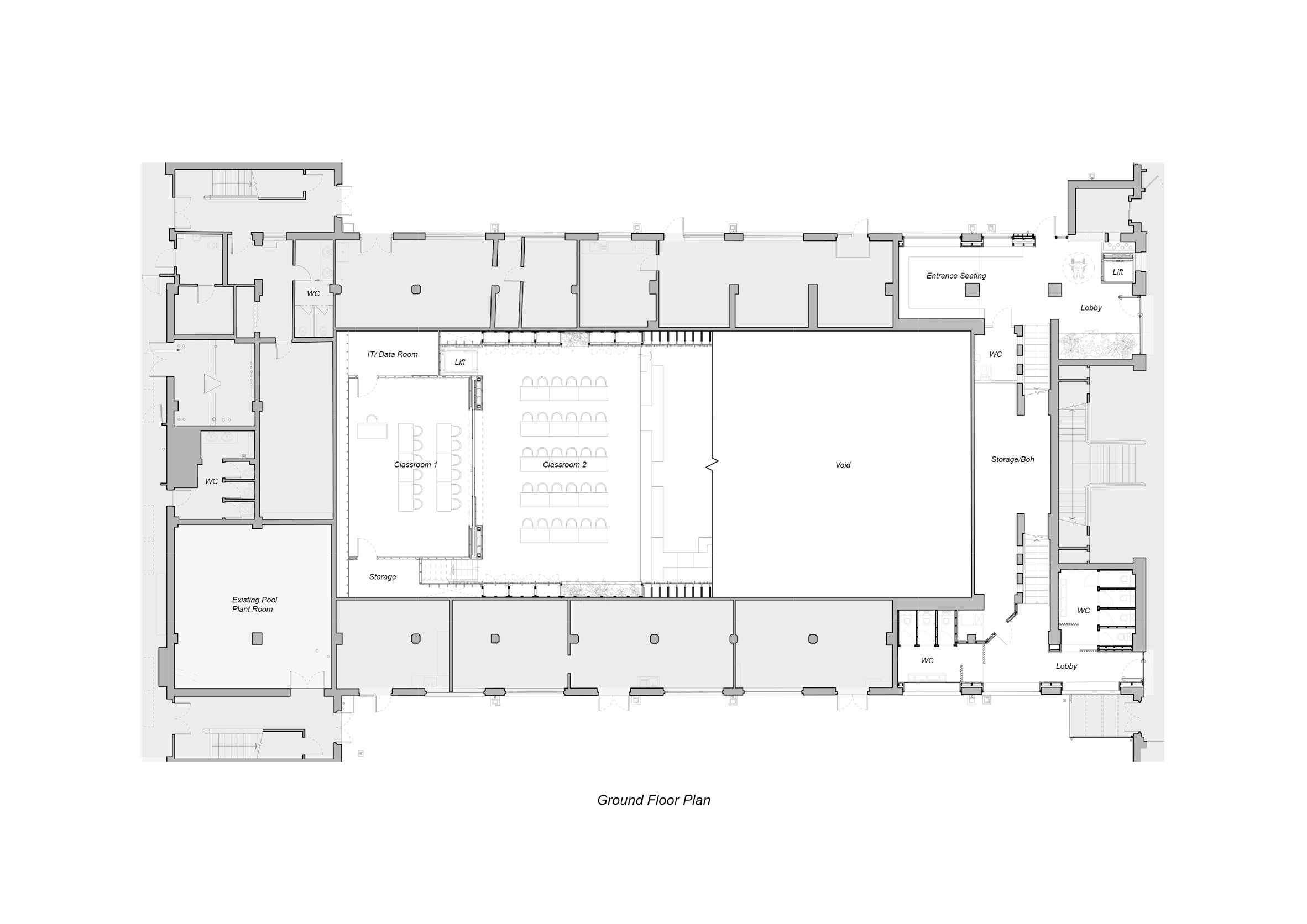
昔日泳池最深的區域,如今被改造成一個架高的舞台,成為舉辦講座、戲劇表演及全校集會的焦點。這個戲劇性的轉變,是整個改造計畫中的神來之筆,將原本功能單一的空間劣勢,轉化為具備多重用途的核心優勢。舞台下方深邃的空間也未被浪費,設計團隊在此規劃了專門的資訊科技(IT)機房,並以滑動式木門加以區隔,實現了空間效益的最大化,堪稱是垂直空間利用的絕佳範例。



周邊區域的靜謐學習角落
環繞著泳池舊有邊際的區域,被規劃成一系列由條狀木板圍繞的固定式書桌。這些半獨立的空間,為需要高度專注的個人研習或小型團隊討論提供了理想的場所。木質隔屏在界定空間之餘,也維持了視覺上的穿透性,避免了壓迫感。這種動靜分明的區域劃分,細膩地回應了當代教育對於多元學習模式的需求,讓學生能依據不同的學習任務,找到最適合自己的角落。


擁抱自然的採光與綠意
為了提升室內的舒適度,建築師擴大了位於東西兩側的既有窗戶面積,極大地增加了自然光的引入量,使得整個空間更顯明亮開闊。窗台下方更整合了座位功能,讓學生在閱讀之餘,也能夠眺望窗外景致,獲得片刻的身心鬆弛。根據事務所的說明,所有材料的選擇皆嚴格遵守耐用性、循環性及低蘊含碳的三大原則,展現對環境永續的堅定承諾。



材料選擇的永續宣言
整體空間採用了簡潔而自然的材料組合,主要由經過森林管理委員會(FSC)認證的樺木膠合板、再生隔音板與低揮發性有機化合物(low-VOC)塗料構成。FSC認證確保了木材來源的永續性,而由回收物料製成的隔音板則有助於創造寧靜的聲學環境。穿插點綴於各處的各式植栽,不僅美化視覺,更為室內帶來生機,營造出支持專注力與幸福感的平靜氛圍。


提升效能的智慧科技
為強化空間使用的彈性,設計中增加了一面巨大的隔音簾,能夠依據不同教學活動的需求,快速變換空間的配置與大小。在提升能源效率方面,除了將窗戶升級為三層中空玻璃,也對內外牆體進行了隔熱強化,並為管線鋪設保溫材料。這些措施旨在全面提升建築的熱性能,降低能源的耗損,從根本上打造一個更加環保的學習環境,為校園的節能減碳目標做出具體貢獻。


前瞻性的節能系統整合
其他為了最佳化能源使用的介入措施,還包括安裝空氣源熱泵(Air Source Heat Pumps)、混合模式通風系統與全面的LED照明。空氣源熱泵是一種高效的暖通空調技術,能從室外空氣中提取熱能,大幅減少供暖所需的電力。混合模式通風系統則結合了自然通風與機械輔助,確保在不同氣候條件下,都能維持優良的室內空氣品質與溫濕度控制,同時達到節能效果。

持續演進的協作設計
自計畫的早期階段開始,Studio Dera便與華咸森林學院的師生們展開了密切的合作。透過舉辦多次工作坊,共同探討空間策略、技術需求以及使用者的核心優先順序,確保最終成果能真正貼近實際需求。更重要的是,在改造工程竣工之後,事務所團隊仍持續根據使用者的回饋意見,對設計進行微調與優化。這種不斷演化的設計過程,讓「The Pool」成為一個真正具有生命力的「活建築」。
建築圖




