Valerio Olgiati是瑞士公認的最具有叛逆和革新精神的建築師之一,也是繼Peter Zumthor和Herzog and de Meuron之後,新一代建築師中最有影響力的一位。值得一提的是,他的影響不僅僅呈現在其實踐作品中,他的理論與教學同樣備受關注。他曾任教於瑞士蘇黎世聯邦理工學院(ETH Zurich)、倫敦建築聯盟學院(AA)等世界頂級建築院校。2009年,他受邀成為哈佛大學丹下健三教席榮譽教授,並從2002年起,長期執教於瑞士門德里西奧建築學院(Accademia di Architettura,一般簡稱AAM)。
前不久,門德里西奧建築學院的Olgiati工作室舉行了一場別開生面的線上期末評圖,全程在網路進行直播,並在世界範圍內邀請觀眾觀看。澳洲建築師Angelo Candalepas和瑞士建築師Raphael Zuber擔任答辯嘉賓。由於觀看人數達到線上會議室的容量上限,一度導致評審委員無法進入,評圖也因此中斷。
Olgiati為何擁有如此吸引力,甚至連其學生們的期末評圖也在全世界吸引如此多觀眾?Olgiati對建築學教育有什麼獨到見解,我們又能從這些學生提案中獲得什麼?
常規思維下的設計過程,是從被給定的基地及現狀去分析,採取不斷限定來生成一個設計。建築似乎成為了一種問題或現象的回答。提出正確的問題變成最重要的事情,而答案本身反而顯得沒那麼緊要。但事實上,拋開酷炫的效果圖和工作量巨大的分析圖,平立剖等技術圖紙或許能夠更多地呈現一個建築提案的實際資訊。設計者的概念和想法也需要在建築本身的結構和空間體驗中貫徹,並採取技術圖紙傳達。
基於這種語境,Olgiati的建築理念及其學生的作品,可以被看做是一個跳脫常規思維的支點。
我們可以透過解讀《Valerio Olgiati指導的14位學生作品》(14 Student Projects with Valerio Olgiati)一書,試著瞭解Valerio Olgiati獨特的教學理念。本書包含了Olgiati 1998至2000年在蘇黎世聯邦理工學院作為客座教授時,所執教設計工作室的14個學生提案。學生中的Raphael Zuber及Pascal Flammer等人已經成長為新一代的瑞士明星建築師。

《Valerio Olgiati指導的14位學生作品》(14 Student Projects with Valerio Olgiati)
我們認為建築不僅僅是為了完成給定的任務,也不只是在給定的基地上排布機能,同樣不是簡單的建築元素的構成。我們追求的是一種精確性:我們認為,設計是思考的物理表現和邏輯結果。從這種意義上講,我們認為一個成功的提案,是能夠採取最精準的方式代表一個人理念(one idea)的提案。在我們的視野里,一個提案的美是在於其理念和想法的美妙。作為結果,以一系列被形式化原則桎梏的價值觀去討論提案本身變得無關緊要。一個提案中特定的審美,與由抽象的理念轉化為具體的形式的過程相對應。_Valerio Olgiati
Valerio Olgiati給學生的設計題目
在1998年的秋季學期,學生們需要去規劃和設計在聖莫里茨附近,皮茲奈爾山(Piz Nair)上一個配有餐廳的山地滑索站。Corviglia Piz Nair鐵路公司作為業主,採取房間的精確機能規定了建築物的大小,位置和用途。在第二學期,「具體」業主的角色參加了所有討論。對於住宅大樓,基地和大小由學生自己決定。
關於在蘇黎世中央火車站西北部高層建築社區的想法是第三學期的出發點。工作室選擇了現有的土地,並採取抽簽分配給學生。學生自己需要確定每個建築物的大小和用途,唯一的規則是紅線以及防火規定。
在2000年夏季最後一個學期,學生規劃計劃了自己的建築師事務所。建築的大小根據員工人數確定,學生可以自己選擇基地。
作品解讀
本書呈現的是從所有學期作品中選出的其中14件示範提案,本文將著重解讀其中的3件提案,並扼要呈現其餘11件設計。
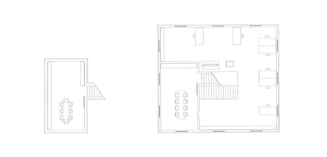
建築師工作室Architect’s office with two steps in situ concrete/Pascal Flammer

這是瑞士年輕一代建築師的代表人物Pascal Flammer的最有名的提案之一,是他為自己設計的建築工作室。建築一眼看上去結構十分簡單,一個平面平整的三層建築,只有位於平面中心的一個服務核和每層的4根柱子,但實際上這個結構卻充滿了可以細細品味的潛力,並且能夠感受到作者對結構的精妙思考和認知。
先從最頂層看起,我們可以將四角斜出的牆體視為梁,同時位於立面中央的柱子則為受拉桿件。基於這個條件,樓板的大幅懸挑成為可能。在中間層位於四角的柱子同樣為受拉桿件,並在地面層的柱子的配合下完成了樓板的懸挑。因此,雖然在視覺上,這些柱子呈現出一樣的形態,但是它們的受力情況卻實則相反。在整個建築中真正承載壓力的柱子,只有地面層與地面相接的四根。



這些結構元素同樣對空間感受有著強烈的影響。由於這些結構的介入,每一層的感受或開闊或圍塑,都呈現出迥然不同的空間特色。


這個房子另一個奇妙的設計是樓梯。Pascal Flammer曾在自己的演講中這樣解釋:「如果你在我的事務所工作,你會從南邊的入口進入,從雙層樓梯中的右側到達二層的辦公室。而我則會從北邊進來,和我的秘書打過招呼後,走上雙層樓梯中的另一個。我和員工們雖然共用一個交通核,但是視線和動線完全分離:我完全能自己‘偷偷溜進來’,直接到達三層的辦公室和會議室。」(引自全球知識雷鋒,Pascal Flammer於普林斯頓大學客座講座「System Concept Composition」)與普通的建築尋求簡單明了不同,這個房子的樓梯更像一個迷宮,促使人們在大腦中重構這個房子,同時也讓空間體驗更富趣味。

在這個提案中,作者在結構概念上的認知突,破使整個建築在結構體系、空間體驗思考的複雜性,能夠以非常凝練的建築語言實現。
松林住宅Four-storey residential building in a pine wood/Tamara Bonzi

這是一個位於松樹林的住宅建築。乍一看這和我們日常生活中所見到的別墅非常不同,而更接近於Bernd und Hilla Becher鏡頭中的工業設施。整個房子分為地下和地上兩部分,地上部分在頂端由一大一小兩個飛碟狀的圓盤組成。最頂端的大圓盤位於樹冠之上,而下方較小的圓盤則被松樹林的樹冠所包裹環繞。

各層平面圖 Plan
仔細閱讀平面會發現,最上層的大圓盤是住宅最主要的起居室部分,在這里視線沒有任何阻擋,週遭一覽無遺,處於其中猶如漂浮於一望無際的林海之上。下層的圓盤則是餐廳,這里空間被樹冠的綠色所環繞,寧靜而私密,伴隨著和風微拂的綠葉和斑駁的光影享受一頓美味的午餐,想必是美妙的體驗。臥室處於森林中最私密的地下,同時這個房間也是整個建築的基礎。雖然外形奇特,但是卻十分合乎情理,幾乎是為所處的松林的環境所特別客製化的。

剖面圖 Section
建築完美地利用了松林垂直向空間的不同特質,為日常生活的不同行為活動營造了截然不同的體驗。採取電梯,而不是樓梯去串聯四個彼此之間相互獨立的空間,使得整個體驗是切換式的,完全不同於樓梯所帶來的漸變式體驗。彷彿一開門就是一個嶄新的世界。作者利用這種場景切換的手法創造出:被包裹在地下、漫步在森林的地面上、被森林的樹冠所包圍、漂浮於整片森林之上這四種不同的空間感受。
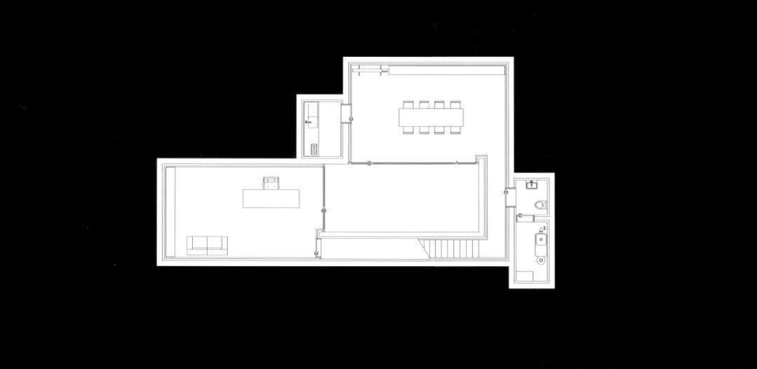
蘇黎世六間房住宅
Residential building with six rooms in Zurich/Raphael Zuber

基地照片,蘇黎世街景
這是另一位瑞士傑出的年輕建築師Raphael Zuber學生時代的作品,一個由一連串房間組成的垂直向住宅。這個住宅還包括一個位於第三層標高的院子。



各層平面圖 Plan及剖面圖 Section
不同於一般建築師會做的,例如圍牆或者開窗等較為視覺的常規手段,Raphael的處理顯得激進而微妙。作者沒有用牆去圍塑的方式,而是採取改變標高,讓花園在體驗上脫離地面,進而使花園與住宅的從屬關係更進一步。並且當主人要從地面層的起居室上到上層的餐廳書房和臥室空間時,必須強制性地打開一扇門,走出建築室內空間,進入室外的院子,然後再打開另一扇門重新回到室內,室外的院子成為了住宅體驗的不可或缺的部分。並且採取這樣一個動作將住宅劃分為兩個部分——以會客為主的社會生活空間,與以吃飯看書睡覺為主的個人生活空間,再採取院子去連接。從某種意義上講,這個提案可以被理解為一個帶有兩個房子的院子。
高層辦公-住宅大樓
Highrise building with office and apartment floors/Pascal Flammer

作品模型照片




地面層、標準層平面圖 Plan及立面圖 Elevation
蘇黎世Gsteigstrasse 15號住宅
Residential building, 15 Gsteigstrasse, Zurich/Mario Lins

作品模型照片




剖面圖 Section及各層平面圖 Plan
混凝土住宅
Residential building in Leca concrete
「greased」 every year/Karen Wassung

作品模型照片



剖面圖 Section、平面圖 Plan及屋頂採光示意圖
建築師工作室
Architect’s office in Maienfeld with two entrances
covered by a vine/Herwig Lins

作品模型照片




立面圖 Elevation、各層平面圖 Plan及剖面圖 Section
高層體育館
Sport highrise building
with granulated rubber facade/Katja Mayer

作品表面材料


地面層、標準層平面圖 Plan、立面圖 Elevation及剖面圖 Section
蘇黎世工業區住宅
Residential building in the industrial quarter, Zurich/Stefan Fürst

基地照片,蘇黎世工業區火車道



立面圖 Elevation、平面圖 Plan及剖面圖 Section
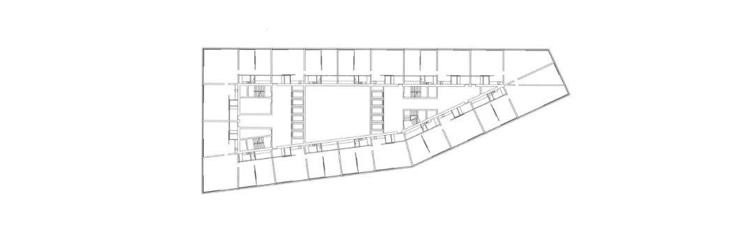
山地纜車站
Mountain station hewn in the rock
in situ concrete/Raphael Zuber

作品模型照片




各層平面圖 Plan及剖面圖 Section
山地纜車站Mountain station with a hydraulic platform/Megumi Komura

作品模型照片



平面圖 Plan及剖面圖 Section
萊茵河谷住宅 Residential building below the main cantonal road in the Rhine gorge/Patrick Schmid

基地照片,萊茵河谷



平面圖 Plan及剖面圖 Section
建築師工作室
Architect’s office on a large public car park/Stefan Matter

基地照片,停車場




各層平面圖 Plan及剖面圖 Section
建築師工作室
Office for six architects
between the River Limmat and the Milchbuck tunnel in Zurich/Thomas Merz

作品模型照片




各層平面圖 Plan及剖面圖 Section
Valerio Olgiati任教AAM時期學生作品
從1998年在ETH執教時期,到現在AAM的工作室,Olgiati的教學方式也發生了一些變化。從曾經的黑白技術圖紙到如今的彩色渲染及拼貼,圖像(image)在Valerio Olgiati的建築學教育中的地位毫無疑問是十分重要的。
這些圖像除了構圖之外還需要具有深度的意義,並且他希望學生能夠採取圖像來形成自己的價值系統,但無論圖紙形式的變化與否,他在實踐與教學中對「唯一理念」(one idea)的追求都是不懈的。









結語
時至今日,我們依然對勒·柯比意年輕時在拉紹德封(La Chaux-de-Fonds)的作品十分痴迷,雖然這些作品與他之後聞名於世的多米諾體系似乎大相徑庭,但那些偉大的建築思想,以及對後世意義深遠的實踐正是脫胎於此。同樣地,我們在學生時代的作品或許代表著某種不成熟,但其中的一些思考和理念具有足夠的價值和潛力,伴隨我們作為建築師的職業生涯。學生作品的真正價值在於其閃光點和所蘊含的潛力,希望這14個學生提案能夠折射出一定啟發。

參考資料:
[1] Heinz Wirz, 14 Studentenprojekte bei Valerio Olgiati, Quart Verlag GmbH, 2000.
[2] Valerio Olgiati, Lessons on 13 topics of architecture, diploma 2015, Domus 999 February, 2016.
[3] Pascal Flammer, System Concept Composition, lecture in Princeton University, 2017.
[4] Valerio Olgiati 1996-2011, El Croquis 156, 2011.
[5] 門德里西奧建築學院官方網站:http://www.arc.usi.ch