劉宇揚建築事務所 Atelier Liu Yuyang Architects的工作室空間,位於上海法租界典型弄堂內的一棟非典型普通建築中。經過設計改造後,在保留原有房子的結構基礎上,空間更為連續,並強化了室內外自然通暢的視覺聯繫。在忙碌的工作間隙,偶然的回眸一瞥,穿過通透的落地門窗與斜切天窗,盡收室外林蔭與光線的時刻變化,讓人感知到自然環境的真實變遷。




斜切天窗以及落地窗所呈現出的光影效果
在空間使用方面,原本位於入口處的車庫被改造為一間大會議室,它的雙扇玻璃門可直接通往前院和外大門,與外部的社區空間形成一個連續的空間界面,提供未來作為社區設計工作坊的可能性。一樓為主要的核心工作區,其中:微展廳、咖啡吧、模型室、陽光房、機房、洗手間、儲藏室等一系列的服務與被服務空間圍繞著一個近5米長的項目檔案島櫃為中心展開。
一樓平面圖
一樓 入口處微展廳
一樓 工作區
一樓 陽光房
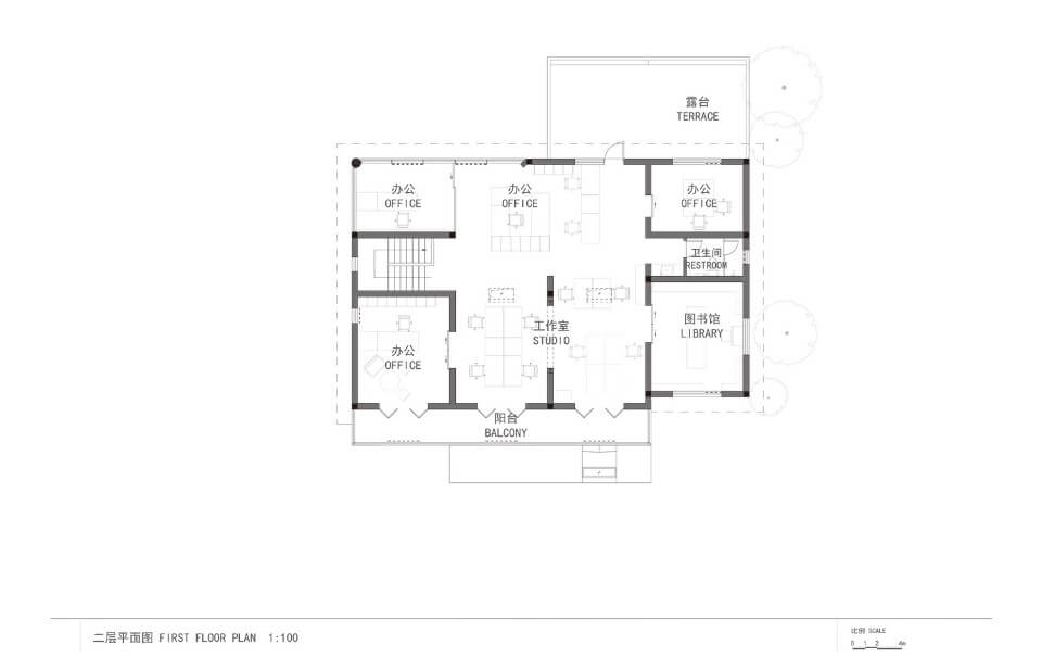
二樓的挑高空間被定義為協作工作區,除了滿足基本的行政管理空間需求之外,還包含了兩個開放式的多人工作區,三間獨立辦公室,和一間專門闢出來的中外文建築圖書室。正如我們對原創建築的追求,我們對原版書籍也有著同樣的尊重。在這裡,你不會遇到盜版書商進來兜售書刊雜誌,而是有一筆固定預算由事務所同事負責定期選購真正值得閱讀和保存的高質量出版物,其目的更不是為了要參照任何建築潮流,而是提供事務所在周而復始的設計過程中,一個清晰而多元的建築文化坐標。
二樓平面圖
二樓 開放式多人工作區
二樓 獨立辦公室(左)以及圖書室(右)
在材料與細部方面,圓潤而帶不同青灰度色澤的金剛石骨料水磨石地面與黃銅壓條分縫及收邊做法,自行設計和現場手工製作的角鋼、回收水曲柳木與黃銅手拉桿構成的門窗系統,白色磚牆與門窗洞口的圓弧倒角,黑色鋼板彎曲面的入口門斗、樓梯扶手、窗台、書架等,每一個構造與構件上的處理,都是試圖針對其特定的空間與功能屬性,做出有態度的設計回應。而材料本身的色澤與質感,以及材料交接所構成和其延伸出來的空間、光影、使用和現場的關係,不是圖紙設計意向能表達的效果,卻是真實空間的建造實驗與實踐。
材料分析圖
家具與配件分析圖
建築模型拆解照片(左)、一層陽光房與院子(右)
五原路工作室
作品資料
作品名稱:五原路工作室
作品位置:上海市徐匯區
作品類型:舊建築改造、室內設計、辦公空間
建 築
設計單位:劉宇揚建築事務所
主持建築師:劉宇揚
參 與 者:曹飛樂、王珂一、陳芸菲
現場管理:Herman Mao
結構顧問:劉濤
建設單位:劉宇揚建築事務所
施工單位:上海卓浩裝飾工程有限公司
基地面積:355㎡
建築面積:400㎡
設計時間:2014年至2016年
施工時間:2014年、2015年、2016年
攝 影:Eiichi Kano、Herman Mao、車進、陳顥
關於「劉宇揚建築事務所」
劉宇揚1969年出生於台灣台東,於美國加州大學獲都市研究學士後,又赴美國哈佛大學攻讀建築碩士。求學期間,劉宇揚師從荷蘭建築家庫哈斯,完成中國珠江三角洲城市化的研究。他曾任教於香港中文大學,並受邀擔任2007-08年深圳-香港雙城雙年展策展人和2011年成都雙年展建築策展人。
劉宇揚建築事務所成立於香港和上海,由著名青年建築師劉宇揚先生主持,近年來研究及實踐的方向側重於城市的微觀生態性、建築的在地文化性和節能環保性措施。一直以來在工作中追求真誠的、有意義的、及可持續的建築與環境。立足於中國並積極面對亞洲與世界,事務所的理念是持冷靜的態度面對未來的城鄉發展,以系統的方式解析複雜的社會需求,以實驗的精神實踐永續的社區營造。
事務所位於上海,創始初期完成了包括上海當代藝術館、上海南京路行人服務亭、青浦環境監測站等一系列具有前瞻意義和研究性質的公建項目。事務所至今堅持出品高質量的公共與私人委託項目,近期完成的包括上海國際汽車城研發港,廣西雲廬酒店,上海江橋濱江安特公園和上海同濟實驗小學等多元類型作品。做為一家不依託於任何體制與機構的獨立事務所,擁有長期、穩定的技術顧問、國際化的合作夥伴,並擅長於跨專業的全過程設計協作。