中國國際設計博物館建築整體呈現三角形配置,外觀主色及材料為阿哥拉紅砂岩、輔以法國果黃砂岩,體現出典型的現代主義建築和美學風格。博物館展廳面積6300平方公尺,此外還配備有文獻中心、駐館設計師工作室、兒童工坊、多功能廳、報告廳、屋頂花園、規劃中的設計書店等。 博物館藏品包括365件包豪斯學院作品、超過2000件包豪斯時期作品,以及美籍華裔設計師、收藏家朱欽騏捐贈的逾3.6萬件藏品。館內目前設有兩個長期陳列,分別是「生活世界——館藏西方現代設計展」和「顛覆與重塑:館藏馬西莫‧奧斯蒂男裝展」。
中國美術學院的兩個校區
位於杭州的中國美術學院(CAA)共有兩個校區:老校區在市中心,毗鄰西湖;新校區位於郊區,面積也更大。在新校區,隨處可以看見建築師王澍的作品:這裡大部分的建築由他設計。該作品開始於王澍獲得2012年普利茲克建築獎之前,從工作開始初期,專案團隊得到了王澍和她同為建築師的妻子陸文宇的大力幫助。
博物館外觀
收藏Bauhaus包浩斯
中國美術學院的巨大館藏及其從Bauhaus包浩斯學校獲得的大批原始藏品是該作品得以誕生的根源所在,擁有365件包豪斯學院作品和超過2000件包豪斯時期作品,為了彙集豐富的館藏和其他臨時展覽,需要建造一座能夠滿足一些特定機能、同時又富有特色的博物館,因此興建了這座名為「中國國際設計博物館(China Museum Of Design Bauhaus Collection)」的建築,清楚地對應到其與包浩斯設計作品收藏的關係。
中國國際設計博物館歷史
2011年,中國美術學院向德國藝術商 Torsten Bröhan 購買超過7000件「以包豪斯為核心的西方現代設計系列收藏」,並以此為基礎在象山校區16號樓設立臨時展廳,展出部分包豪斯時期作品。
2012年浙江省政府批准建設中國國際設計博物館,新館由普利茲克獎得主、葡萄牙建築師阿爾瓦羅‧西扎(Álvaro Siza)設計,於2014年2月舉行奠基儀式,2018年4月8日,中國國際設計博物館在「中國美術學院90週年校慶日」當天正式開館。
校園雖然面積廣闊,卻沒有太多可用的空地,除了東南角的一處區域——位於兩條主幹道交匯處的一塊延伸出來的基地。


該基地呈三角形,且受到城市和環境規劃規範的限制,以上因素決定了建築可能的佔地面積和量體的尺度。


三角形基地
屋頂坡道 
建築的內部配置試圖強調行人的順暢流動以及空間的靈活使用。作為一所藝術學院的設施,博物館的主要目的是展示學生與教師的各項工作成果以及他們使用的語言與技術,同時還要發揮迎接來賓的作用。



空間配置
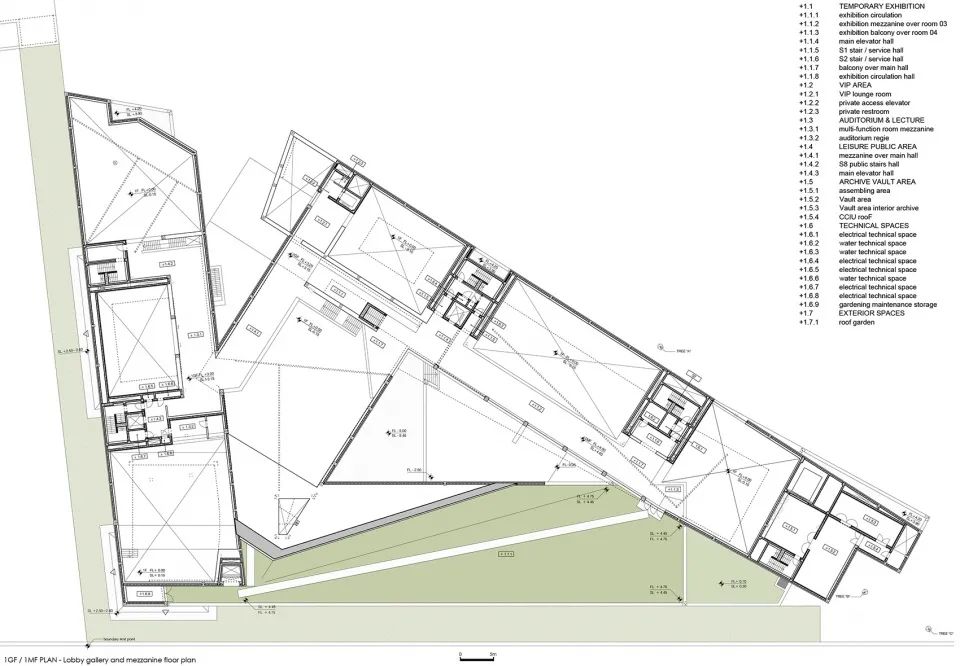
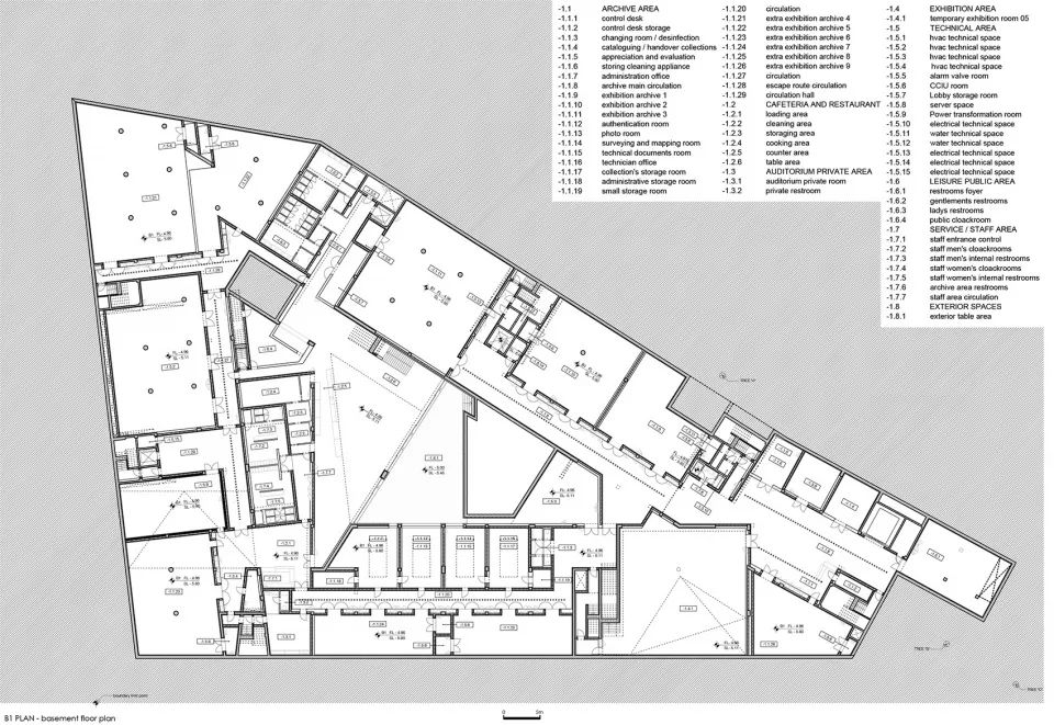
建築的地下層容納了技術區、檔案室和服務區,此外還有一間咖啡廳直接與建築中心的三角形庭院相連接。建築地面層包括入口、公區和休閒區域、交通空間、臨時展廳和禮堂。
地面層上方設有一個夾層,可提高流通性,同時還設有一條坡道,可通往朝東的量體上方的屋頂花園。該量體的頂層是包浩斯館藏的永久展廳。行政辦公區、青年藝術家工作室和一些基礎設施位於頂部朝南的幾個樓層。






夾層展區 
建築的外立面採用了源於印度的紅色阿格拉砂岩飾面。部分樓層,尤其是三角形量體的地面以白色大理石鋪設,框架採用鋁或木材。南側邊界有一個垂直插入的白色混凝土量體,用於容納公共訪客的入口。



建築圖











作品資訊
作品名稱:中國國際設計博物館 CHINA DESIGN MUSEUM OF BAUHAUS COLLECTION
作品位置:中國杭州
建築師:Álvaro Siza、Carlos Castanheira
設計期間:F2012年2月~2013年12月
營造廠:September 2014 – April 2018
專案建築師:Pedro Carvalho
設計團隊:Adalberto Dias, Carolina Leite, Catarina Rodrigues, Diana Vasconcelos, Elisabete Queirós, Francesca Tiri, Germano Vieira, Joana Soeiro, João Figueiredo, Jorge Santos, Nuno Campos, Pedro Afonso, Rita Ferreira, Sara Pinto, Susana Oliveira
在地建築師:The Design Institute of Landscape & Architecture, China Academy of Art
在地團隊:Liu Ke, Zhao Yaunpeng, Jiang Weihua
結構:Shentu Taunbing, Chen Yongbing
工程: Zhu Weiping, Yu Xiaofen ( Hydraulical),
Jin Guogang, Wang Yonghong ( Electrical)
Chen Chunji, Teng Liang ( 空調通風)
Intelligent Desing: Sun Mingliang, Sin Minjun ( intelligent Design)
Hangzhou Zhida Archit. Science & Technology Co.,Ltd , Zhang Shanming, He Haixia ( ACosutics)
顧問:GET – Raul Bessa ( 空調通風) ,
HDP – Paulo Fidalgo ( Structure)
3D模型:Germano Vieira, Pedro Afonso
總建築面積:16000 平方公尺
總樓地板面積:8000平方公尺



量體與植栽
從