特溫特大學校園的新地標與工程技術學院的變革
CUBE工坊大樓(CUBE Workshop Building)的落成,為荷蘭恩斯赫德(Enschede)特溫特大學(University of Twente)Drienerlo校區注入了一股強勁的創新動能。
這座總樓地板面積達4,734平方米的建築,是工程技術學院(Faculty of Engineering Technology)Horst綜合體的一座緊湊延伸,由荷蘭建築師事務所 Civic Architects 、VDNDP以及Groen+Schild 聯手操刀。過去,工程技術學院的學生被訓練去設計能改變世界的技術,但這種充滿力量的使命感在舊有的Horst大樓中卻難以被看見。CUBE的出現徹底改變了這個局面,它不再是一座封閉的學術象牙塔,而是一個開放的展示平台,讓所有人都能親眼見證工程技術的魅力與學院的核心價值。



下沉式金屬車間與垂直展示的空間策略
CUBE工坊大樓最令人驚豔的設計亮點,莫過於其被稱為「Expo for ET」的核心概念。設計團隊大膽地將一樓的金屬與焊接工坊地面層往下沉1.4米,創造出挑高7米的壯闊空間。
當訪客踏入建築物,視線便能輕易越過大型機具,一覽無遺地俯瞰整個作業現場。透過巨大的挑空,上層的作坊活動也盡收眼底。下方是學生與研究人員操作重型機械的實作場域,上方則是原型製作與教學活動的發生地,而窗外則是校園的自然景觀。以垂直向度的視線穿透,將原本隱藏在幕後的實驗與製造過程轉化為精彩的展演,讓整棟建築成為巨大的動態櫥窗。


功能與互動並重的協作場域與緊湊佈局
在過去,科學研究往往需要高度的隔離與封閉,但在創新導向的當代,協作是驅動進步的關鍵。CUBE工坊大樓敏銳地回應了這個趨勢,將功能性與互動性視為設計的雙重核心。
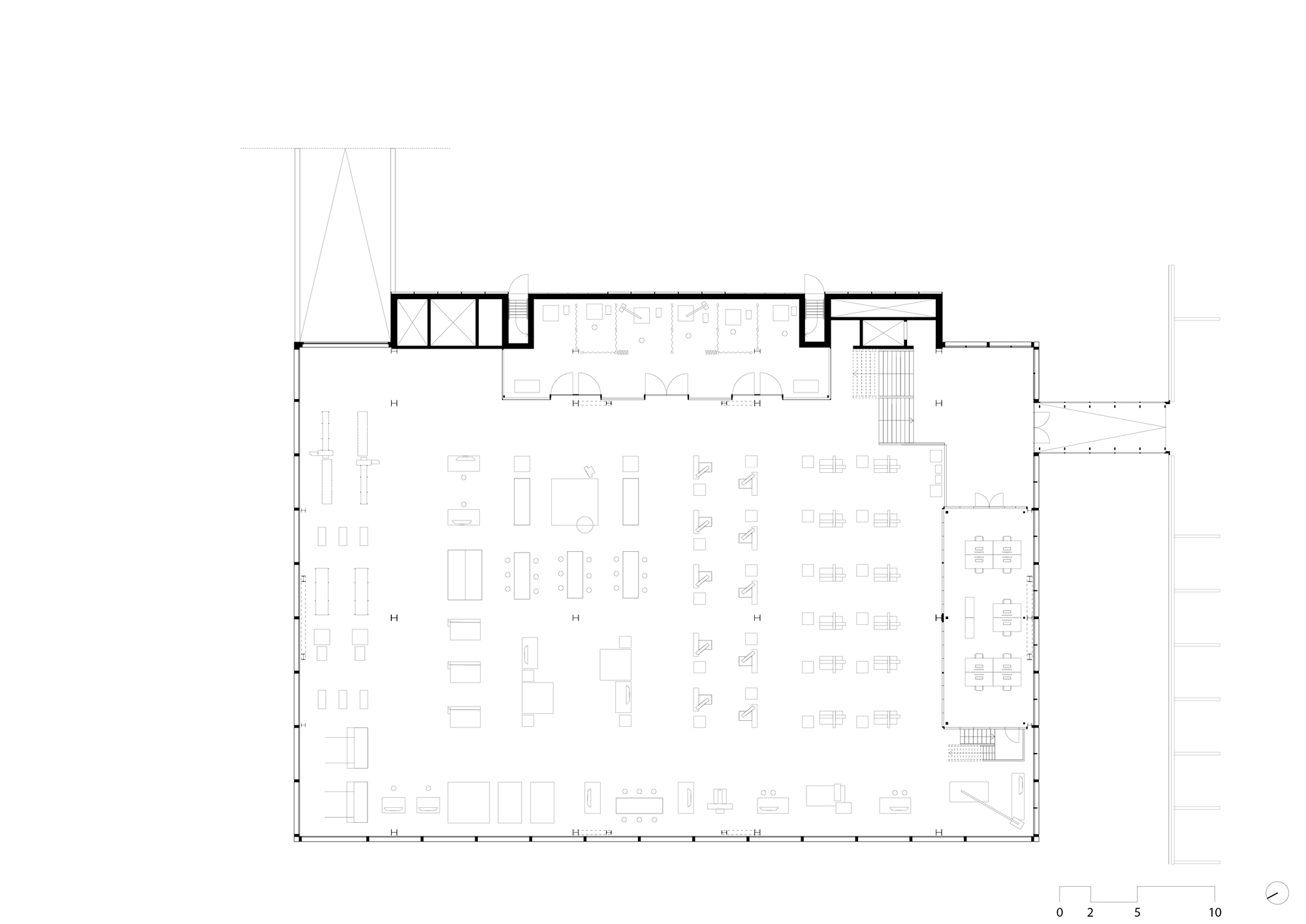
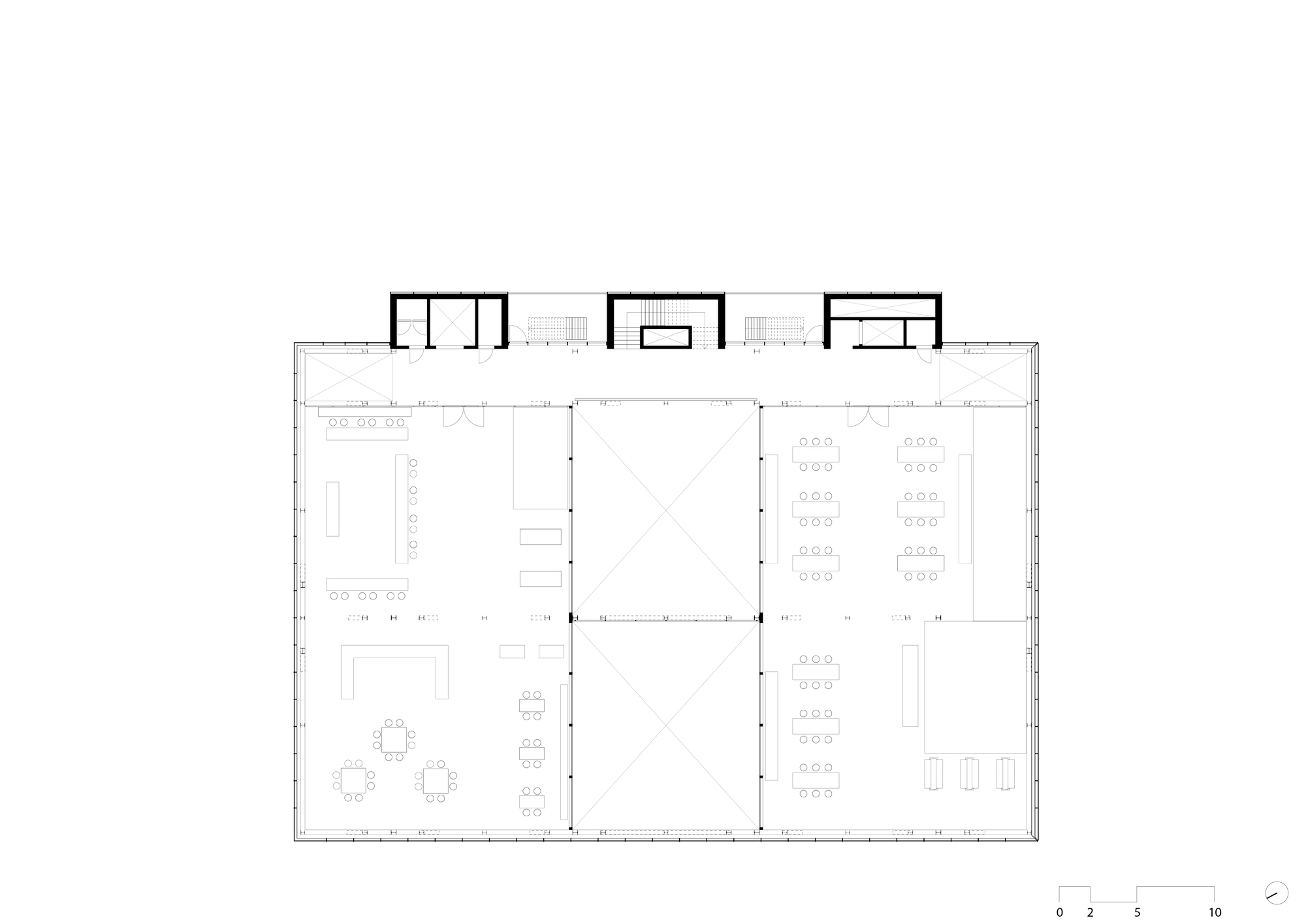
建築內整合了五個主要的工作坊——涵蓋焊接、金屬加工、模型製作與組裝——以及約500平方米的實驗室與測量空間。為了保持建築基地的緊湊性並縮短動線,設計團隊選擇將這些機能垂直堆疊而非水平鋪排。
金屬工作坊佔據下沉的一樓,辦公室則位於稍高處以便於監管;二樓設有組裝與模型工坊,三樓則是精密實驗室。所有的垂直動線、服務核與倉儲空間都被集中配置在東側,形成高效的「脊椎」,不僅服務各個工坊,也使開放空間之間形成清楚的視覺關係。

金字塔型中庭與透明化的技術製程
為了打破樓層間的隔閡並引入充足的自然光線,建築內部有個從剖面上來看是金字塔型的中庭,充滿光線的虛體空間不僅在視覺上串聯了各個樓層,更成為促進師生交流的社交樞紐。
站在中庭,人們可以清晰地看見各個工坊內的工作流程,彷彿揭開了學院的引擎蓋,直視其運轉的核心。這種透明化的設計策略,不僅提升了空間的品質,更在無形中鼓勵了跨領域的對話與激盪,讓知識與技術的傳遞不再受限於封閉的教室牆壁,而是在流動的視線與光影中自然發生。

結構即宣言的大跨度鋼桁架與CLT核心筒
對於工程技術學院而言,建築結構本身就是最佳的教材與宣言。為了滿足每學期因課程需求而變動的空間配置,CUBE大樓採用了由兩大跨距(14米)與一窄跨距(脊椎部分)組成的結構系統。
跨越兩個樓層的巨型鋼桁架大幅減少了工坊內的柱子數量,創造出極具彈性的大尺度無柱空間。此外,外立面的三角形幾何元素與包含電梯、樓梯及管線的交叉層壓木(CLT)核心筒,不僅提供了必要的側向穩定性,更賦予建築獨特的外觀表情。理性的結構解決方案,既滿足了靈活使用的機能需求,又展現了強烈的建築姿態,完美契合了工程技術學院的理性精神。

現代主義建築群中的氣候意識與立面演繹
CUBE工坊大樓的設計並非孤立存在,而是與校園內由Dick van Mourik於1960年代設計的Horst建築群形成對話。作為Horst綜合體的一顆新衛星,CUBE延續了原有建築群的幾何語彙,但在氣候回應上展現了當代的智慧。建築立面根據方位進行了差異化設計:面向西北的立面採用高通透性的玻璃帷幕,極大化景觀視野與漫射日光;而東南與西側立面則相對封閉,以防止過度日曬導致室內過熱。這種「因地制宜」的立面策略,不僅提升了建築的能源效率,更賦予了建築豐富多變的外觀層次。

精緻細節與材料本真性的崇高機能美學
「崇高機能性」(Sublime Functionality)是貫穿CUBE大樓設計的核心哲學。建築師對每一個細節都進行了反覆推敲,從結構節點到欄杆扶手,無不展現出精湛的工藝水準。在材料選擇上,堅持簡單、清晰且符合機能的原則。塗有藍色防火塗層的鋼桁架,強調了空間的結構秩序;淺灰色的地板與回收PET天花板,營造出冷靜且高反光率的室內氛圍;玻璃隔間則最大化了視覺的連結。在這個充滿工業感的基底上,落葉松木(Larch)框架的加入為空間注入了溫暖的觸感與紋理(Texture)。所有外露的管線設備都經過精心設計與排列,成為建築技術性格的一部分。整棟建築彷彿在呼吸著「工程技術」的氣息,將機能需求昇華為一種純粹而動人的建築美學。

下沉式設計與木質語彙的地景融合
為了在有限的基地上容納龐大的機能,同時保持與 Horst 建築群的協調,CUBE採取了下沉式一樓的設計策略,有效地控制了建築高度,使其不至於在視覺上壓迫原有的低層建築群。三個CLT核心筒的量體設計,呼應了Horst綜合體標誌性的服務塔樓,並在視覺上修飾了建築的體量感。一樓面向下沉工坊的寬大窗戶,採用木質框架,為建築底部增添了觸感與質感,宛如一個展示工程技術的精美櫥窗。上方懸掛的俐落玻璃帷幕牆,則與Horst建築群的現代主義風格相互呼應。在玻璃背後若隱若現的鋼桁架,透過幾何圖形與正交立面的互動,為建築外觀增添了動態的視覺張力,使其成為校園地景中一道獨特而迷人的風景線。




建築圖









作品資訊
作品名稱:CUBE Workshop Building
作品位置:荷蘭 Enschede, The Netherlands
作品類型:工作室、工作坊、鋼構、CLT、木構、校園建築、教育設施、荷蘭、荷蘭建築、荷蘭建築師
設計單位:Civic Architects
總樓地板面積:4734 平方米
竣工:2025年
攝影:Stijn Bollaert
主持建築師:Gert Kwekkeboom, Jan Lebbink, Ingrid van der Heijden, Rick ten Doeschate
專案團隊:Civic Architects
相關廠商:Alverre, Buiting Staalbouw, Qbiq, Woodteq