丹麥建築師尤恩·伍重(Jørn Utzon)的合院住宅方案常在建築歷史與理論的相關研究與討論中被提及。同時,國際上對他建築藝術成就的認可度也逐漸提升。然而現有研究對伍重職業生涯的瞭解大多十分有限。中國《建築史學刊》編委,畢爾肯大學助理教授裘振宇博士撰寫《伍重的合院住宅:生活、自然與中國建築》一文,借由伍重檔案(The Utzon Archives)以及伍重家人與同事的口述,向讀者展示了伍重從林語堂、阿爾瓦·阿爾托和喜龍仁的作品中受到的啟發,以及他的合院住宅方案如何深切地反映了他的建築哲學以及對現代住宅的想像。
伍重的合院住宅
生活、自然與中國建築
引言:伍重的合院住宅
尤恩·伍重(Jørn Utzon)無疑是20 世紀最重要的建築師之一。作為澳洲雪梨歌劇院(The Sydney Opera House)的建築師,伍重在世界各地都留下了重要的作品。這些作品一方面展現了伍重個人的建築信仰與美學價值,同時也反映了歐洲以外的建築文化對他所產生的重大影響與啟發。其中,中國建築文化與伍重之間複雜且微妙的關係,近年來得到了相當程度的研究與認可。但之前的研究,多半侷限於伍重的雪梨歌劇院一案以及他所設計的公共建築。雖然學界普遍認為,伍重一系列的合院住宅設計方案反映了他所心儀的中國建築文化,但究竟為何,仍是未解之謎。
迄今為止,托比亞斯·斐博(Tobias Faber)的《尤恩·伍重:在弗雷登斯堡的房屋》(Jørn Utzon, Houses in Fredensborg,1991),理查德·溫斯頓(Richard Weston)的《伍重:靈感、願景與建築》(Utzon: Inspiration, Vision, Architecture, 2001)和孟司·皮·布斯(Mogens Prip-Buus)的《尤恩·伍重工作日誌一:庭院住宅》(Jørn Utzon Logbook Vol. I: The Courtyard Houses, 2004) 等書是當下對伍重合院住宅方案最深入的研究,尤其是對金戈住宅(The Kingo Houses,1956—1959)和弗雷登斯堡住宅(The Fredensborg Houses,1965)兩案。儘管以上專著十分重要,但與伍重檔案(The Utzon Archives)今日所能提供的史料相比,這三本出版物僅包含了伍重職業生涯中十分有限的資料。不難理解,上述作者在準備專著時並未對伍重的建築收藏進行詳細的調查,因為伍重在世時不願與任何學者合作,更不用說授予他們研究他個人收藏的權限。 這種情況也是肯尼思·弗蘭普頓(Kenneth Frampton)《構造文化研究》(Studies inTectonic Culture, 1995) 一書中《尤恩· 伍重:跨文化形式和構造隱喻》(Jørn Utzon: The Transcultural Form and Tectonic Metaphor),梅雷特·安費爾德·莫勒魯普(Merete Ahnfeldt-Mollerup)的《金戈住宅》(The Kingo Houses)和米凱爾·阿加德·安德森的《尤恩·伍重:建築師的宇宙》(Jørn Utzon : The Architect’s Universe, 2008)中《弗雷登斯堡住宅》(The Fredensborg Houses)等文在撰寫時所同樣面對的,即只有零星的史料可供參考。
根據筆者對伍重檔案中史料的調查,以及對伍重同事、朋友和家人的採訪,本文針對以下問題進行探討,以期擴充有關伍重合院住宅現有的學術研究成果。首先,合院住宅方案如何總體上反映了伍重的建築哲學,特別是對現代住宅的想像?其次,伍重從哪些重要且特定的來源汲取了靈感來設計、規劃合院住宅?第三,伍重不同的合院住宅方案有何顯著的差異,以及什麼特定的原因造成其差異?第四,伍重的合院住宅在其一生的建築藝術創作中扮演著何種角色?最後,不同的合院住宅方案與伍重職業生涯中的其他重要項目之間有什麼關係?對這些問題的回答構成本文的論述觀點與主要內容,以便在清晰的歷史背景下理解伍重合院住宅的藝術性和設計準則。筆者認為,伍重的合院住宅方案密切反映了建築師對生活、自然和中國建築的獨特理解,尤其受到中國作家林語堂(1895—1976)、芬蘭建築師阿爾瓦·阿爾托(Alvar Aalto,1898—1976)以及芬蘭出生但常駐於瑞典的藝術史學家喜龍仁(Osvald Sirén,1879—1966)作品的啟發。這些作品對伍重產生跨文化的影響,既是美學啟發,又是其建築實踐的理論佐證。伍重的合院住宅方案,作為他對不同文化內涵和理想的詮釋,深刻地闡明了二戰前後現代建築與藝術運動中關於居住議題的論戰,以及對戰後建築設計所產生的跨文化影響。
林語堂與生活的藝術
林語堂無疑是20世紀最有影響力的中國作家之一。他的專著《吾國與吾民》(My Country and My People, 1935)向西方讀者展現了當時中國這片神秘土地上的人民及其風俗文化。正如伍重的家人所述,林語堂的書為年輕的伍重敞開了一扇大門,使他能夠初步瞭解中國人的理想生活和藝術典範,尤其是如何將中國書法、繪畫和建築藝術再現於自己的建築創作中。正如伍重的建築師兒子楊·伍重(Jan Utzon)所解釋:“林語堂的文字教我父親如何成為男人、父親和藝術家。”此外,出於對這位中國作家的熱愛,伍重將女兒命名為“林·伍重(Lin Utzon)”。
伍重與林語堂1938 年丹麥版《吾國與吾民》(Mit Land og Mit Folk)的第一次相遇可追溯到1942 年,當時伍重在德國納粹佔領丹麥期間(1942—1945)於瑞典斯德哥爾摩工作。在此期間,中國與德國納粹在東亞的盟友——日本帝國主義——作戰。 伍重的愛國精神和民族主義增強了他對中國文化和政治局勢的同情和同理心。林語堂的《吾國與吾民》為年輕的伍重在他之後的建築生涯中瞭解中國,並進一步研究中國的藝術和建築提供了重要的管道。後來,林語堂1937年的《生活的藝術》(The Importance of Living)和1961 年的《大城北京》(Imperial Peking: Seven Centuries of China)都屬於伍重與其家人最喜愛的中國讀物之一。
《吾國與吾民》的內容可以追溯到1930 至1935 年《中國評論週報》(The China Critic)的小評論(Little Critic)專欄,林語堂是該專欄的一位編輯。他發表在1930 至1932年和1933 至1935 年間的評論文章被分成兩卷重新出版於《英文小品(甲集)》與《英文小品(乙集)》(The Little Critics: Essays, Satires and Sketches on China, first and second series)。 之後,根據新加入的內容與材料,林語堂將這些論文重新編輯和有系統地組織成《吾國與吾民》中的幾個主題章節。這些章節不僅向西方讀者介紹了中國文化,而且還闡述了他對中西方社會的深入批評。例如,林語堂對古中國的哲學、文學、藝術和建築都懷有崇高的敬意,特別是在表達文明悠久而深刻的歷史與人文涵養時,但與此同時,他也譴責了中國的封建異教。同樣,儘管他對現代西方社會的政治民主和科學進步表示欽佩,但他卻鄙視其當下盛行的功利主義和資本主義。
伴隨著林語堂大力批評散播世界各地的西方現代藝術和建築,尤其是其冷漠無情的立體主義和抽象構成的特徵,他在《吾國與吾民》中對中國傳統的“藝術生活”(The Artistic Life)保持著浪漫的依戀和推崇。針對這個議題,他闡釋並推崇中國的“藝術家”“書法”“繪畫”和“建築”。對林語堂而言,這些人、事、物都應成為中國人和非中國人共同的渴望與可追求的理想。在林語堂眼中,中國藝術家所代表的是那些不羈於世的個人主義者,他們共同表現出對自然的強烈嚮往和對當下都市文明的厭惡。他們的藝術創作展現了大自然所散發的無窮盡之美,借由體認這種超然之境,將人們從難以忍受的城市環境中解救出來。對林語堂而言,中國書法、繪畫和建築所表現出的藝術美學是泛靈論、二元論、泛神論、抒情主義、象徵主義、神秘主義、原始主義和業餘主義的結合,不僅是對“非人道”立體主義的對抗以及對寄生於功利主義下現代形式的批判,同時也是再造現代藝術和建築,進而滿足人類心靈需求和精神健康的活水泉源。
《吾國與吾民》一書中對中國建築藝術的闡述對伍重的影響可以從他的第一份建築宣言——《當下建築之風潮》(Tendenseri Nutidens Arkitektur)中看到。該宣言由伍重與托比亞斯·斐博合著,並在1947 年丹麥《建築師》(Arkitekten)雜誌發表。在這篇簡短的宣言中,他們拒絕了非人性的機能主義教條下的形式模仿,以及由膚淺的歷史主義所啟發的建築風格。斐博和伍重直接被林語堂對同一主題的強烈批判所啟發。同時,斐博和伍重在這份宣言中提出了反教條式理論的設計哲學,並強調“人們對所處環境深刻覺察”的重要性,因為一直以來,“這種覺察一直是真正建築存在的基礎”。對他們來說,“……這種覺察是雙重意義的。也就是說,這種知覺使我們既可以體驗建築又可以創造建築” 。斐博和伍重闡述關於建築創作思想中的個人主義、自由主義和經驗主義與林語堂對中國藝術家的描繪直接吻合。對林語堂而言,中國藝術家遵循自己的直覺和對自然環境的感知,將其藝術創作從任何教條和理論中解放出來:
藝術家必須從大自然中無盡的形態,例如昆蟲、樹木、雲朵和瀑布中吸收靈感。為了取材於自然,他們(藝術家)必須熱愛大自然,並且他們的精神必須與大自然深入交流。他們必須瞭解並熟悉大自然的一切,他們必須知道同一棵樹在早晨和夜晚之間,或在晴朗的日子和有霧的早晨之間,如何變化其陰影和顏色,並且他們必須親眼看到山嵐如何“纏繞岩石,環繞樹木”。
在這宣言的主要文字之後,斐博和伍重摘錄了27張圖像,藉以展示使其建築創作“有機”和“富有表現力”的靈感來源。這其中包含了自然界中的有機形態構成、北歐地景、世界各地的民居以及中國建築。這27張圖像顯示了斐博和伍重眼中的中國建築是與自然現象和原始建築形式等同而不可切割的一部分。這似乎是對林語堂個人有關中國建築藝術闡述的回應:中國建築不僅源於一個“原始”文化,而且“與自然和諧”,並由“自然靈感”所啟發。同時,林語堂對中國佛塔的出簷之美、五彩斑斕的琉璃瓦、北京城牆和中國風土民居的讚賞,是斐博和伍重選擇圖像表達他們眼中中國建築文化的依據。
一年後,伍重發表了其首個個人建築宣言——《建築之本:蘊化》(“The innermost being of architecture: the flow of becoming”),並在北歐Grønningen 藝術家協會所舉辦的一次展覽中出版。正如林語堂的中心論述一樣,伍重將自然視為藝術創作的靈感和對美學概念的體現,其中“自然的種子”被視為“建築之本”。而“建築之本”來自於對“周圍環境的體察感知”,建築創作者需“提升自我覺察能力來深刻體認這些環境差異對我們所造成的影響”。這樣的描述與林語堂對中國藝術家的描繪相呼應——中國藝術家總是親近自然並體察自然的一切。正如伍重寫道:
我們把身旁一切與自己緊密相連。我們的周圍環境會通過它們的相對大小、光線、陰影、顏色等影響我們。例如,我們對一切的感知,完全取決於我們所處的空間是大還是小……
1952 年,伍重第一次在書面聲明中清楚闡釋了他的設計手法,該聲明介紹了他在赫勒貝克(Hellebæk)一處偏遠林地的自宅設計(圖1)。這篇文章可以說是伍重對林語堂強調中國藝術家追求原始生活與大自然和諧相處的真實回應:
……這樣簡單、原始的生活,帶著滑雪板或獵槍的山區旅行,或航行於大海,或與阿拉伯人在山區和沙漠中一起生活數週,或遊歷北美和墨西哥,體驗印第安人原始的生活方式——所有這些經歷都為我和我妻子理想的生活方式以及自宅設計奠定了基礎……

圖1 伍重1952 年赫勒貝克自宅的照片和基本佈局
伍重的文字也更進一步響應了林語堂強調旅行經驗和享受原始文化對藝術創作的重要性。林語堂認為中國藝術的理想生活定義了理想的自宅,而“住宅的魅力在於其獨立性”。在這個觀念下,住宅應親近自然而遠離城市文化。儘管伍重的經濟能力十分有限,但最終他為自己的赫勒貝克自宅(The Hellebæk House)選擇了一個沒有鄰居的落腳點,選擇了獨立於世的家庭生活。這與林語堂歌頌偉大的中國畫家黃子久(即黃公望,1269—1354)的隱士生活與“精神洗禮”(spiritual baptism)產生了共鳴:
……黃子久經常整天在山上的野竹子、樹木、草叢和亂石的陪伴下打坐,他似乎與他周圍的環境融合一體,這使他人為此感到不解。有時他會去河與海匯合之處觀看潮來潮往,他矗立一人,全然忘卻了風吹雨打和驚濤駭浪。這就是為什麼大痴道人(黃公望)能不役於物、超然物外,與自然幻化一體。
林語堂的啟發和伍重的自宅進一步解釋了伍重在1953年為斯科恩斯卡社會住宅競賽(Skånska Hustyper)提交的設計書。作為他職業生涯中提出的第一個庭院住宅方案,每個住宅單元都由高牆界定和區隔。這些牆體用於保護房屋免受城市干擾,因此當房屋位於更加擁擠的都市環境中時,其牆體對空間的圍合則更加封閉(圖2)。在封閉或半封閉的牆體內,有一個中央庭院,一塊土地供家庭成員親近自然。這直接反映了林語堂對中國住宅的定論:“房屋和花園是不可分的”,而相較於花園,“房屋本身在總體方案中處於相對不重要的位置”。關於“花園”的設定,伍重有可能更進一步接受林語堂的想法,並將房屋單元內的中央庭院設定為“一個寬敞的空間”,作為“一塊可以種植蔬菜和水果,並坐在樹蔭下的原始土地”,而不是“平整草坪和幾何花壇”。在伍重所提交的設計圖中,它描繪了徜徉享受日光的成年人和嬉鬧中的孩子,這進一步呼應了林語堂在私家花園中“享受大自然”的樂趣。
……假設在未來的文明世界中,每個人都可以擁有一英畝土地,那麼他就有了一個安身立命的起點。他可以種樹、種自己的樹,擺設岩石、自己的岩石。為此,他將謹慎地選擇已有成年樹木的土地,如果樹木還沒有成年,他將種植對他來說生長夠快的樹木,例如竹子和柳樹。這樣,他就不必將鳥關在籠子裡,因為鳥會來找他,他會發現附近有蟲子,最好還有蜥蜴和蜘蛛。這樣,他的孩子將能夠研究自然界中的大小事物,而不必在玻璃盒子中研究自然標本。至少,他的孩子們將能夠觀察到雞如何從雞蛋中孵出,並且他們不必像波士頓“好”家庭的孩子那樣對性和生物繁衍一無所知。他們將很高興看到蜥蜴和蜘蛛之間的打架。他們也會高興地弄的一身髒。

圖2 伍重於1953 年瑞典低成本斯科恩斯卡社會住宅競賽中提出的透視、平面和組態圖
從上述的相似性來看,伍重在1953 年所提議的合院住宅及其“花園”可以看作是他對現代文明和公寓生活的批判。林語堂對此也提出了強烈的批評:“人類文明已遭逢巨變,安身立命的空間是絕大部分普通人無法擁有並且無法享受的……而無論藉口是什麼,剝削土地的文明都是錯的”。伍重的合院與“花園”代表著一種回歸原始自然的生活方式,強調了一塊應該由家庭所共享的真實“土地”,這與林語堂“恢復自然並將自然帶回家園”的呼籲遙相對應。這也是為什麼伍重強烈批評20 世紀40 年代末和50 年代初來自於瑞典而盛行於丹麥的公寓設計。他的斯科恩斯卡合院住宅旨在創造住宅和土地之間的共生。這更進一步解釋了為什麼伍重職業生涯中所有的自宅設計,即赫勒貝克自宅、灣景自宅(The Bayview House, 1963—1965)、麗絲之家(Can Lis, 1971—1973)與和樂之家(Can Feliz,1972—1994)都位居偏遠,孤立於世。
阿爾瓦·阿爾托與合院的形成
年輕的伍重與阿爾瓦·阿爾託人生中的第一次相遇是在20世紀30年代末的丹麥皇家美術學院,當時阿爾托在該學院客座演講。阿爾托的演講給伍重留下了深刻的印象,並激發他對阿爾托在20世紀30年代後期作品的深入研究。借由他自己所收集的各種出版物,伍重研究了維普里圖書館(Viipuri Library, 1933—1935),1937 年巴黎世界博覽會芬蘭館(The Finnish Pavilions at the 1937 Paris World Exposition)和1939 年紐約世界博覽會芬蘭館(The Finnish Pavilions at the 1939 New York World’s Fair)等案例。1945年,伍重獲得了丹麥提供給年輕有才華建築師的獎學金,他成了阿爾托與其夫人艾諾·阿爾托(Aino Aalto)在赫爾辛基聯合事務所的僱員。儘管他只在很短的時間內(從1945年10月25日至12月5日)為阿爾托夫婦工作,但這一重要的經歷使年輕的伍重能夠實地考察阿爾托夫婦的項目。其中包括瑪麗亞別墅(Villa Mairea, 1937—1939),位於庫塔(Kotka)的桑尼那制漿廠與其住房和城鎮規劃(Sunila, 1936—1939),派彌歐療養院(Paimio Sanatorium, 1928—1933), 圖爾庫- 薩諾瑪特報社(Turun Sanomat, 1928—1929)和位在考圖阿的連排住宅(Kauttua, 1938—1940)。同時,在阿爾托夫婦的聯合事務所中,年輕的伍重參與了斯特龍堡公司(Strömberg Company, 1944—1947)在瓦薩(Vaasa)的住宅計畫。
阿爾托對伍重作品的最早影響可以從他在20世紀40年代末期未實現的競賽提案中看出。這其中包含了一些由伍重和斐博所共同合作的案例。斐博指出,阿爾托的巴黎世界博覽會芬蘭館是他和伍重學習模仿的大型建築案例之一,因為該館體現了如何由一系列相似的建築語彙來完成一個半封閉式的中央庭院(圖3)。對於伍重和斐博來說,阿爾托芬蘭館的合院以及由其夫人艾諾·阿爾托所設計的花園,教會了他們如何通過環境設計在人、建築和自然之間創造親密感。阿爾托夫婦的設計傳達了一個非常重要的建築哲學——建築應該成為讓人類接受自然氛圍的最佳媒介。至此,伍重在20 世紀初的一次採訪中解釋說:
貢納·阿斯普倫德(Gunnar Asplund)告訴阿爾瓦·阿爾托,如果你在一排混凝土台階的邊腳下種一棵會開花的櫻花樹,那麼走過那些台階將是一種樂趣。我完全認同。我用這來傳達讓我著迷的夢想,借此滿足人們對美好事物的渴望。給人們他們所喜歡的東西。

圖3 伍重收集的阿爾托夫婦1937 年巴黎國際展覽會芬蘭館照片
阿爾托對伍重和斐博的啟發可以在他們所共同創作的丹麥皇家音樂學院(The Danish Royal Academy of Music in Copenhagen, 1944—1945),英國倫敦水晶宮(The Crystal Palace in London, United Kingdom, 1946)和蘭德斯劇院(The theatre in Randers, 1947)的競賽提案中一覽無遺(圖4)。在他們的音樂學院一案最初和最終的提案中,阿爾托與瑞典建築師阿爾賓·斯塔克(Albin Stark, 1985—1960)合作的瑞典阿夫斯塔鎮中心(The Town Centre of Avesta, 1944)競賽提案很明顯為伍重和斐博提供了一系列成熟的建築語彙。伍重和斐博通過結合曲面屋頂和方形的建築體量來制定建築群的基本單元(圖5)。阿爾托所擅長的雕塑性屋頂體量、天窗和花園設計,以及巴黎世界博覽會芬蘭館中的柱廊、涼亭和人行道,也融入了伍重和斐博的音樂學院一案。後來,在水晶宮競賽中,相似的室外花園的設定、露台和被植物包圍的柱廊由阿爾托所擅長的設計元素發展而來。同時,整個水晶宮建築群體的組態,以及對各種建築類型和結構系統的探索與整合,直接受到阿爾托桑尼那紙漿廠的啟發。伍重對阿爾托設計手法的學習與模仿可以進一步在蘭德斯劇院的設計方案中發現。阿爾托夫婦為瑪麗亞別墅設計的自由曲線游泳池及其延伸的戶外走廊與花園,由蘭德斯劇院中的噴泉和建築佈局所體現(圖6)。

圖4 上:伍重和斐博為丹麥皇家音樂學院提出的競賽方案;左下:斐博、摩根·艾爾明和伍重在1946 年提出的倫敦水晶宮競賽方案;右下:伍重和斐博1947 年蘭德斯劇院的競賽方案

圖5 上:伍重和斐博為丹麥皇家音樂學院提出的初步設計方案;下:阿爾托夫婦1944 年阿夫斯塔市鎮中心的設計案(與瑞典建築師阿爾賓·斯塔克合作)

圖6 阿爾托夫婦設計的瑪麗亞別墅的底樓平面圖,圖中顯示了後院中自由形態
的游泳池
20 世紀50年代初期,伍重通過現場考察並收集相關圖像和出版物研究了阿爾托的珊納特賽羅市政廳(Säynätsalo municipal office, 1949—1952)。珊納特賽羅市政廳帶有一個正方形的戶外中庭,該中庭由室內走廊界定,走廊開有大窗,窗戶連接傾斜屋頂以及帶有磚塊飾面和外掛瓷磚的現澆混凝土牆(圖7)。戶外中庭內種有植物,設定噴泉以及由磚、石和瓦所構成的不同鋪面。阿爾托的市政廳是伍重斯科茨卡社會住宅競賽提案主要的靈感來源之一(圖2)。根據建築形式的模擬,伍重斯科茨卡中的合院單元可視為阿爾托珊納特賽羅市政廳的縮影,其共同特點是正方形的佈局以及被房間、牆壁和傾斜屋頂所包圍的中央庭院。

圖7 阿爾托設計的珊納特賽羅市政廳,帶有中央方形廣場,廣場由室內帶窗走廊、傾斜的屋頂以及帶有磚瓦覆蓋的混凝土牆所界定
值得注意的是,阿爾托的塞納-馬恩省沙洛市政廳似乎不僅為伍重提供了一套完整的建築語言來塑造其合院住宅及花園,而且還啟發了伍重去發掘屋頂形式的表現方法。伍重的斯科茨卡社會住宅一案中,合院住宅擁有似於丹麥民居的覆瓦斜屋頂,並利用斜屋頂成功地將室內空間帶入合院中央。這種覆瓦斜屋頂使伍重的斯科茨卡社會住宅與他的赫勒貝克自宅大不相同,後者的特點是密斯式的平屋頂和水平出簷(圖1)。1953 年斯科茨卡社會住宅競賽之後,屋頂成為伍重設計中非常重要的建築特徵,蘭格里妮館(Langelinie Pavilion, 1953)和雪梨歌劇院(The SydneyOpera House, 1957)的競賽提案,都展現了他早期職業生涯中表現力最強的屋頂形態(圖8,圖9)。

圖8 伍重在1953 年為哥本哈根蘭格里妮館提出的競賽方案,宛如一個帶有多個菌傘的巨型蘑菇

圖9 伍重於1958 年初拍攝的雪梨歌劇院第一個完整模型
除了在斯科茨卡社會住宅方案中看到的富有表現力的屋頂形式之外,伍重另一個重要的建築特徵是合院住宅單元的交錯組態(圖2)。儘管在伍重不同的合院住宅方案中,內部的佈局和場地條件在細節上有所變化,但從20世紀40年代到20世紀60年代,他提出的方案始終遵循著住房單元相互交錯排列的這一規律(圖10)。這使他的住房單位可以在人的尺度上敏銳地反映基地周圍的景觀和城市環境。同時,這種交錯排列將合院建築組成一系列相互具有代表性的叢集單元,讓伍重借此再現有機形式,以及回應人類原始民居。

圖10 上:伍重於1956 年提出的金戈住宅合院住房計畫;下:伍重於1959 年提出的弗雷登斯堡住宅合院住房計畫
建築體量的交錯組態是伍重早期職業生涯中最重要的建築設計手法之一,這一手法可以說是直接從阿爾托20世紀30年代的作品中獲得的。在20世紀30年代中期,阿爾托夫婦的住宅和工作室(The Aalto couple’s own house and studio, 1936)(圖11),巴黎世界博覽會芬蘭館(Finnish Pavilion in the World Exposition at Paris , 1937)(圖3),以及塔林美術館(The Tallinn Art Museum , 1937)(圖12)顯示了他所擅長的體量交錯組態。這可能是對日本建築學習的結果,尤其是吉田鐵郎(Tetsuro Yoshida)對京都桂離宮體量的交錯組態的闡述(圖13)。由於對日本建築文化有著濃厚的興趣,伍重於1945年從阿爾托夫婦那裡收到了吉田鐵郎的著作《日本房屋和花園》(Das Japanische Wohnhaus, 1935)。伍重特別對桂離宮和阿爾托的作品進行了研究,總結出了他許多早期競賽參賽作品的共同設計手法,例如挪威奧斯陸中央火車站(Central Railway Station, Oslo, Norway, 1947, 與阿恩·科斯莫(Arne Korsmo)合作),位於賀波的森林館(The Forest Pavilion in Hobro Wood , 1946),瑞典歌德堡商學院(Business School in Göteborg, Sweden, 1948)和他在赫勒貝克自宅的早期方案,所有設計均一貫採用體量的交錯組態,用以結合一系列相似的建築單元,使建築群成為一個完整的有機整體(圖14)。

圖11 1936 年阿爾托夫婦所設計的赫爾辛基自宅和工作室的一樓平面(上)和二樓平面圖(下)

圖12 阿爾托夫婦於1937 年為塔林美術館設計的競賽提案

圖13 左:京都桂離宮平面圖,其建造於1589—1643 年;右:從桂離宮的開放式竹製平台上眺望

圖14 上:伍重1946 年霍布羅伍德森林館競賽提案;左下:伍重1947 年奧斯陸中央火車站競賽提案(與Arne Korsmo 共同合作);右:伍重1948 年瑞典歌德堡商學院競賽提案
從阿爾托在20世紀50年代初期的工作中可以看出,體量的交錯組態成為他進行各種城市規劃項目的重要設計手法。在阿爾托針對塞納-馬恩省沙洛城鎮的規劃建議中,交錯的平面計畫由一系列相似的建築物所形成,這些建築物敏感地反應了對角線軸向的道路與地形坡度,並使建築物面向南方。伍重採用了類似的設計策略來發展挪威奧斯陸的維斯特維卡競賽一案(The development of Vestre Vika in Oslo, Norway)(圖15)。後來維斯特維卡競賽案成為伍重的斯科茨卡社會住宅競賽案的先例(圖2)。這種典型的構成後來在伍重不同的合院住宅方案中重複應用(圖10)。

圖15 上:伍重認真研究了阿爾托對珊納特賽羅市政廳的規劃,進而提出了建築物體量交錯組態的構想。該組態由一系列具有相似性的建築物所構成,對應了道路的對角線軸向和各個建築物的南北座向;下:伍重1948 年挪威奧斯陸維斯特維卡競賽中低層建築群的組態計畫
喜龍仁與中國建築
斐博在二戰流亡期間與伍重一起在瑞典的斯德哥爾摩工作,並在一次採訪中回憶說,“與瑞典相比,丹麥當時與外界相對孤立。因此,在斯德哥爾摩,伍重和我一起發現了真正的中國。” 在此期間,他們研讀了藝術史學家喜龍仁的著作,其中包含了《北京城門與城牆》(The Walls and Gates of Peking, 1924),《 北京皇城圖考》(The Imperial Palaces of Peking, 1926),《隋唐時期的長安城》(Tch’angnagn au temps des Souei et des T’ang, 1927),《中國古代藝術史》(A History of Early Chinese Art: Architecture, 1930) 和《中國圖覽》(Billeder fra Kina, 1937)。在戰後,伍重和斐博在丹麥哥本哈根與喜龍仁會面,與他當面討教中國建築,特別是關於中國建築文化中的二元論以及其隱喻性的自然意象表達。喜龍仁會後贈送伍重他個人的學術著作《金閣寺:關於日本的回憶與研究》[Den Gyllene paviljongen, minnen och studier från Japan( The Golden Pavilion, memories and studies from Japan), 1919],以紀念他們的友誼。根據喜龍仁書中的資訊,伍重計畫了1957年的日本之旅和1958 年的中國之旅。
喜龍仁認為,巨大的台基是中國建築文化中顯著的元素之一。在他的著作中,喜龍仁提供了兩個案例研究來證明他的觀點:中國的城牆和祭壇。對於喜龍仁而言,中國城牆“不僅僅是普通的紀念性建築”或“防禦結構”。他們“賦予了一個完整而具有紀念性的建築表現”,建構成了中國鄉村、城市和整個國家的基本特徵。對喜龍仁而言,中國的祭壇或高台“與城牆密切相關”,借此“中國建築最原始的宗教形式永存”。喜龍仁強調了它們的“建築外在表現”及其在中國重要的宗教意涵:
儘管有多次大規模的宗教創新和改革,但中國仍保留了露天祭壇這一個建築元素,而在祭壇上奉獻祭物在整個中國歷史上持續繼續著,這一事實本身就充分證明了這些露天祭壇對中國人非常的重要性。可以說,這些祭壇代表著皇帝作為人民精神領袖的地位,而在此由自己或由他的代表執行重要的獻祭,借此自然的靈力和內在規律使民族和諧共處。
喜龍仁鏡頭下的巨大台基給伍重留下了很深的印象。在伍重與斐博共同撰寫的“今日建築之風”建築宣言中,他們複製了喜龍仁所拍攝的北京永定門城牆和城樓的照片(圖16)。伍重與斐博認為這種建築形式的表現與他們自己的建築創作相互呼應,兩者都是從有機形式和自然現象中所汲取靈感。伍重與斐博在照片標題中表達了他倆對中國城牆的印象:
中國的城牆,其表現力量是如此之大,以至於即使是精緻的城樓也融合成為城牆的一部分,並且能夠豐富整個建築群體的構成。

圖16 北京永定門的城牆和城樓(由喜龍仁所攝)
這並不是伍重第一次表達對中國城牆或是高台的熱愛。在此建築宣言之前,伍重曾明確地將厚重的牆體和高台融入其設計。在與斐博合作,設計奧爾堡會議中心(The Aalborg Convention Centre, 1945)(圖17) 和1946 年水晶宮(圖4)的競賽方案中,牆體成了表達建築物紀念性的主要設計元素。前者一系列城垛式的體量,讓人聯想起北京城牆防禦工事,而後者則將所有主要建築物都組態在一個都市尺度的巨大台基上,響應了北京城的城牆和城樓的組合。對於伍重與斐博而言,一致性的牆體表現和其紀念性鞏固了建築物與基地的關聯,進而加強了二者合一形式下環境整體的表現力。

圖17 伍重和斐博在1945 年為奧爾堡會議中心設計的競賽提案
在伍重的赫勒貝克自宅中也可以找到類似的設計手法(圖1)。儘管建築設計的主靈感來自於伍重曾在現場研究過的由賴特(Frank Lloyd Wright)所設計的赫伯特之家2號(Herbert Jacobs 2, 1944—1948) 和密斯(Mies van der Rohe)的范斯沃斯住宅(Farnsworth,1945—1951),但承重的磚牆、磚鋪的地板和平台卻集中地反映了中國建築的特點。此案例如實地反映出伍重對歷史高台的表現力和紀念性的追求。伍重的金戈住宅擁有類似的特徵,例如中央合院採用磚砌的地板鋪面,並由承重磚牆界定(圖18)。結合覆瓦屋頂,使得地板、牆壁與屋頂呈現出建築形式上的統一性,用以強調構成房屋的單元與傳統民居土方工程類似,例如北非摩洛哥的風土建築。同時,借由房屋單元的交錯組態形成連綿不斷的城牆意象,定義並保護了小區內的公共花園不受外圍城市環境的打擾,這也回應了中國城牆保護與定義其內的公共空間的作用。

圖18 金戈之家(伍重1959 年所攝)
荷蘭籍漢學家和宗教歷史學家高延(Jan Jakob Maria de Groot, 1854—1921)的《中國的宗教體系》(The Religious System of China, 1892—1910)一書為喜龍仁研究中國建築藝術提供了一個重要的概念框架,使中國建築與喜龍仁的神智學信念保持一致。高延將中國的宗教定義為“萬物有靈論”“生氣勃勃的宇宙觀”和“通過其道而創造陽與陰兩靈體”。對高延來說,“陽代表著光,溫暖,生產和生命,所有這些祝福都來自天體。陰是黑暗,寒冷,死亡和大地……”。喜龍仁在他的寫作中直接延續了高延筆下泛靈和二元論的思想,並將中國建築概括為一個有機的綜合體,展示了陰陽兩極的創造力:
我們可以在他們(中國人)的建築活動以及繪畫和裝飾藝術中溯回出一種原始的生命力,這生命力(陰和陽)與其創造行為在藝術品中無所不在,即使是因為根據實際需求和工程結構進行了某種程度的修改。
喜龍仁在他的《中華圖覽》一書中進一步解釋了陰和陽是兩個不可分割的對比元素,這與高延的概念相呼應:
中國人稱正向的創造力為陽。它代表了光、熱、太陽以及所有相似的概念,能在精神和物質方面都具有正向的生產力。相反的一面是陰,陰是負的,代表了黑暗、大地、月亮、休止或吸收力,與正能量卻相反。陽以龍為象徵,陰以虎為象徵。前者的顏色是橙色,後者是綠色或深藍色。當這兩個基本要素相融一體時,幸福和繁榮就在國度盛行,人民和諧共處。
喜龍仁對中國的理解以及他以陰陽二元論來闡述中國建築藝術,為年輕的伍重從職業生涯一開始就提供了一個重要的知識基礎。在1952 年,伍重解釋其赫勒貝克自宅設計一案時,闡述了他由中國二元論所啟發的對比式構造——由黃色磚所構築的承重牆體和高台,反襯於黑色漆面的木構屋頂結構,他解釋說:
在中國傳統建築中,所有的結構元素都清晰可見。這些元素可分為具承載力的男性,與被承載的女性,根據這原理,其飾面與色彩也分陰陽。
伍重的赫勒貝克自宅中幾何平面構成的中心軸和兩側對比元素,可以理解為伍重對喜龍仁二元論的再次闡述(圖19)。後來, 在1955 年因米德爾波別墅設計案(Middelboe House, 1953—1955)而發表的出版物中,伍重再次強調了他的陰陽理念:
強烈的色彩強調了結構元素:刷上黑色和紅色的特別預置鋼筋混凝土結構,強調了被承載元素與承載元素之間的關係。

圖19 伍重赫勒貝克自宅一案中具有一系列對比式的空間元素分析圖
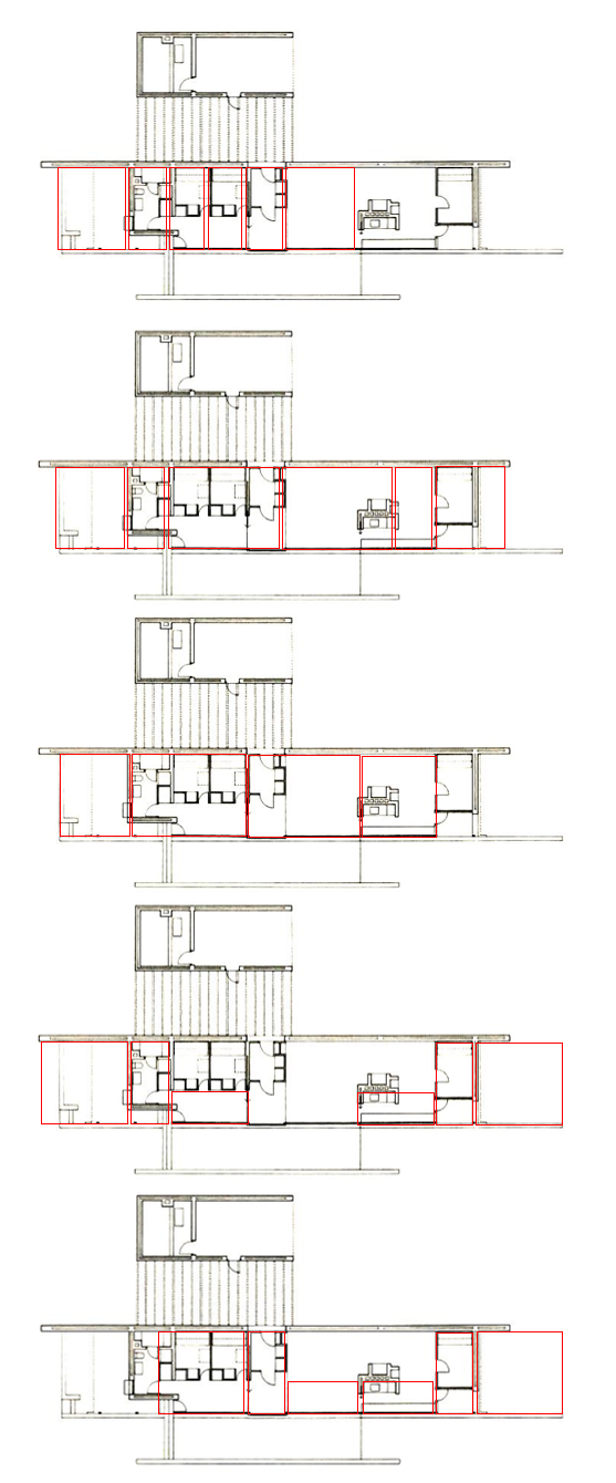
伍重在米德爾波別墅上層平面改採取的對角線對稱佈局,可以視為與赫勒貝克自宅的設計手法相類似(圖20)。這種受喜龍仁啟發的陰陽二元論使伍重的合院住宅方案不同於伍重通過藏書學習過並於1949 年前往美國進行了現場考察的賴特的Usonian 住房系列。在伍重的斯科恩斯卡社會住宅競賽中,室內空間可分為公共/ 被服務空間和私人/服務空間兩個區域。在金戈住宅中,公共翼的走廊與落地窗對齊,而私人翼的走廊與牆體對齊(圖21)。同時,公共翼中的車庫可對應私人翼中的主臥室。在弗雷登斯堡的房屋中,根據對角線對稱佈局,私人翼中的浴室與公共翼中的壁爐相互對照(圖22)。同時,人們烹飪食物的廚房和用餐區與生產食物的菜園形成另一個對比。

圖20 伍重1955 年米德爾波別墅設計案,空間的二元性成為此案平面的構成原則

圖21 金戈之家(1956 年伍重所繪)

圖22 伍重於1959 年設計的弗雷登斯堡合院住宅平面
合院的演化
儘管在伍重不同的合院住宅方案中,平面組態和細節處理差異甚大,但其整體組態原理是相似的。其中,金戈住宅一案最為清楚地體現了伍重的設計意圖(圖10)。在此案中,伍重將住房單元相互連接起來,形成了一個具城市尺度的內向性公共空間,作為小區使用。在這巨大的合院空間中,伍重保留原始基地的自然條件,並以中央湖泊和高低起伏的原始地形加強其表現。在建築群體的外圍,精心種植並保存了高大的松樹,以加強社區與其城市環境之間的分離。這將住宅區域與城市環境區隔開來,這一強烈的設計意圖讓人回想起林語堂在書中對理想生活的書寫。同時,由相互連接的合院單元所組成的交錯組態是伍重對阿爾托建築語言的詮釋。最後,互連合院單元線性佈局下所產生的巨大的形式統一性為其社區定義了與土地的聯絡,這回應了喜龍仁對中國城市和城牆的記錄與讚歎。
合院已成為伍重在1962 年“高台與高原”建築宣言的多個項目中使用的重要設計手法之一。這些項目根據其建築類型和機能可以分為兩類。第一類為政府機構和公共建築,包括丹麥霍伊斯特魯普高中的設計提案(The High School in Hojstrup, Elsinore, Denmark, 1958—1962),丹麥哥本哈根世界展覽會(The Copenhagen World Exhibition, Amager, Denmark, 1959)和丹麥弗雷登斯堡合院住宅中的小區中心(The Social Centre for Housing complex in Fredensborg, 1959)(圖23)。另一類是住宅項目,包括班克住宅(The Banck House, 1958)和瑞典赫爾辛堡的赫納瑞德住宅(The Herneryd House, Helsingborg, Sweden , 1960—1962)(圖24)。這些項目之所以重要,不僅因為它們由伍重親自設計規劃,而且還因為它們被用作試驗、測試和進一步修改他職業生涯中“合院”的概念。

圖23 伍重霍伊斯特魯普高中(上)、哥本哈根世界展覽會(中)設計提案以及弗雷登斯堡住宅的小區中心(下)

圖24 由伍重所完成的班克住宅(左)和赫納瑞德住宅(右)
在第一個系列項目中,伍重的合院佈局是以中心軸線與標誌性的屋頂/ 高台並置作為加強內部的動線經驗為特徵。這可以說是伍重對中國建築長期研究的結果,特別是通過他在1958 年對中國古建築的考察。此次旅行的前後,伍重通過林語堂對中國建築的概念化論述(作為結合中心軸和不對稱佈局的體現)以及喜龍仁針對歷史高台以及二元論思想的闡釋,對中國古建築已有了獨特的認識。這解釋了為什麼伍重的合院佈局不僅具有上述特徵,而且有意將其建築群的機能和形式二元化並列組成。在這種設計意圖下,霍伊斯特魯普高中所呈現的特點是,在城市尺度高台上的一角落放置一座高樓宿舍,在另一個角落有單層大講堂,而伍重和他的團隊則努力塑造了連續的標誌性屋頂/高台的並置來統籌空間。哥本哈根世界展覽會一案,則被分為兩個區域,即一側用於展覽的挑高中庭,另一側用於展演的講堂。顯然,將所有的中庭和講堂區分並分佈於建築群體之兩端在機能上是不切實際的。
伍重及其團隊在班克住宅和赫納瑞德住宅中應用了類似的設計手法。班克住宅的構成可以理解為伍重的赫勒貝克自宅外掛兩個合院住宅。“赫勒貝克自宅”位於建築群體的前面,用作公共區域,例如起居室和餐廳。建築群後面有兩個“合院”單元:一個是臥室,另一個是服務區域。赫納瑞德住宅可以理解為赫勒貝克自宅和一個合院住宅的組合。在赫納瑞德住宅的合院周圍,一側是被服務的私人區域,另一側是提供服務的公共區域。儘管兩棟房屋的佈局成功地回應了狹長的基地,並且使建築正面朝向基地的開放面,但顯然伍重的空間佈局和屋頂/ 高台並置並沒有形成完整且具層次感的空間過渡。因為這種空間佈局和屋頂/高台並置具有明顯的二元特徵,顯得有些天真武斷。相似的空間佈局可以在伍重於1966 年所提出的丹麥歐登塞大學競賽中再次看到——前半部是線性的開放式設計,後半部則由錯置的庭院構成(圖25)。

圖25 伍重於1966 年提出的歐登塞大學競賽(前半部是線性的開放式設計,後半部則由錯置的合院構成)
從許多角度來看,伍重的伊朗梅裡銀行(The Melli Bank, Tehran, Iran 1959—1960)一案(圖26)體現了其合院概念下設計手法的成熟。為了精心利用狹窄的基地正面,以及封閉性的背面,伍重和他的團隊將梅裡銀行的內部空間設計為一系列相似與相連的“合院”構成。這些半封閉性的合院由中心軸線和主動線串聯而成,並逐漸從前部的大型、公共及服務區域的開放式空間轉變為後部的小型、私人及被服務區域。空間的連續性及其轉換層級通過雕塑性的屋頂梁架和天窗以加強體現,同時,借由寬大的樓梯形成一個下沉的大廳。這應是伍重對中國古建築進行研究的結果,二者均以一系列相似性的合院所構成,形成狹長的屋頂/ 高台並置的佈局。

圖26 由伍重設計的梅裡銀行
伍重合院概念的轉變也解釋了為什麼其澳大利亞灣景自宅的最終設計結果與班克住宅和赫納瑞德住宅大不相同(圖27)。灣景自宅的設計過程密切記錄了伍重和他的團隊如何將建築群體從班克住宅和赫納瑞德住宅的合院構成逐漸轉變為“梅裡銀行”式的空間序列(圖28)。最後,在伍重退出他在雪梨歌劇院的職位並於1966 年放棄該項目之前,灣景自宅的建築群被分為三個部分,分別是工作室、起居室/ 餐室和寢室。基於相似的空間層次和組合,每個部分由合院組成一系列正面狹窄的空間序列,而這些序列進一步由預製的屋頂、牆體與樓板單元來建造。

圖27 伍重灣景自宅的最終設計方案

圖28 伍重灣景自宅的最初設計方案平面圖
梅裡銀行成為伍重在20 世紀60 年代為三個表演藝術中心所作設計的先例,這三個表演場所分別是西牙馬德里歌劇院(The Opera House in Madrid, 1962),瑞士蘇黎世劇院(The Zurich Theater, 1964—1970)和德國沃爾夫斯堡劇院(The Wolfsburg Theatre, 1965)(圖29)。在每一個案例中,主展演廳都可以被視為一個“合院”,也可以看作是伍重一系列屋頂/ 高台並置中最有力的表現。其中,最成熟的構成應是沃爾夫斯堡劇院,該劇院以預製單元來塑造方形的牆體和曲面的屋頂。儘管以上三者無一案例被具體實踐,但建於1976 年的巴格斯韋德教堂(圖30)呈現了伍重合院概念發展階段性的總結。在該案中,主教堂可以被視為伍重三個表演藝術中心中的主展演廳,或是一個典型中國紀念性建築群中的主廳。

圖29 由伍重所提出的馬德里歌劇院(左)、蘇黎世劇院(中)和沃爾夫斯堡劇院(右)設計案

圖30 由伍重所設計的巴格斯韋德教堂
在20 世紀70 年代初,隨著合院概念的發展,伍重在“增長的建築”(“Additive Architecture”)這一建築宣言下提出了一系列的住宅計畫,在這些計畫中,建築的設計和建造被視為有機形式的增長和組成,其中包括位於赫勒貝克的擴張系統住宅(Espansiva, 1969)的原型(圖31)和丹麥海寧(Herning)X 一號系統住宅(Uno-X)的原型(1969—1966)(圖32)。這兩個已付諸實際的房屋是使用預製的建築系統與構件所建造的。基於相似的系統,伍重為丹麥海寧市商管學院(The Export College in Herning, Denmark, 1969)提出了校園規劃與設計(圖33)。儘管尚未實現,但上述提案還是與伍重之前的合院住宅有著相似的設計原則,特別是受到林語堂、阿爾托和喜龍仁作品的啟發。這是因為伍重不斷地將合院塑造為接受自然氛圍之地,並將房屋或建築群體定義為與城市環境隔離之境,用以保護和保存自然。同時,伍重有意識地採用了交錯佈局來表達建築形式的萬物有靈論,特別是與突出且具雕塑性的屋頂形式結合時。

圖31 由伍重所設計位於赫勒貝克的擴張系統住宅原型

圖32 由伍重所設計位於丹麥海寧市的X一號系統住宅原型

圖33 由伍重所提出的海寧市商管學院設計案
有趣的是,上述“增長”項目與伍重早期20世紀50年代和60年代的合院住宅方案相比仍有著鮮明的特徵。伍重的“增長”項目以預製和現場組裝為特色。這反映了他在雪梨歌劇院一案中所累積在建築設計、生產和建造方面的知識,用以確保在有限的預算和時間內保證建築質量。同時,由於他對日本建築的研究,特別是通過對德國學者海因裡希·恩格爾(Heinrich Engel)1964 年出版的《日本房屋:當代建築的傳統》(The Japanese House: A Tradition for Contemporary Architecture)一書的研究,“增長”的提案可以看作是由框架結構和面板單元加上半獨立式房間單元所構成的建築群體。這樣一來,伍重和他的團隊就可以在縱向和橫向上於平面中新增建築單元,並可以對建築物的立面進行調整,以期對周圍的戶外空間和內部機能做出最大限度的反應。同時,伍重對中國建築的興趣以及對1925年版本《營造法式》的研究共同影響了其建築平面構成和屋頂形式的表現。這意味著更大的房間中屋頂將更大,並且更具形式與結構的表現力。這種“增長”的層級結構和預製單元最終成就了伍重的科威特國會一案。作為他後期“增長的建築”,此案由都市尺度的牆體組合而成,形成了一個合院中的合院群體(圖34)。

圖34 由伍重所設計的科威特國會
結 論
伍重的合院住宅方案總體上深切地反映了他的建築哲學,尤其是關於現代住宅的想像。這兩者都與林語堂在《吾國與吾民》一書中對“藝術生活”的論述密不可分。同時,阿爾托的作品,特別是阿爾托珊納特賽羅市政廳,為伍重提供了一系列關鍵性的建築語言,成就了其第一個合院住宅方案——斯科恩斯卡社會住宅競賽。另一方面,喜龍仁對中國建築藝術主觀性的詮釋則激發了伍重合院住宅的設計手法,用以響應中國紀念性建築中的屋頂/ 高台二元並置。同時,喜龍仁和林語堂所強調的中國二元論成為1962 年“高台與高原”建築宣言下,伍重合院住宅方案和其他核心項目的設計原則。
林語堂、阿爾托和喜龍仁的作品或論述,為伍重的“高台和高原”建築宣言奠定了理論基礎,該主題顯然在他的班克住宅、赫納瑞德住宅和灣景自宅設計中得到了發揮。其中,灣景自宅的設計過程密切記錄了伍重的合院概念如何發展和完善,進而形成梅裡銀行的空間佈局。這個佈局成為伍重所提議的三個表演藝術中心的先例,其中包含馬德里歌劇院、蘇黎世劇院和沃爾夫斯堡劇院。儘管這些提案都沒有實現,但巴格斯韋德教堂一案最終承接了此一空間佈局,在該案中,主教堂可以被視為伍重設定在表演藝術中心中的主表演廳。
20 世紀70年代,伍重“增長的建築”建築宣言中的擴張系統住宅原型,則更進一步反映了他對東亞建築文化的不間斷學習,以及由其所啟發的合院概念的進一步發展。這種可“增長”、分層級和相互間具有代表性的空間和形式可以在伍重的擴張系統和X 一號系統的原型院落組成中看到。這些案例以框架和面板的預製和現場組裝為主要特色,這使得伍重和他的團隊可以同時在平面縱向和橫向上新增“合院”,以對基地周圍和住宅內部機能做出適當的反應。這種“增長”性的層級結構和建築元素的預製工法最終成就了伍重科威特國會一案。作為他後期“增長的建築”之重要案例,科威特國會由都市尺度的牆體組合而成,形成了一個合院中的合院群體。
作者簡介
裘振宇,畢爾肯大學助理教授,博士,主要從建築歷史與理論研究。
本文標準引文格式如下,歡迎參考引用:
裘振宇. 伍重的合院住宅:生活、自然與中國建築[J]. 建築史學刊,2021,2(1):110-130.
